
Dům v Bratislavě s výhledem na vzrostlý dub, který se při stavbě nesměl pokácet
Záhorské sady jsou v Bratislavě oblíbenou lokalitou pro stavbu rodinného domu. Jelikož jich zde ale roste hodně, ubírá jim to na soukromí. U tohoto domu architekti problém vyřešili pomocí atria – do něj se otvírají všechny místnosti.
Adéla Vaculíková , 28. 8. 2024
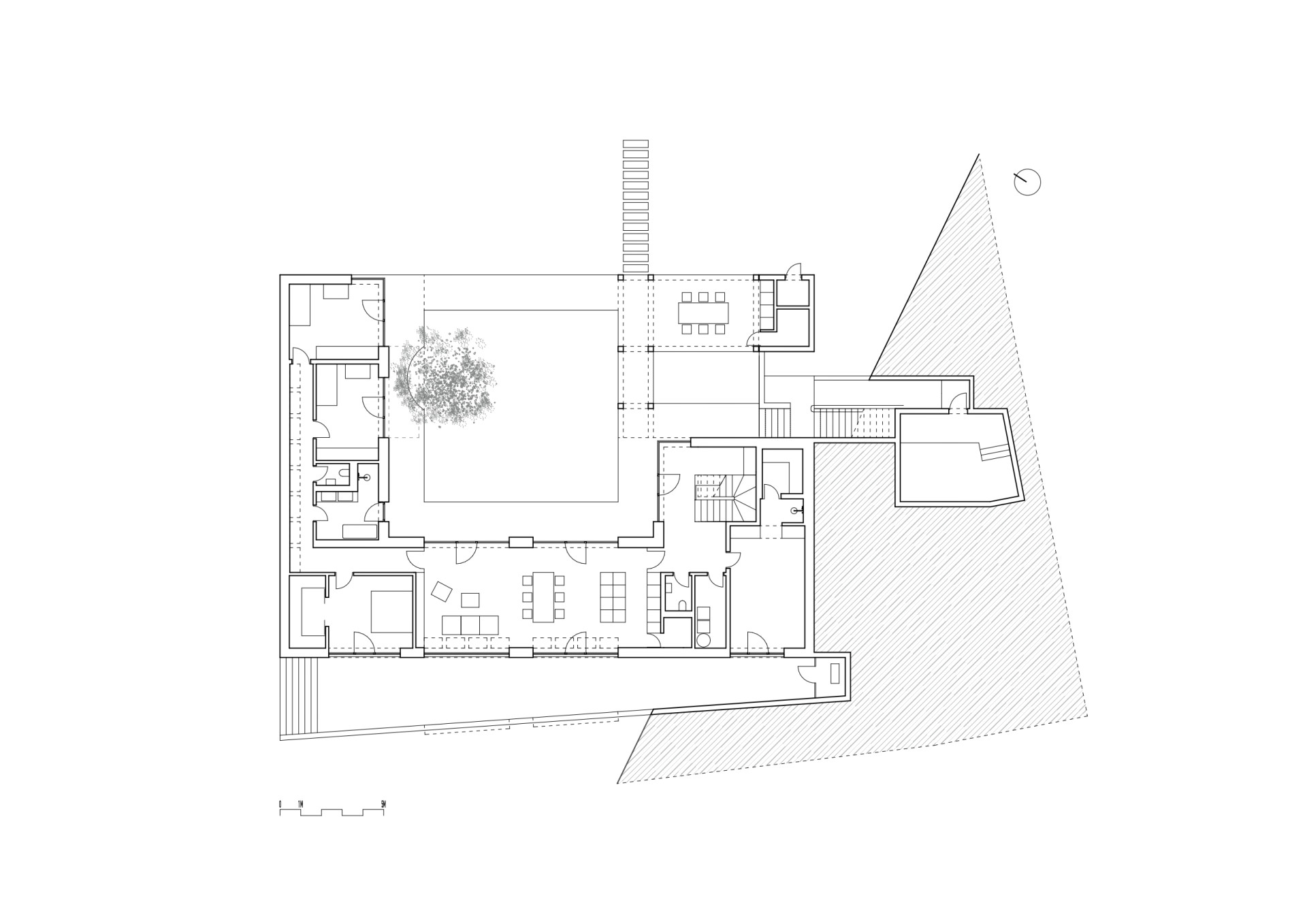
Vstup do domu uvozuje předprostor. Kromě vstupní haly se z něj dá vstoupit taky do garáže a hlavní chlouby domu – velkého atria. To nemá kompletně uzavřené, jak to u atrií bývá zvykem, ale svou čtvrtou stranou se napojuje na zahradu, která pokračuje okolo domu.
Vzhledem k povaze prostoru by se mu dalo říkat taky dvůr. Má ale jedno významné specifikum. Vzhledem k ulici a vstupnímu předprostoru se do něj totiž musí sejít po schodech – dům je totiž částečně zapuštěný do terénu. Jelikož novostavba vyrostla zastavěné oblasti, jako volně stojící objekt by postrádala soukromí, sousedy má totiž rovnou ze tří stran.

„Záhorské sady v Záhorské Bystrici jsou oblast známá hustou zástavbou rodinných domů, což souvisí s nedostatkem pocitu soukromí, který ale člověk hledá, když se rozhoduje pro stavbu rodinného domu,“ říkají k tomu architekti ze slovenské ateliéru ČECHVALA ARCHITECTS.
Mít v novém domě soukromí současně spadalo mezi hlavní požadavky klienta – ještě společně se zachováním vzrostlého dubu uprostřed pozemku. Obojí vyřešilo právě atrium/dvůr. Téměř všechna okna z obytných místností totiž míří jeho směrem.

Architekti říkají, že dům díky tomu má dvě tváře. „Na jednu stranu je rezervovaný až uzavřený, díky pevným stěnám a terénním zářezům směrem k sousedním pozemkům, na druhou je zase přátelský a otevřený rodinnému životu směrem do vnitřku atria,“ popisují.
Do pokojů přivádí světlo velkoformátová okna – vysoká jsou prakticky od podlahy až ke stropu a dají se kompletně otevřít tak, aby současně fungovala jako prosklené dveře do zahrady. Dům má celkem tři křídla, ve středním se nachází obývací pokoj propojený s kuchyní a jídelnou. V jednom z bočních jsou pak ložnice, koupelna a tak dále. Všechny místnosti zpřístupňuje dlouhá chodba táhnoucí se při vnější obvodové stěně domu.
Více k tématu
Poslední křídlo je velmi krátké, vyhrazené čistě jen schodišti, které sem vede ze vstupní haly. Při pohledu na výkresy ovšem dům má pravidelný půdorys ve tvaru písmene U – tedy alespoň skoro. Na krátké křídlo venku navazují betonové arkády, které vedou k venkovní kuchyni. V té se léto určitě trávilo příjemně. A až se dokončí zahrada, která je právě v realizaci, bude to ještě o něco lepší.
- Autoři: Tomáš Čechvala, Filip Galko, Monika Homolová
- Ateliér: ČECHVALA ARCHITECTS
- Spolupráce: Stanislav Komár
- Země: Slovensko
- Město: Bratislava - Záhorská Bystrica
- Projekt: 2020
- Realizace: 2023-2024
- Užitná plocha: 267,6m2