Architektura / rodinné domy

Řadový dům v pražských Vršovicích prošel komplexní rekonstrukcí podle návrhu studia BY Architects

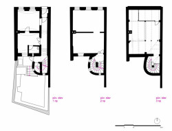
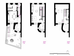
V pražských Vršovicích nedaleko oblíbeného parku Grébovka navrhl architektonický ateliér BY Architects pod vedením Markéty Zdebské celkovou rekonstrukci řadového domu. Největší stavební zásahy proběhly uvnitř domu, kdy došlo k přemístění schodiště z apsidy do středu stavby a přidání nového obytného patra ve formě půdní vestavby. Díky tomu mohlo dojít k plnohodnotnému využití zmiňované apsidy, která slouží různým účelům v závislosti na jednotlivých podlažích - jako budoár, koupelna nebo pokojík pro vnuka. Obytná podlaží mohou mít oddělený provoz, život v domě se pak potkává ve společné kuchyni v přízemí. V rámci rekonstrukce došlo také ke zpřístupnění romantické zahrady z obytného prostoru a obnově uliční fasády s novými špaletovými okny.

BY architects , 10. 8. 2020

  • Autoři: Markéta Zdebská
  • Ateliér: BY architects
  • Spolupráce: Marek Žáček, Jana Horecká
  • Země: Česká republika
  • Realizace: 2020
  • Město: Praha 10 - Vršovice
  • Ulice, číslo: Voroněžská 6
  • Datum projektu: 2016
  • Realizace: 2020
  • Užitná plocha: 120.00m2
  • Zastavěná plocha: 57.00m2
  • Plocha pozemku: 93.00m2
  • autor: BY architects *
  • publikováno: * 10. 8. 2020
  • zdroj: * Autorská zpráva

Mohlo by vás zajímat

Generální partner
Hlavní partneři