
V historickém mlýnu jsou místo mouky byty. V jedné z hlavních historických památek Vratislavi se bydlí
Ve starém polském mlýně v centru města je nově 120 bytů. Rekonstrukce nabízí současný standard bydlení, historické vrstvy objektů jsou ale stále patrné.
EARCH.CZ , 21. 5. 2024 / Advertorial
V centru Wroclavi dlouhá léta chátral starý Mlýn. Jmenuje se Maria a pochází z roku 1267. Nachází se přímo na řece Odře a stojí rozkročený nad dvěma ostrovy, Piasek a Mlynska. Po požáru v 18. století byl znovu mezi lety 1791 a 1792 postaven podle plánů Friedricha Wilhelma Brunnerta. Fungoval, ale dosloužil. Od té doby se jeho vzhled nezměnil a pomalu chátral.
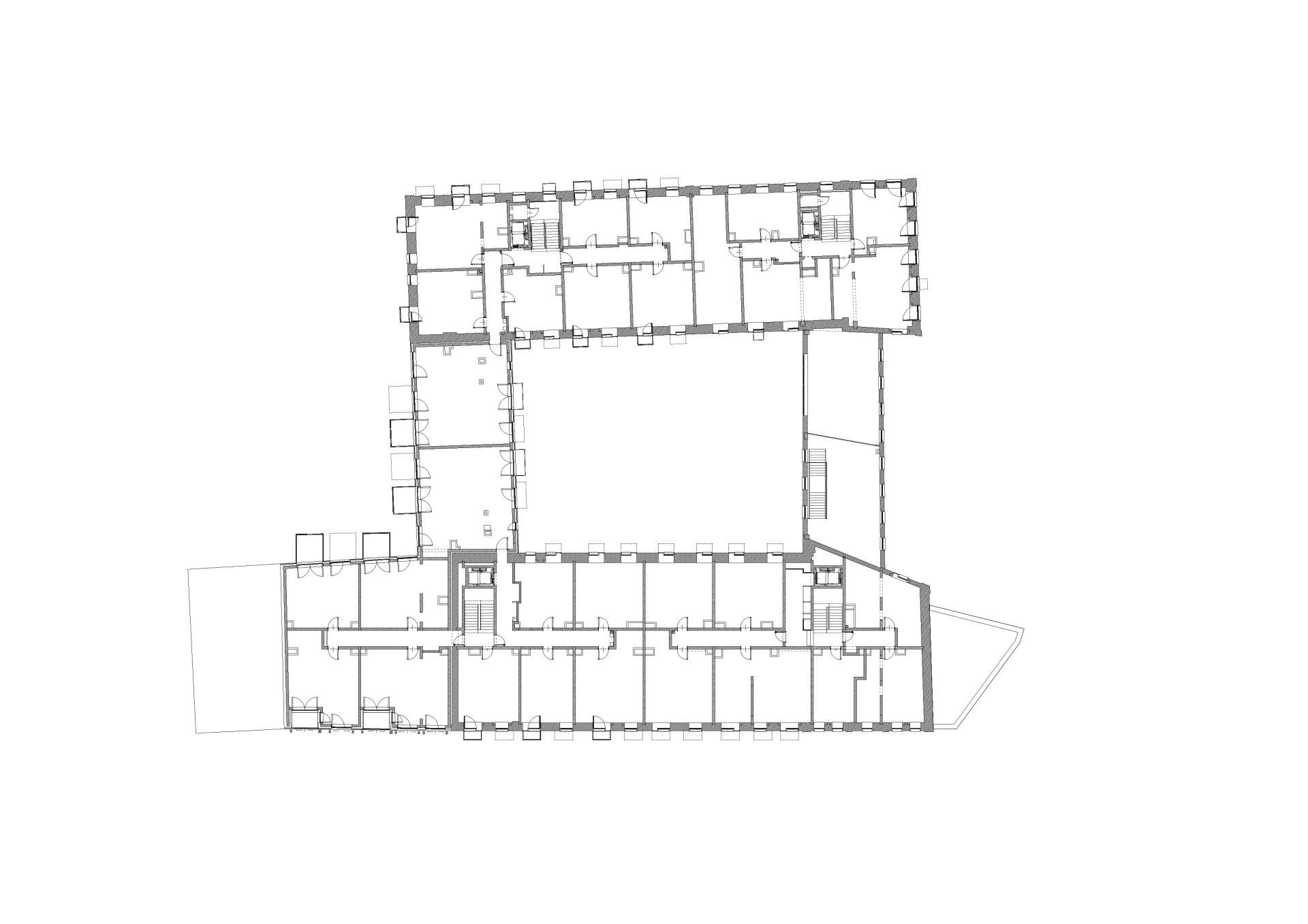
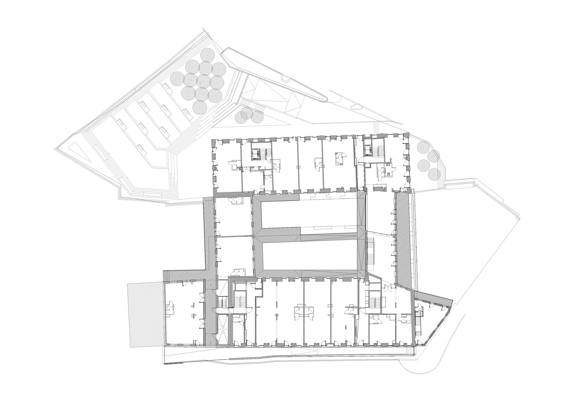
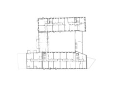
Před pár lety se mlýn dočkal kompletní rekonstrukce, a to díky práci polské architektonické kanceláři Maćków. Architekti a architektky zde v rámci revitalizace areálu navrhli nový „bytový dům“ a znovu aktivovali nevyužívanou část města. Po rekonstrukci mlýnu se uvnitř nachází 120 bytů o velikosti od 26 m² do 117 m². Většina bytů se bude nacházet u vody a některé doslova u řeky, protože část budovy je zavěšena nad ní. V přízemí se nachází 14 nebytových prostor. V dominantním a nad vodou zavěšeném objektu bude restaurace.

Aby bylo možné vytvořit moderní bydlení, nebyl Młyn Maria pouze obnoven, ale také doplněn o nové přístavby. Kombinace starého a nového vytváří most mezi minulostí a současností. Historická fasáda původních budov byla opět omítnuta a okna zůstala v původním uspořádáním. Stávající okenní otvory architekti trochu zvětšili. Ponechali viditelný původní obrys a nové zasklení je navrženo s menší mírou průhlednosti – je vyplněno mléčným sklem.
Nová říční promenáda pro pěší
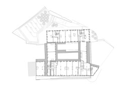
Kromě oživení a obydlení atraktivní lokality v centru historického města se autorům návrhu také povedlo revitalizovat jeho okolí. Mezi původními objekty vytvořili nové veřejné prostranství. Podařilo se jim místo urbanisticky propojit s okolním městem. Ostrovy totiž nově propojuje lávka pro pěší.

V severozápadní části areálu se nachází podzemní garáž. Její zastřešení zarovnává celý areál s výškou okolní úrovně terénu. Slouží jako otevřený veřejný prostor pro obyvatele Vratislavi. Najdete tu vysázené stromy a pobytové schodiště, které je obohaceno o lavičky s nízkou vegetací – tak, aby nic nebránilo výhledu na řeku.
Mlýn Maria je skvělou ukázkou toho, jak lze citlivě přistupovat k objektům, které mají historickou hodnotu, ale jejich původní náplň již nemá v současném světe využití. Starý mlýn transformoval svou vnitřní typologii na bydlení, ale charakter a svůj výraz si dům zachoval. Až vyrazíte do Vratislavi na výlet, tak se ve Mlýně ubytujte. Komplex totiž nabízí velkou kapacitu apartmánů a hotelových pokojů k pronajmutí.
Více k tématu
Použité produkty:
V tomto projektu byly všechny vnější výplně otvorů použity z profilové řady MB-86 SI a MB-70 od společnosti Aluprof. V interiéru jsou navrženy dělící příčky s dveřmi MB-45. Také příčky MB-118 EI, ty jsou speciální především svojí extrémní požární odolností do 120 minut.
- Autoři: Zbigniew Maćków, Szymon Brzezowski, Aleksandra Czupkiewicz, Aleksandra Herman, Marek Konopnicki, Joanna Major, Michał Romański, Natalia Rowińska, Marta Wolak, Paweł Karpa, Marcin Brzeziński
- Ateliér: Maćków Pracownia Projektowa
- Země: Polsko
- Město: Wrocław
- Adresa:: ul. Staromłyńska, Wrocław, Polsko
- Investor: RealCo Property Investment & Development
- Vizualizace: Paweł Osmak
- Zastavěná plocha: 2 156 m²
- Užitná plocha: 9 460 m²
- Obestavěný prostor: 45 785 m³
- Projekt: 2017
- Realizace: 2020
- Fotograf: Jakub Certowicz