
Rekonstrukce rodinného domu v Liberci
Rodinný dům citlivou rekonstrukcí tvůrčího týmu ateliéru David získal zcela nový architektonický výraz díky obkladu z dřevěných latí.
Projektový atelier DAVID, s. r. o. , 16. 12. 2015
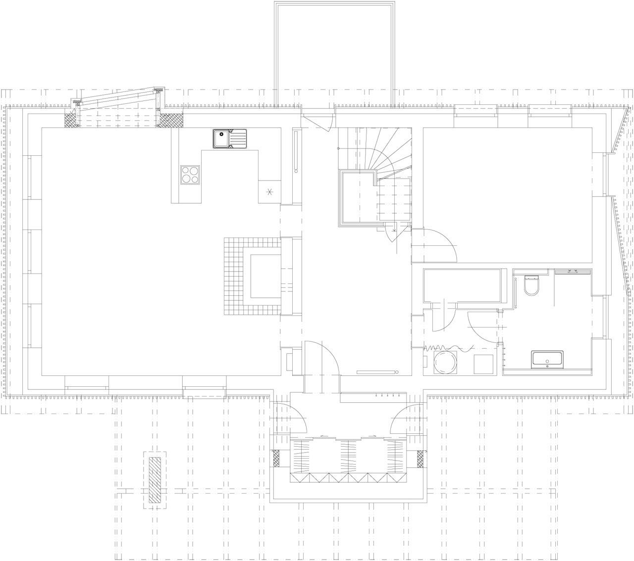
Tento projekt řeší obnovu fasády rodinného domu a uzpůsobení navazujících zpevněných ploch. Dům je postaven na základech původního objektu. Vůči světovým stranám je objekt umístěn takto: hlavní vstup – jih, štítové stěny – jih a sever, zahrada s posezením – sever.
U části zádveří došlo k protažení střechy tak, aby u hlavního vstupu i vstupu do zahrady vzniklo kryté závětří a krytý prostor na skladování dřeva. Hlavní vstup je tak nově upevněn novém výrazným vstupním kamenným pilířem. Střešní krytina je provedena z titanzinkového plechu. Za vstupním zádveřím vznikla nová krytá venkovní terasa. Součástí rekonstrukce byly zahradnické a terénní úpravy navazující části zahrady od severní části domu.
Podle architektonického návrhu a požadavku investora byl stávající kontaktní zateplovací systém s probarvenou omítkou opatřen novým barevným nátěrem (barva šedá) a doplněn svislým obkladem z dřevěných latí. Na štítových stěnách je obklad odsazen od fasády tak, aby byl přisazen k viditelné venkovní krokvi krovu. Na bočních stěnách je proveden přímo bez odsazení.
Na západní stěně domu vznikl nový otvor s velkou prosklenou plochou umožňující volný výhled do krajiny (v návrhu arkýř). V severní štítové stěně došlo také ke zvětšení okenních otvorů pro propojení pokojů se zahradou.
Část oken zůstala ve stávajícím plastovém provedení s dřevodekorem, nová okna, arkýřové okno a vstupní dveře potom v plastových rámech tmavě šedé barvy.
Přístupová cesta k domu byla doplněna subtilní „levitujících dřevěnou lávkou“ vetknutou do skály.
- Autoři: Ladislav David
- Ateliér: Projektový atelier DAVID, s. r. o.
- Země: Česká republika
- Město: Liberec
- Realizace: 2014