
Rekonstrukci vinohradského bytu pojalo studio No Architects jako rehabilitaci dobové velkorysosti
Rekonstrukce bytu na pražských Vinohradech od architektonického studia No Architects se nesla v duchu přizpůsobení velkorysého bydlení ze začátku 20. století požadavkům dnešní doby. Úprav se tak dočkaly podlahy, kompletní technologické vybavení bytu i samotná dispozice. Architekti Daniela Baráčková, Jakub Filip Novák a Barbora Jelínek nicméně usilovali o to, aby byt neztratil svoji původní atmosféru. Rekonstrukci "lze chápat jako rehabilitaci dobové velkorysosti, poctu zapomenutým původním stavebníkům spočívající v adaptaci bytu na velkorysé, ekonomicky přiměřené, a přesto ambiciózní bydlení. Tak, jak bylo zamýšlo," píší autoři.
No Architects , 8. 3. 2023
Píše se optimistický počátek 20. století. Uplynulá dvě století průmyslové revoluce přinášejí skokový růst životní úrovně, průměrná délka života se radikálně zvyšuje, snížení dětské úmrtnosti ztrojnásobuje populační růst, všichni bohatnou a všichni potřebují bydlet. Staví se proto celé čtvrti nových činžovních domů, plné technických novinek jako jsou nespalné stropy nebo tekoucí voda až do bytu. Na hraně jednoho z pražských svahů přitom vzniká i jedna výjimečná ulice vybavená velkorysými předzahrádkami, bohatě zdobenými fasádami, balkonky zalitými sluncem s výhledy do dalekých horizontů, kde se nachází i námi zrekonstruovaný byt.
Nicméně po optimistickém rozjezdu už domy v ulici nevyhnutelně následují pohnuté osudy rozbouřeného dvacátého století, ztrácejí své původní majitele – pečovatele, a přes všechny (brutální) infuze infrastruktury jako je střídavý proud, plyn a voda v plastových trubkách, prakticky pouze chátrají. Jedinou kvalitu představuje nezadržitelná příroda. Stromořadí v ulici postupně dotvoří její komorní povahu.
Více k tématu

Ale teprve jako součást prosperity sjednocené Evropy o více jak sto let později se i domy postupně dočkávají důstojnějších oprav a adaptací pro soudobé obývání. Náš návrh rekonstrukce jednoho z těchto Vinohradských bytů lze chápat jako rehabilitaci dobové velkorysosti, poctu zapomenutým původním stavebníkům spočívající v adaptaci bytu na velkorysé, ekonomicky přiměřené, a přesto ambiciózní bydlení. Tak, jak bylo zamýšleno.
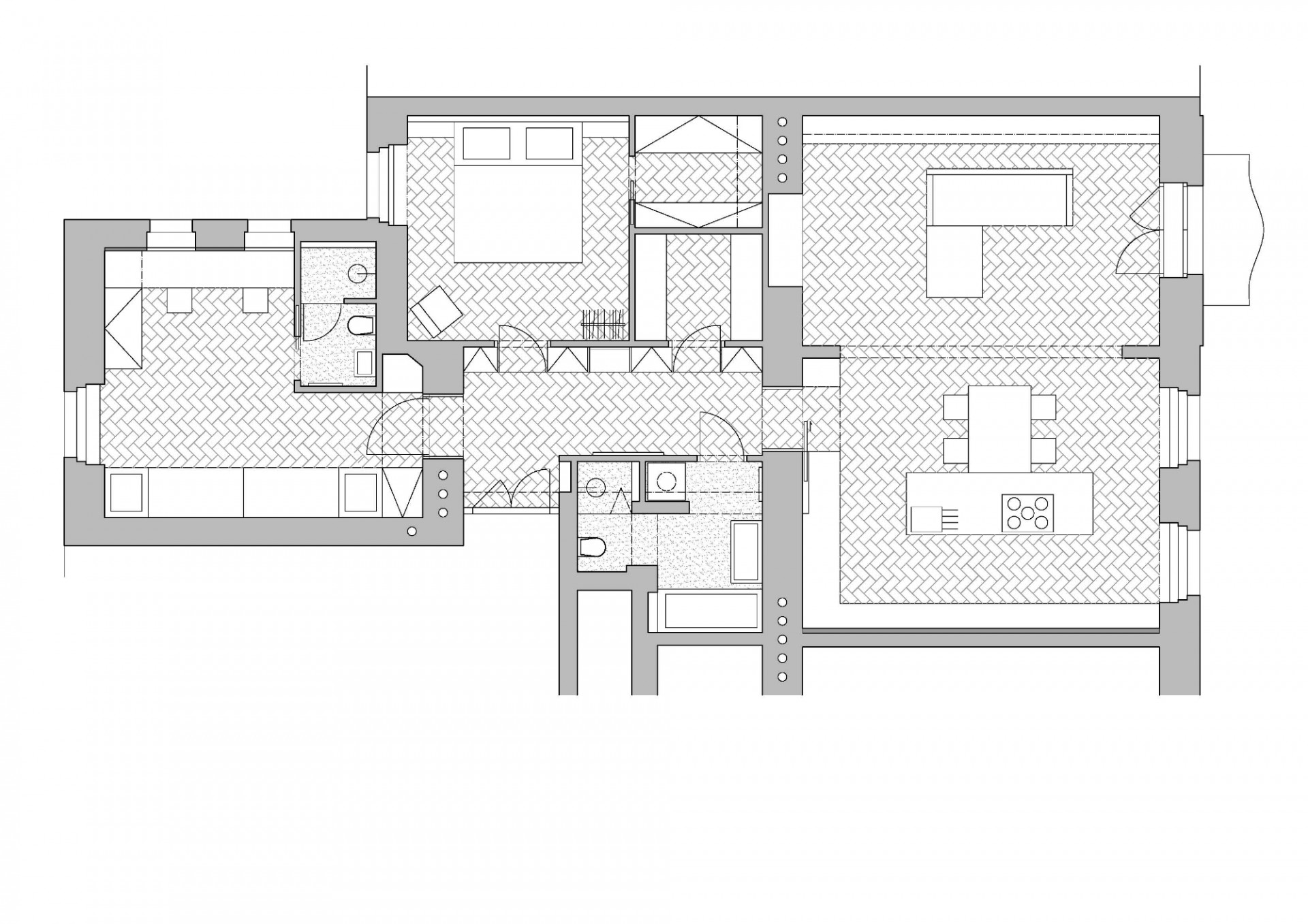
Jako většina radikálních proměn, i ta naše začíná tam, kde není vidět. Nároky na soukromí a neprůzvučnost konstrukcí v čase narostly, stejně jako dnes již není akceptovatelné žít na prohnutých a třesoucích se podlahách. Proto bylo třeba skladbu rozebrat a nosné trámy ztužit příložkami, stejně jako osadit podhledy nebo zazdít okna do světlíku – budoucí to výtahové šachty. Dále bylo nutné se vypořádat s nevyhovující dispozicí – snesením či posuny průběžných příček a jejich vynesením ocelovými překlady.

Nakonec byly v bytě rozpuštěny nezbytné technologie, nejen klasické jako je plynový kotel, ústřední topení v retro žebrové podobě, elektrické vyhřívání podlahy, zabezpečení nebo internet, ale i ty méně obvyklé. Například odtah digestoře integrovaný ve varné desce a odvedený podlahou. Ten umožňuje vaření na ostrůvku bez dělení hlavní obytné místnosti masivem zavěšeného přístroje a současně nenutí umístit vaření na osu místnosti, ale upřednostnit jeho ergonomii.
Celému interiéru dominuje práce s dobovou estetikou přirozených barev dřeva a bílých kazetových ploch kombinovaných s tlumenými odstíny šedé, zelené a bramborové – přirozených dubových odstínů.

- Autoři: Jakub Filip Novák, Daniela Baráčková, Barbora Jelínek
- Ateliér: No Architects
- Země: Česká republika
- Generální dodavatel: Mones Praha
- Město: Praha 2 - Vinohrady
- Datum projektu: 2017
- Realizace: 2018
- Užitná plocha: 105.00m2
- Truhlářské práce v interiéru: Truhlářství Fencl