Nový byt pod starým krovem. Rekonstrukce atypického půdního prostoru pro potřeby rostoucí rodiny
Mladý pár získal podkrovní byt ve kolonii Svoboda na pražských Vinohradech. Za pomoci ateliéru System Recovery Architects se ho povedlo zvětšit. Přibyly nové prvky, zůstal optimismus národního slohu z počátků československé republiky.
EARCH.CZ , 12. 7. 2023
Vilová kolonie Svoboda na pražských Vinohradech je unikátním architektonicko-urbanistickým souborem. Vystavěna na konci první světové války, manifestovala novou ideu zdravého a dostupného bydlení částečně podle principů anglických zahradních měst. Soubor vil a dvojvilek byl vystavěn v tzv. národním stylu či rondokubismu, který je specifickým stylem čistě pro prostředí prvorepublikového Československa. Není divu, že dnes kolonie Svoboda patří k nejkvalitnějším místům pro život v Praze.
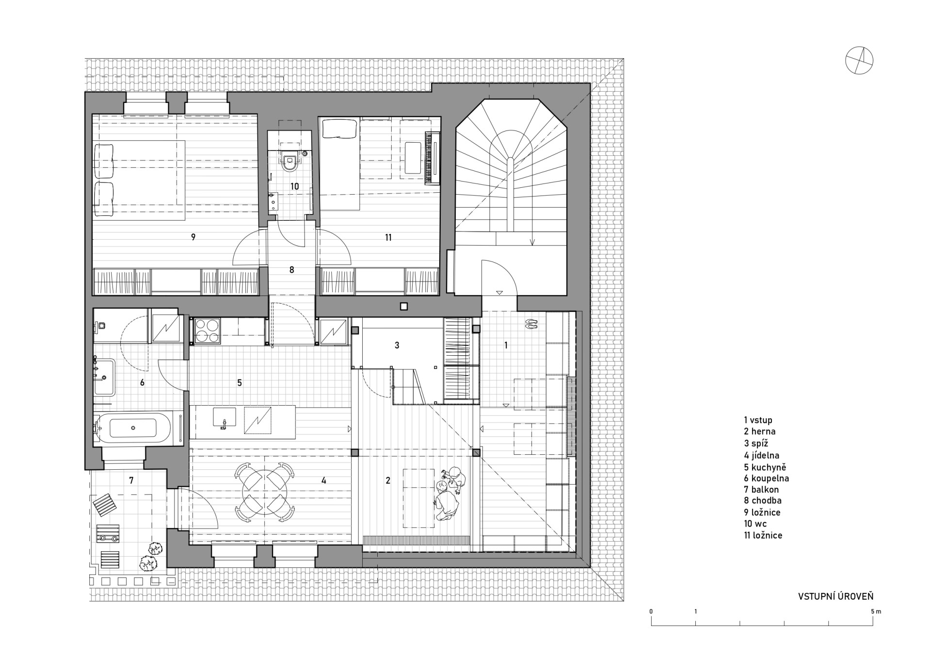
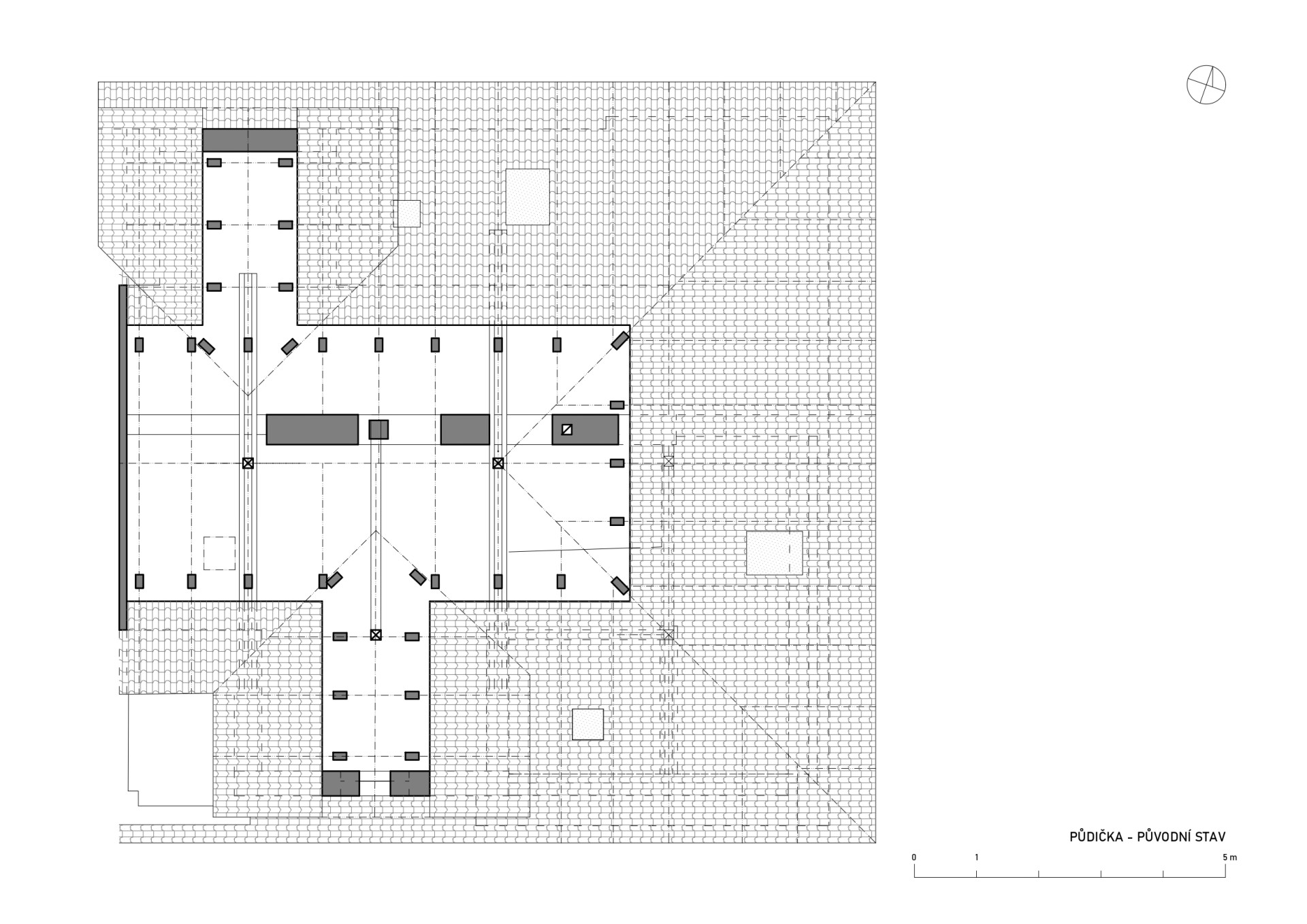
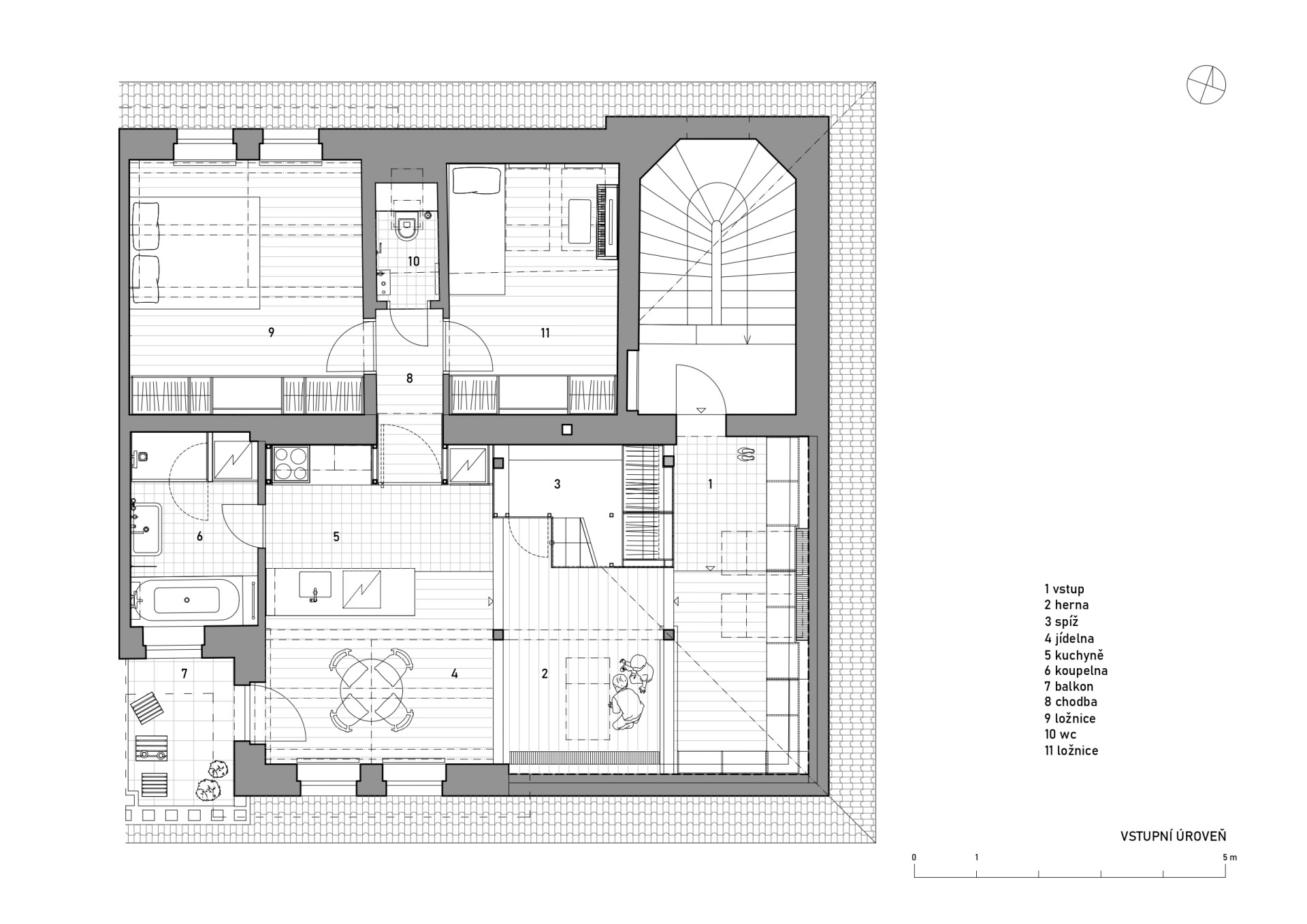
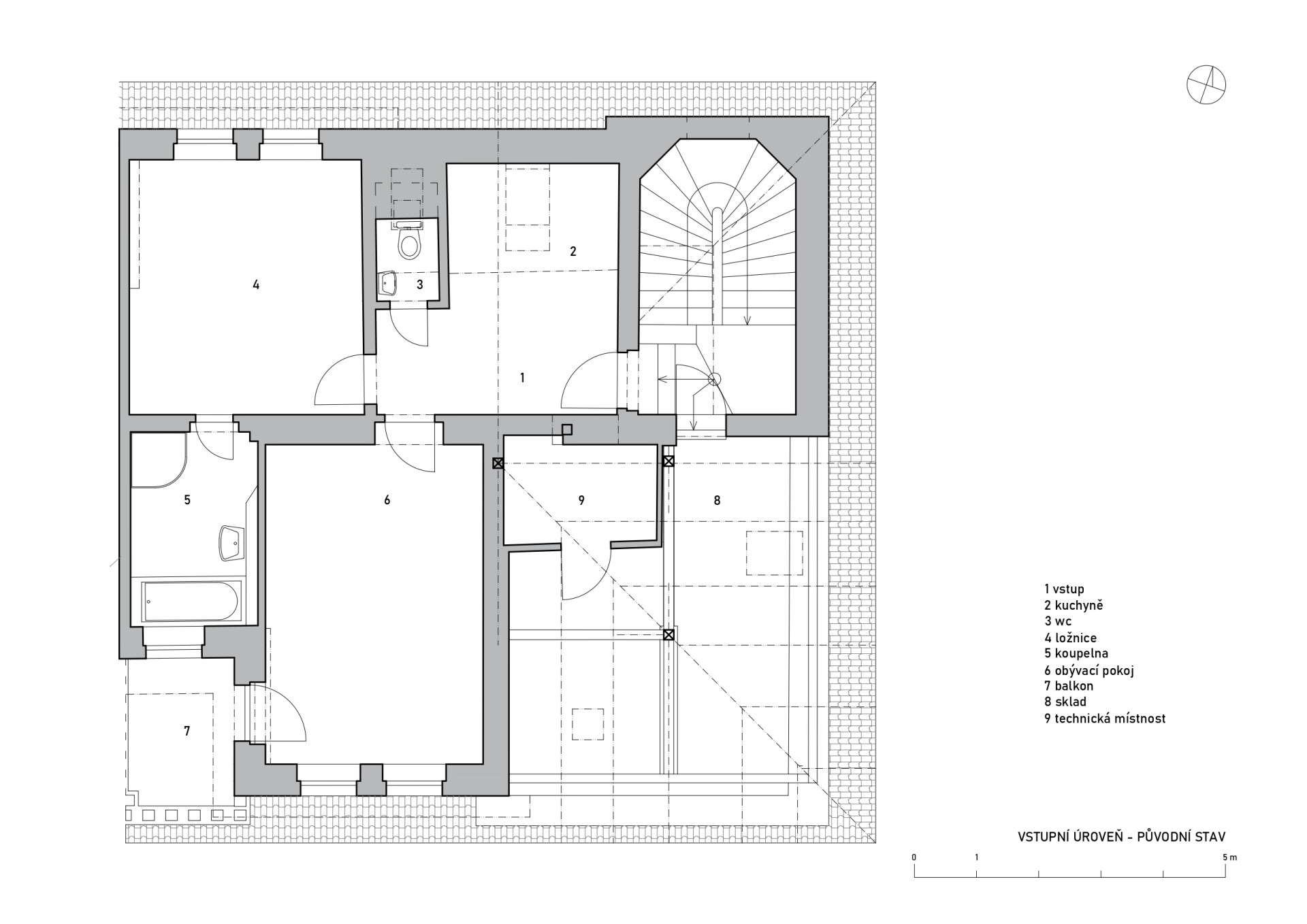
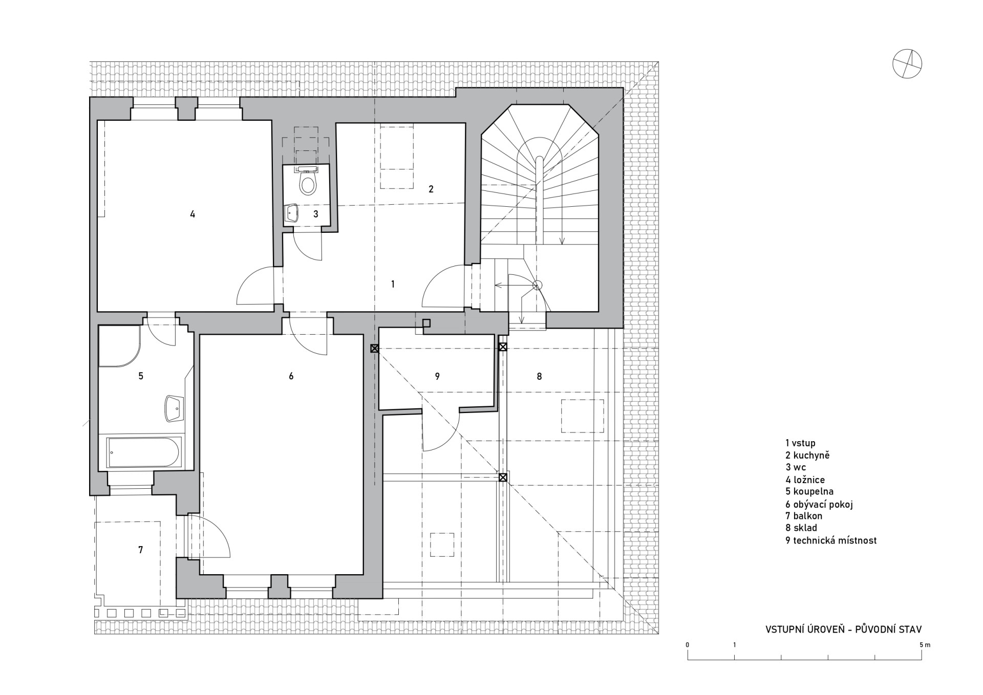
„Původní byt v podkroví trpěl dispozičními nedostatky (vstup z domovního schodiště přímo do kuchyně, průchozí ložnice, chybějící dětský pokoj). Zbývající půda plná harampádí a pavučin skýtala pod šikmou střechou s velkorysými vikýři slibné možnosti využití převýšeného prostoru. Optimismus a očekávání, svěžest a hravost éry národního slohu počátků československé republiky se staly volnou inspirací pro náš návrh,“ popisují začátek projektu architekti.
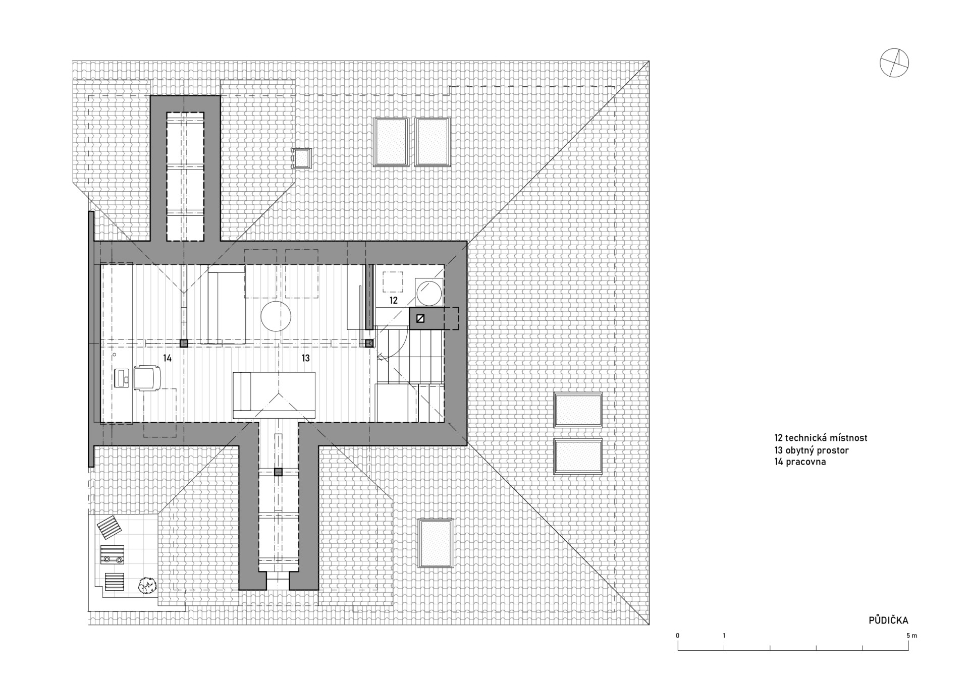
Na dřeň krovu
Celý prostor podkroví musel projít komplexní rekonstrukcí. Hlavní ideou již od začátku projektu bylo nechat krov maximálně otevřený a přiznaný, aby se stal hlavním a dominantním prvkem celého bytu. Kompletně odkryt byl také původně zabedněný prostor vikýřů. Nosné prvky, které omezovaly pohyb v prostoru byly nahrazeny skrytými ocelovými konstrukcemi.

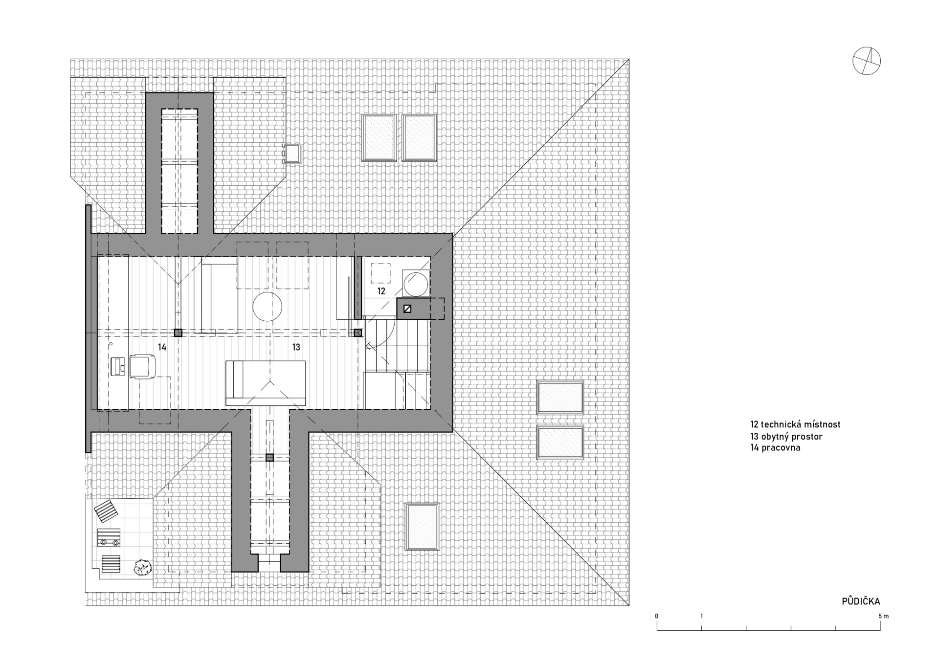
Uvnitř této kostry krovu, kterou tvoří mohutné dřevěné trámy s příjemnou patinou, architekti rozšířili a redefinovali původní byt. Patrně největším zásahem je odstranění střední nosné zdi, takže se k bytu připojil někdejší nevyužívaný sklad. Dále přibylo vložené schodiště, díky němuž bylo možné expandovat o patro výš na zmíněnou půdu. Namísto harampádí je tu teď obytný prostor s pracovnou. Vložené schodiště obsahuje úložné prostory. Volně navazuje na kuchyňskou linku ve stejném odstínu světle zelené, čímž společně vymezují společenský prostor bytu.
Vzájemný kontrast
Celý interiér hraje příjemným kontrastem starého přiznaného krovu v přírodním odstínu dřeva a nových interiérových prvků světlých odstínu. Nové prvky dodávají interiéru svěžest a vzdušnost, odkrytý krov zase patinu minulosti, oba vytvářejí harmonický celek nového prostředí pro rodinný život, který působí vzdušně, přívětivě a vizuálně větší, než je reálná velikost bytu.

„Barevnost interiéru je inspirována jasnou barevnou paletou národního slohu, její veselostí a štěstím. … Interiérové prvky svou jemnou jednoduchostí vytvářejí současnou vrstvu osobitého domu,“ tak shrnují svůj záměr autoři.
Více k tématu
- Ateliér: System Recovery Architects
- Autoři: Helena Línová, Vítězslav Kůstka
- Země: Česká republika
- Město: Vinohrady (Praha)
- Projekt: 2019
- Realizace: 2020 - 2021
- Generální dodavatel: Design & Build
- Truhlářské práce: Truhlářství Davídek