
Rodinný dům na předměstí Prahy upoutá svou jednoduchostí
V Říčanech u Prahy do okolní neuspořádané zástavby typické pro okraje měst vnáší rodinný dům od architektonického studia ABM architekti svou jednoduchostí a materiálovou čistotou kýžený klid.
Tomáš Kodet , 17. 12. 2022
Podlouhlý pozemek se nachází v jihozápadní části obce na rovinném terénu. Vstup na parcelu vede ze severovýchodu, jihozápadní strana se pak otevírá do prázdné krajiny. Kromě vlastního domu architekti navrhli také plot (nebo spíše obezdění) oddělující dům od příjezdové komunikace, což je často velmi přehlížený prvek, který má ale zásadní vliv na působení celé realizace. Nepropustná betonová zeď je označena rokem výstavby podobně jako se to dříve dělávalo u nejrůznějších typů stavení.

Za touto neprobouratelnou hradbou vystupuje dům majestátným způsobem. Dřevěné pobytí, hmotová kompozice vysoké a nízké části, diagonální rozvržení oken, vrata a vstupní dveře - to vše určuje měřítko zástavby a pomáhá rozpoznat funkce jednotlivých částí. Dům je pro kolemjdoucího čitelný a jasně uspořádaný. Své tajemství skrývá za rohem.

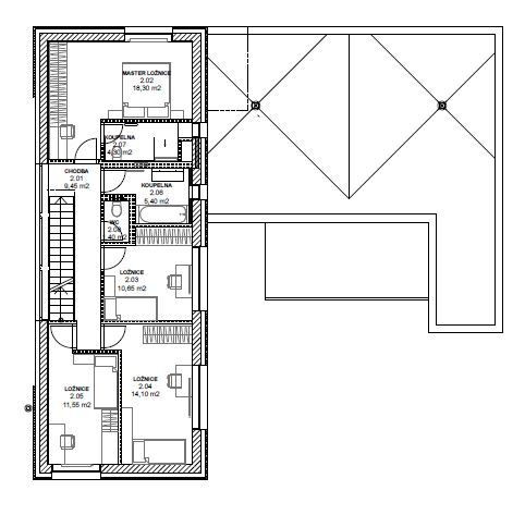
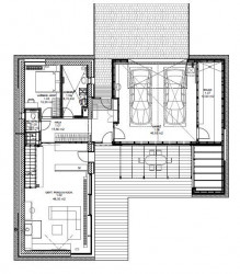
Půdorys přízemí do tvaru písmene U vytváří útulné závětří pro terasu, prodloužení obývacího pokoje do exteriéru a napojení vnitřního prostředí na zahradu. Obývací místnost s krbem a kuchyňským koutem je setkávacím místem rodiny a křižovatkou komunikačních zón. Schody jsou kompletně obložené dřevem a vytvářejí dojem tunelu. Horní patro doslova září bílou barvou. Stěny, dveřní křídla i rámy – to všechno je provedeno v čisté bílé. Jediný kontrast do prostoru přináší schodiště s podlahou a stropní trámy v přírodní barevnosti.

Běloba a čistota figuruje hlavní roli i v kuchyni a vstupních prostorech. V přízemí jsou dveře vytažené až ke stropu - zmínku si ale rozhodně zaslouží dřevěné dveře mezi vstupní částí a kuchyní, které se nacházejí mezi dvěma rozdílnými výškami stropu. Jejich provedení je hravé a přesně díky takovýmto detailům poznáte pečlivou práci architektů.

Více k tématu
- Autoři: Lukáš Bílek, Petr Bouřil
- Ateliér: ABM architekti
- Země: Česká republika
- Město: Říčany
- Ulice, číslo: Jeřábová
- PSČ: 25101
- Suma: 4 000 000.00
- Realizace: 2014
- Užitná plocha: 222.00m2
- Zastavěná plocha: 183.00m2
- Plocha pozemku: 1 220.00m2
- Materiál: dřevo