
Rodinný dům v Černošicích od ateliéru AIR vychází z principů architektury 30. let
Vyvýšená poloha pozemku s výhledem na Berounku se spojila s investorovým úzkým vztahem k architektuře stylu Bauhaus a dovedla architekty z ateliéru Air k návrhu elegantního rodinného domu nabízejícímu daleké pohledy po okolní krajině včetně české metropole. Vedle velkoformátových oken v přízemí dům disponuje také rozměrnou terasou pro posílení vztahu mezi domem a exteriérem. Na domě najdeme také řadu nautických prvků vztahujících se právě k modernistické architektuře meziválečného období.
Air ateliér , 22. 10. 2019
- Ateliér: Air ateliér
- Země: Česká republika
- Město: Černošice
- Datum projektu: 2014
- Realizace: 2016
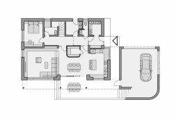
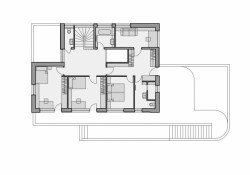
- Užitná plocha: 265.00m2
- Zastavěná plocha: 150.00m2