
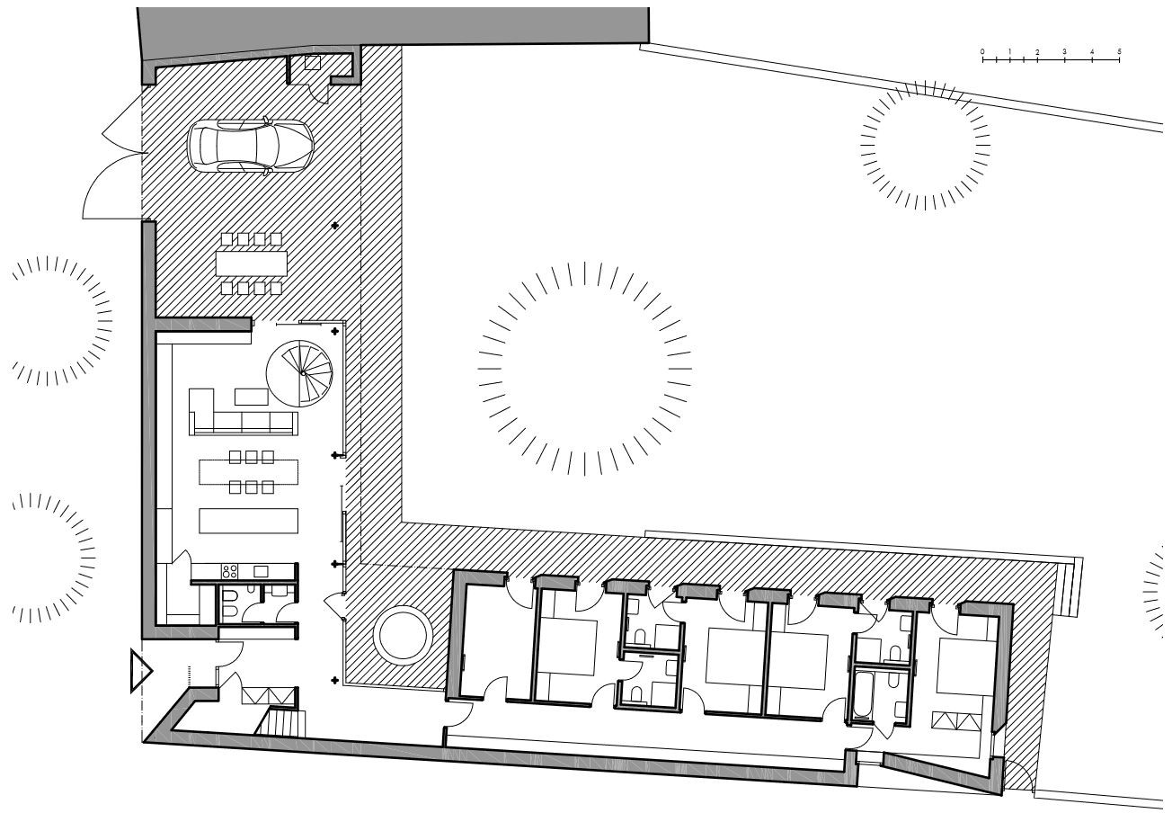
Rodinný dům od Ateliéru 6 a AIR ateliéru vychází z principů zástavby moravské vinařské obce
Původní stavení na jedné z největších parcel moravské obce Blatnice pod Svatým Antonínkem nahradil nový rodinný dům navržený Ateliérem 6, který dále dopracovali architekti z AIR ateliéru. Při tvorbě návrhu vycházeli architekti z respektu k okolní zástavbě i hmotovému řešení původního domu. Přesto však novostavba mluví jazykem současné architektury, který se projevuje například celoplošným prosklením směrem do soukromého dvora, či hlavním vstupem asymetricky zapuštěným do bílých zdí jinak tradičně vyhlížejícího stavení.
ATELIER 6 , 19. 6. 2019
- Autoři: Radek Šíma
- Ateliér: Air ateliér, ATELIER 6
- Spolupráce: Vítězslav Táborský, Aleš Jeřábek
- Země: Česká republika
- Město: Blatnice pod Svatým Antonínkem
- Datum projektu: 2014
- Realizace: 2018
- Užitná plocha: 274.00m2
- Zastavěná plocha: 370.00m2
- fotografie: Jiří Hurt