
S úctou k lokalitě. Belgický komplex sociálního bydlení zaujme svým postmoderním charakterem
V malém belgickém městě Lo-Reninge vznikl zajímavý projekt šestnácti sociálních bytů. Projekt ateliéru Architectenbureau Bart Dehaene si klade za cíl vytvořit architekturu, která odkazuje k lokalitě, historii i architektuře západního Vlámska a zároveň poskytuje příjemné prostředí pro život svých obyvatel.
Jan Bureš , 30. 5. 2023
Lo-Reninge je jedno z nejmenších měst v Belgii ležící na západě vlámského regionu v blízkosti francouzských hranic. Město, jehož historie sahá až do 11. století, tvoří malebná kombinace vlámské cihlové architektury, středověkých staveb (jeho staroměstská radnice z 16. století je památkou UNESCO) a rozlehlé krajiny poldrů. A právě zde, na okraji města v blízkosti kanálu Lovaart, bylo rozhodnuto o stavbě šestnácti sociálních bytů, které kombinují soukromé a nájemní byty.
Více k tématu
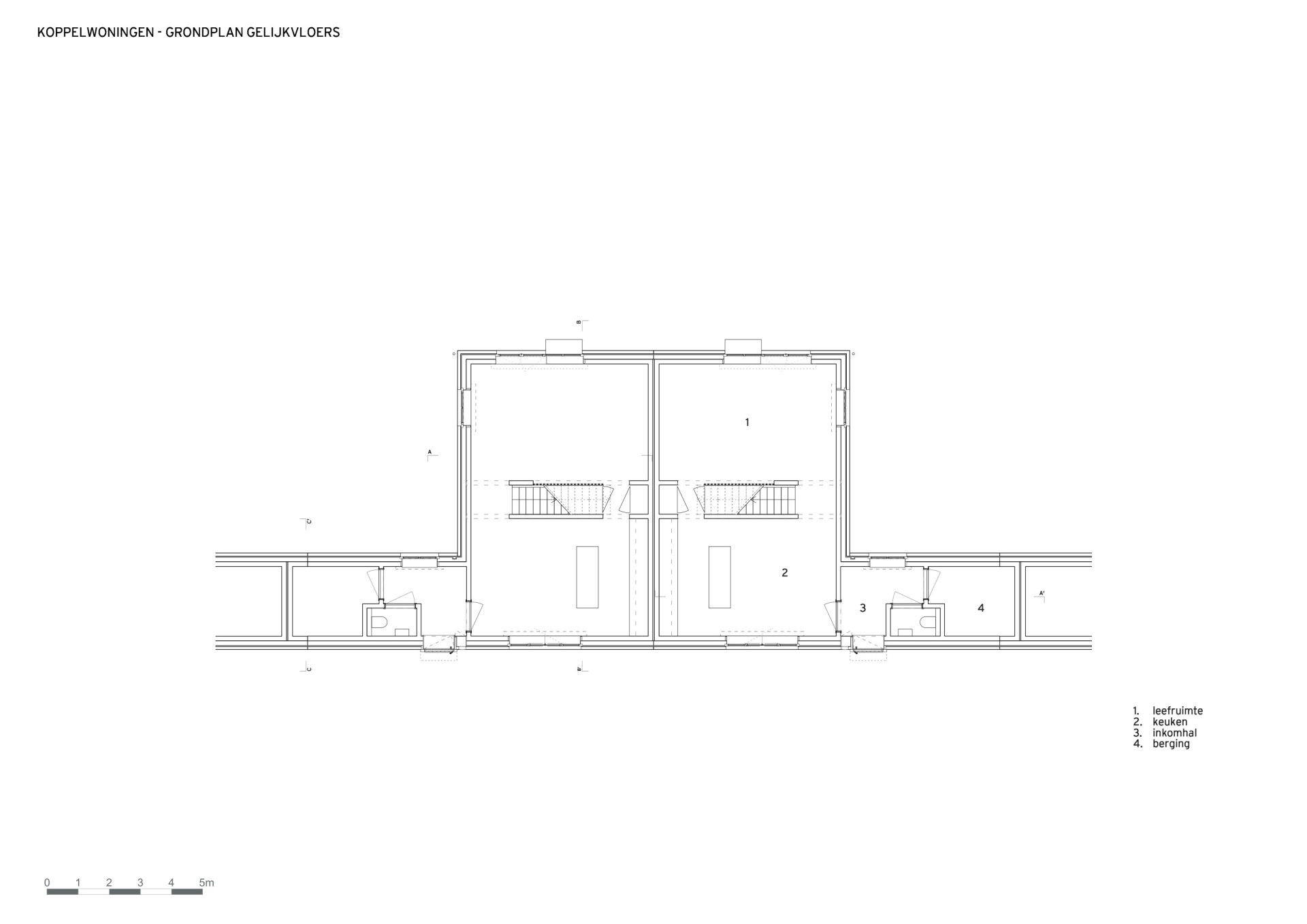
Bytové dvojdomy svou architektonickou interpretací odkazují na podobu západovlámského venkovského domu s mansardovou střechou. Svou velikostí balancují mezi strukturou středověkého jádra obce a pozdějšími dostavbami širšího centra. Střídáním forem dvoupodlažních „vil“ venkovského typu s mansardovou střechou a jednopodlažních přístaveb vzniká zajímavý a proměnlivý uliční profil, který dává souboru příjemné a adekvátní měřítko.

Jednotlivé řady domů jsou na parcele umístěny na jejím vnějším okraji, čímž vzniká plášť, který odděluje veřejné prostranství, od soukromých zahrad jednotlivých domů. Zahrady poskytující svým obyvatelům intimní místo pro odpočinek jsou od vnitřního polosoukromého dvora odděleny živým plotem se zahradními brankami. Díky tomuto gradientu od soukromého prostoru zahrad, přes polosoukromý dvůr až po veřejnou ulici je obyvatelům umožněno budovat komunitní soužití uvnitř souboru bez narušení soukromí života.
Soukromé byty jsou umístěny v rovných částech souboru, zatímco ty nájemní se nacházejí v jeho rozích, čímž vytvářejí specifickou nárožní dominantu s obloukovým portikem, která v sobě sdružuje dvojici vchodových dveří. Dominantním materiálem celého souboru je pálená cihla okrové barvy, která současným způsobem navazuje na vlámskou tradici cihelných fasád a podobu místního venkovského prostředí.

Pozoruhodným detailem a charakteristickým znakem, který podtrhuje důležitost nárožního portika, jsou atypické skulpturální betonové sloupy. Jejich postmoderní estetika v sobě zajímavým způsobem kombinuje motivy místní historické architektury jako například sloupy, jež podpírají staroměstskou radnici z 16. století. Jejich autorem je současný umělec z Gentu Dirk Zoete, který ve spolupráci s architekty vytvořil sérii několika originálních sloupů, které se liší pro každé nároží. Díky tomu fungují nejen jako stavební prvek, ale také jako orientační a poznávací znak pro místní obyvatele.

Soubor sociálního bydlení v Lo-Reninge od gentského ateliéru Architectenbureau Bart Dehaene vytváří nejen příjemné prostředí pro život svých obyvatel, ale jasně demonstruje, že i sociální bydlení může vytvářet silnou identitu místa s odkazem na lokální charakter.
- Ateliér: Architectenbureau Bart Dehaene
- Spolupráce: Sileghem & Partners, Bureau E-Norm, Dirk Zoete
- Země: Belgie
- Město: Lo-Reninge
- Projekt: 2020
- Investor: Yzer & Zee