
Duhové zahrady v Hasseltu, které jsou pokaždé jiné. Jejich autoři z krajinářského ateliéru RSL přijíždí do Prahy
Zahrady, které se vyvíjejí a rostou stejně jako lidé v nich. Promyšlené, překvapivé a jiné – takové navrhuje studio krajinářské architektury Rebediani Scaccabarozzi Landscapes z Milána. V úterý 4. června 2024 představí svoji tvorbu na přednášce v galerii VI PER. Třeba i poetické zahrady, které lze navštívit v belgickém Hasseltu.
Karolína Vránková , 4. 6. 2024
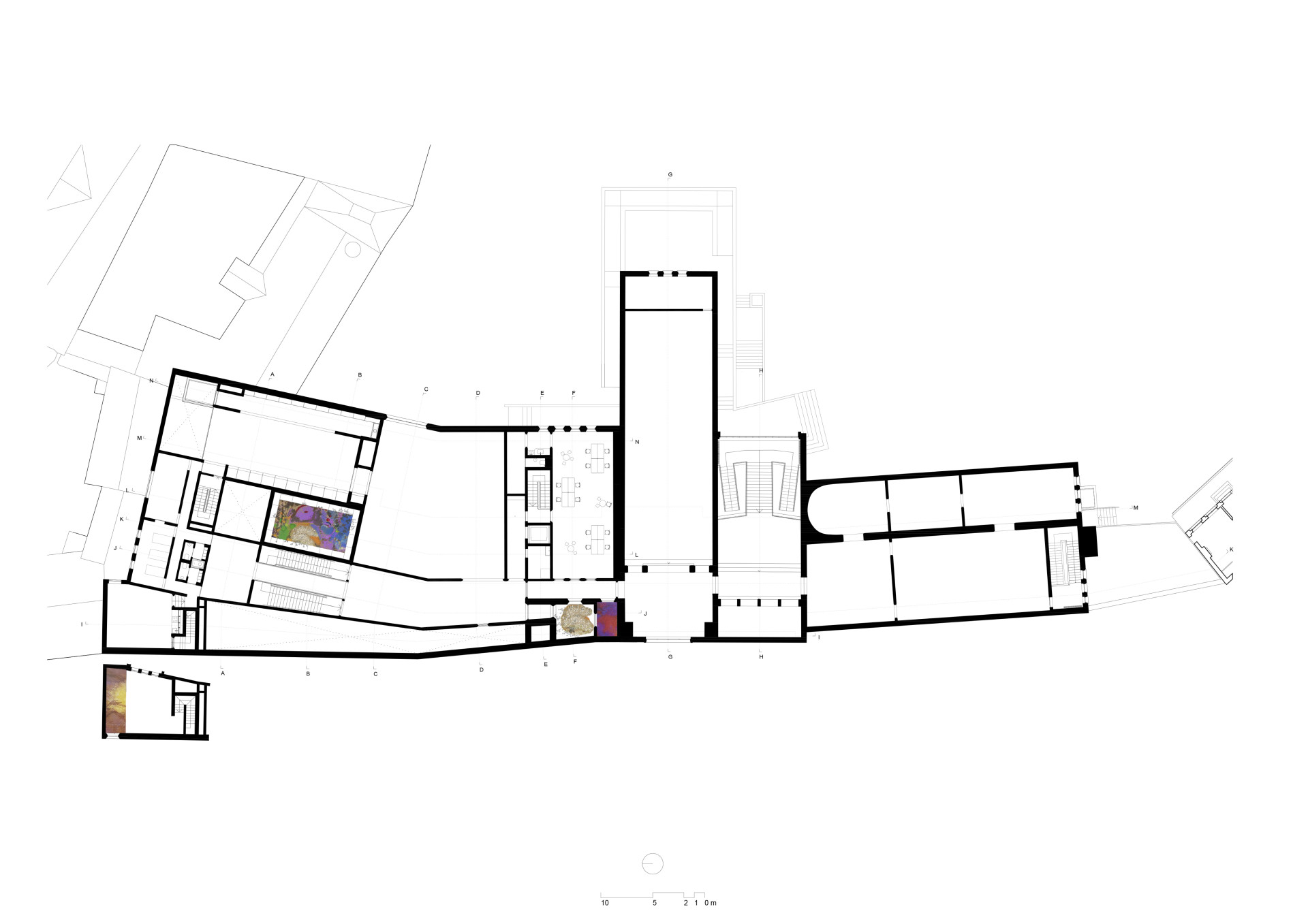
Studio Rebediani Scaccabarozzi Landscapes (vystupující spíš pod zkratkou RSL) založili v roce 2018 mladí absolventi krajinářské architektury Lorenzo Rebediani a Vera Scaccabarozzi. Od té doby se jim povedlo etablovat se v oboru a navrhnout řadu soukromých i veřejných zahrad, které představí na přednášce. K těm nejnovějším patří čtveřice střešních zahrad jako „pokojů bez stropu“ v areálu Z33, což je pozoruhodný výstavní komplex plný současného umění ve městě Hasselt v Belgii.

Hasselt je středověké město v belgické provincii Limburg, známé zejména svou starou historií a také tradicí jalovcové pálenky nazývané jenever. V centru Hasseltu mají v jedné ze starých palíren oblíbené Jenever Museum. K bývalé palírně přiléhá dále bekináž tedy dům, kde žily mnišky bekyně, objekt podobný klášteru. Právě tady vzniklo Z33. K této srostlici historických cihlových budov přibyla před čtyřmi lety další. Dům současného umění, designu a architektury (House for Contemporary Art, Design & Architecture) podle návrhu architektky Francescy Torzo.

Architektka si pohrála s elementy pro středověké centrum Hasseltu typickými – cihlové zdivo transformovala do keramických fasádních kachlů. A podobně přetvořila spleť uliček a průchodů v předivo chodeb a sálů. „Je to miniatura, parfém destilovaný z jiných částí města,“ říká architektka ve videu, které popisuje vznik budovy.
Součástí přediva jsou i čtyři zahrady, nebo možná spíš čtyři místnosti bez stropu, „v dialogu s oblohou,“ jak je popisují architekti z RSL. V nich navrhli vnitřní zahrady jako jakési instalace, které by se měly proměňovat ve stejném rytmu jako dočasné výstavy uvnitř budovy. Návštěvník tak pokaždé najde zahradu trochu jinou. „Při navrhování tohoto scénáře jsme považovali každou rostlinu za proces, nikoli za objekt, a propletli jsme tyto toky do duhových zahrad,“ popisují architekti v rozhovoru pro magazín Kontextur.
Více k tématu
V této realizaci se poetická krajina potkává s poetickou architekturou. Na přednášce představí RSL i další svoji tvorbu – navrhovali zahrady kulturních institucí, hotelů i soukromých domů. Jejich zdrojem inspirace je také jejich druhá adresa Faggeto Lario, což je malá vesnice u jezera Como, kde pracují v blízkém vztahu s krajinou a přírodou kolem. Zde také, spolu se Sofií Piou Belenky, založili tònos, tedy organizaci, která se zaměřuje na dlouhodobý výzkum zapadlých regionů. A kde také, jak říká Vera Scaccabarozzi v rozhovoru, s oblibou pozoruje mlhu a přemýšlí, jak ji využít ve svých projektech.
O své tvorbě plné kreativní práce s přírodou budou Lorenzo Rebediani a Vera Scaccabarozzi přednášet v galerii VI PER v Karlíně od 19 hodin v rámci cyklu In Focus Milano, jehož kurátorem je architekt Miroslav Pazdera.
- Ateliér: Francesca Torzo architetto
- Země: Belgie
- Město: Hasselt
- Realizace: 2019
- Investor: Provincie Limburg, Z33
- Statické řešení: Conzett Bronzini Partner ag
- Krajinářská architektura: Rebediani Scaccabarozzi Landscapes
- Fotograf: Gion Balthasar Von Albertini