Dům s velkým „okem“. Má zahradu v kuchyni i za oknem
Zelená, červená, hodně světla a cihly. Kousek od Bruselu stojí nově zrekonstruované tradiční belgické stavení.
Viktorie Majoberová , 5. 2. 2025
V belgickém městě Wichelen, což je na půl cesty mezi Bruselem a Gentem, stojí nově zrekonstruovaný dům. Belgické studio Objekt Architecten upravilo původní zděnou stavbu. Podařilo se mu vdechnou současný švih i zachovat původní klasický výraz.
Hlavní změna se odehrála na čelním štítu domu. Původně byl totiž zakrytý kvůli problémům s vlhkostí. Architekti se ho rozhodli odkrýt a na fasádu přidat nové velkoformátové okno. Tradiční dům tím dostal nádech současnosti - především svojí proporcí, která je nadměrná a na čelní stěně překvapivá. Malá změna se odehrála i na fasádě zadní, kam architekti přidali dvojité okno, které propojuje interiér se zahradou a okolními loukami. Exteriér jinak zůstal beze změn.

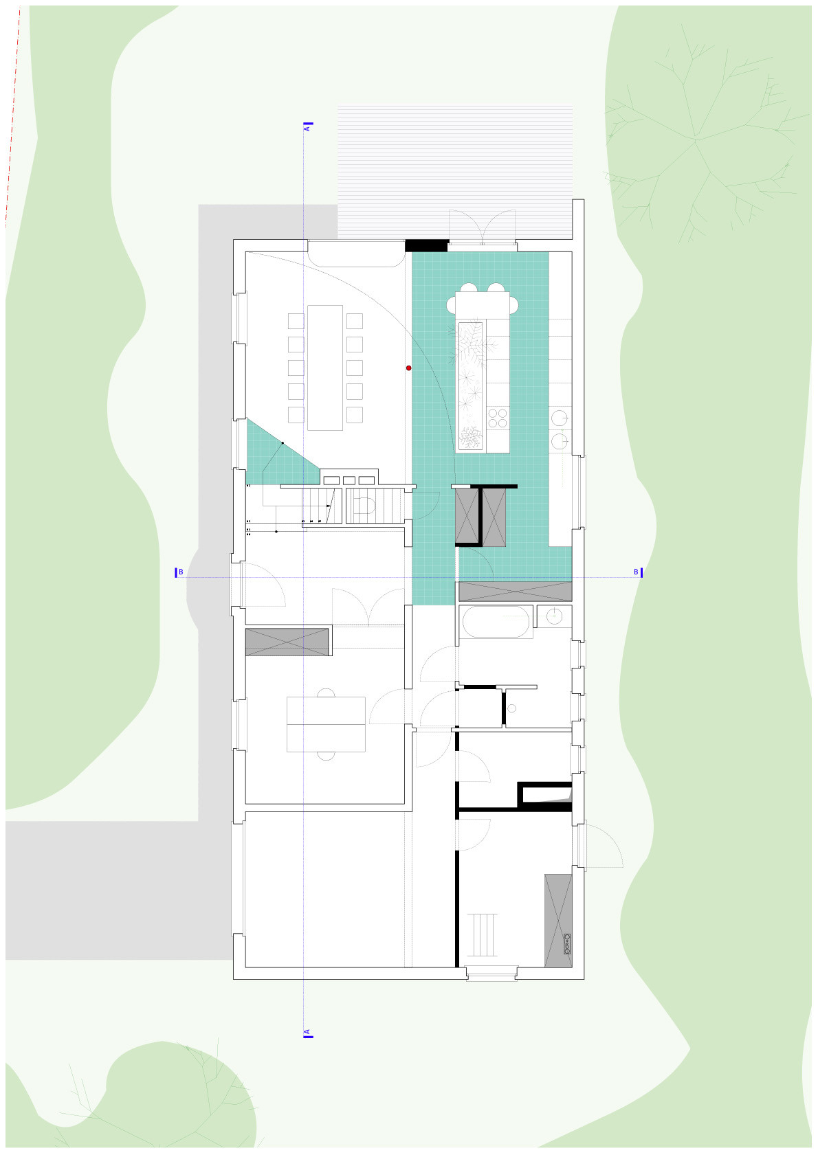
Největší změny se odehrály v interiéru domu. Architekti odstranili původní strop, čímž vytvořili otevřený vzdušný prostor sahající až k dřevěným trámům střechy. V dvojité výšce prostoru byla vytvořena mezipatrová galerie. Je to takové mezipatro, které se vznáší nad hlavním obytným prostorem s kuchyní v přízemí. Nové patro je do starého objektu vložené jako monolitická betonová konstrukce „sedící“ na kovovém profilu, který ztužuje konstrukci celého domu.
Kuchyňská zeleň
Přízemí rozděluje překvapivý prvek – na míru navržený veliký květináč. Je umístěn uprostřed obývacího pokoje a odděluje kuchyňský kout od jídelního stolu. Každá strana místnosti má odlišný charakter, a to i díky volbě materiálu. Celá strana s kuchyňským koutem je obložená zelenými kachličkami, zatímco část pobytová je dřevěná. V přízemí se dále nachází koupelna, technická místnost a malý pokoj.
Více k tématu
Z obývacího pokoje vedou zelené schody do prvního patra. Když vyběhnete nahoru, ocitnete se v již zmíněné mezipatrové galerii, kde si můžete lehnout do křesílka a poslouchat kuchyňský ruch. Pokud se dáte doprava, projedete dlouhou chodbou, kterou lemují dva menší pokoje a koupelna. Chodba končí dveřmi do hlavní ložnice.

Propojení historie se současností je náročná disciplína. Je k ní potřeba hodně citu pro to, kde ubrat a kde přidat tak, aby jedna strana nepřekřičela tu druhou. Ve Wichelenu se to povedlo, a tak mají majitelé nový moderní domov, jehož čelní fasáda je jako obličej starého člověka - je na něm vidět všechno, co dům zažil od začátku až do současnosti.
- Ateliér: Objekt Architecten
- Autoři: Niels Van der Straeten, Dries Van Nieuwenbergh, Mahir Yavas
- Země: Belgie
- Město: Wichelen
- Realizace: 2023
- Užitná plocha: 306 m²