Splynutí s terénem. Nová sportovní hala, která doplnila areál základní školy, je částečně zapuštěna do země
Základní školu v pražských Letňanech nově doplnila sportovní hala. Rafinovaným architektonickým řešením se na malém pozemku podařilo vytvořit venkovní i vnitřní sportoviště zároveň. Celá budova je totiž zapuštěna do terénu, se kterým harmonicky splývá.
EARCH.CZ , 19. 10. 2023 / Advertorial
Základní škola Rychnovská v městské části Praha – Letňany nutně potřebovala nové a moderní sportoviště se zázemím. Problémem však bylo, že menší areál neměl dostatek místa na venkovní i vnitřní sportoviště zároveň.
Vedení školy tak oslovilo architekty ze studia Arch.Design, aby se pokusili nalézt řešení, jak na malé ploše areálu vytvořit jak venkovní, tak vnitřní sportoviště s odpovídajícím zázemím. Z celkové situace areálu a umístění hlavní a nejstarší budovy, bylo pro architekty důležité budově nedominovat, ale naopak jí ustoupit adekvátním architektonickým gestem.
Více k tématu
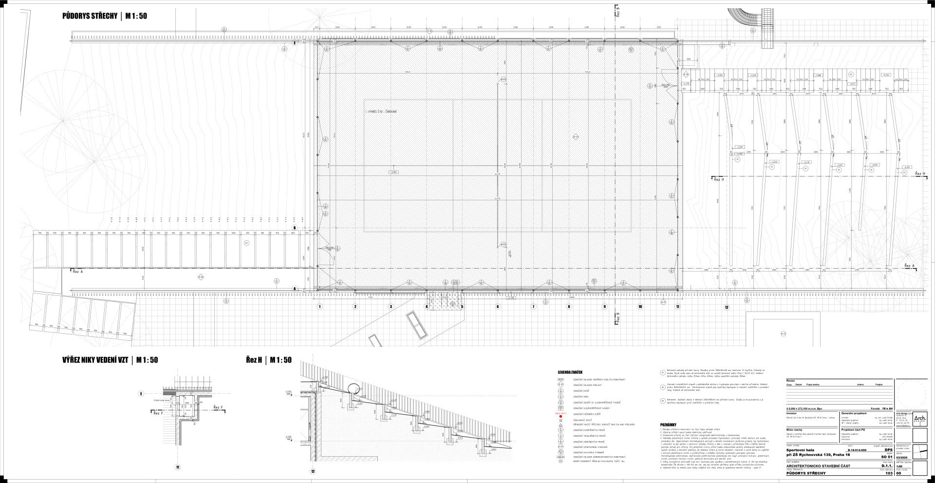
Rozhodli se tak pro zapuštění budovy asi z jedné třetiny do země, což celkovou výšku stavby o dost sníží. Jak to ovšem bývá se vším, umístění stavby pod úroveň terénu má své plusy i mínusy. Jedním z mínusů je například vyšší požadavek na izolaci spodní stavby. V tomto případě však benefity nevýhody převážili.
Zaprvé se snížily nároky na vytápění, jelikož zemina nahrazuje tepelnou izolaci. Další výhodou bylo zpřístupnění střechy. Architekti z Arch.Design to popisují: „Posunutí hlavního podlaží pod úroveň terénu byla možnost vytvoření snadno přístupného sportoviště, které je umístěno na střeše sportovní haly. Umístěním hrací plochy pod terén se zmenšil výškový rozdíl mezi přilehlým terénem a střechou. Přístup na střešní sportoviště je možný ze dvou stran skrze násypy, které zároveň tvoří prostor pro rozmanitou výsadbu svahů,“ upřesňují.

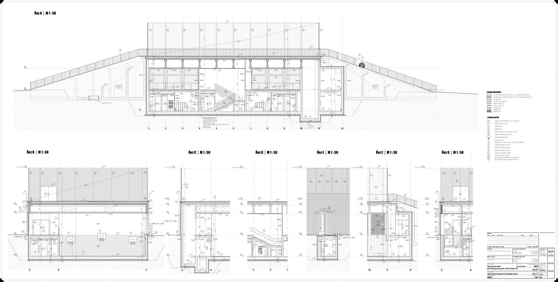
Zelení porostlý násyp však nemá výhodu pouze jako rampa zpřístupňující venkovní sportoviště na střeše. Architekti je rafinovaně využily jako úkryty vykopané zeminy spodní stavby. Z jedné strany je násyp ponechán volný pouze s rovnou rampou, z druhé strany je jeho povrch upraven tak, že vytváří porostlé schody podobné terasovitým rýžovým polím v Asii.
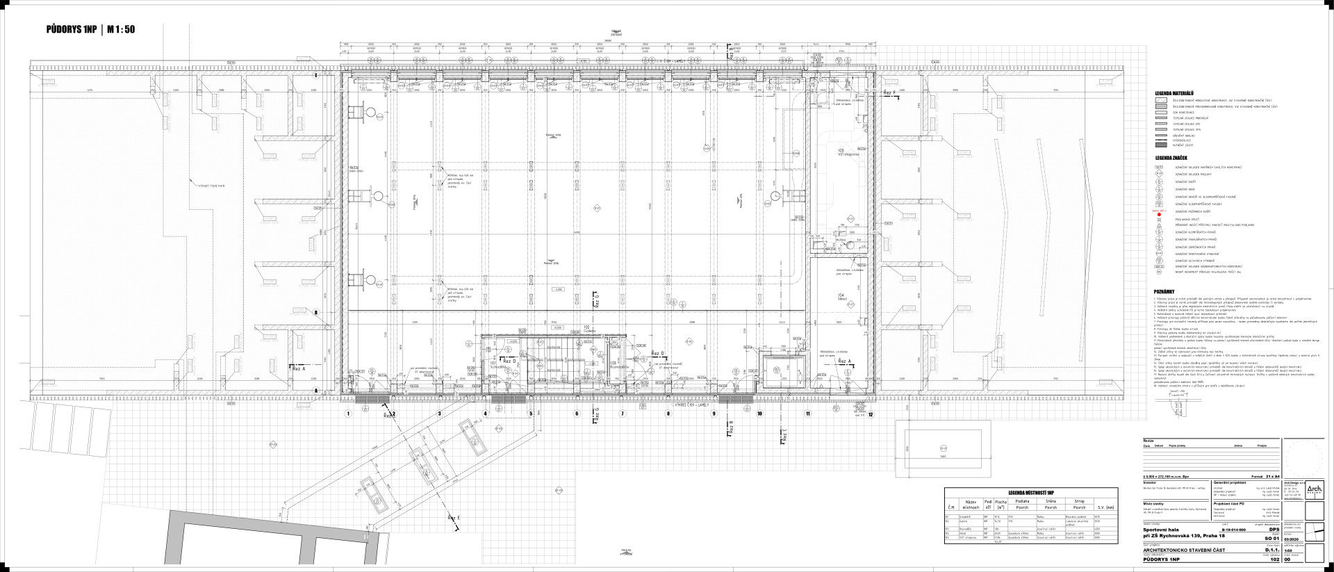
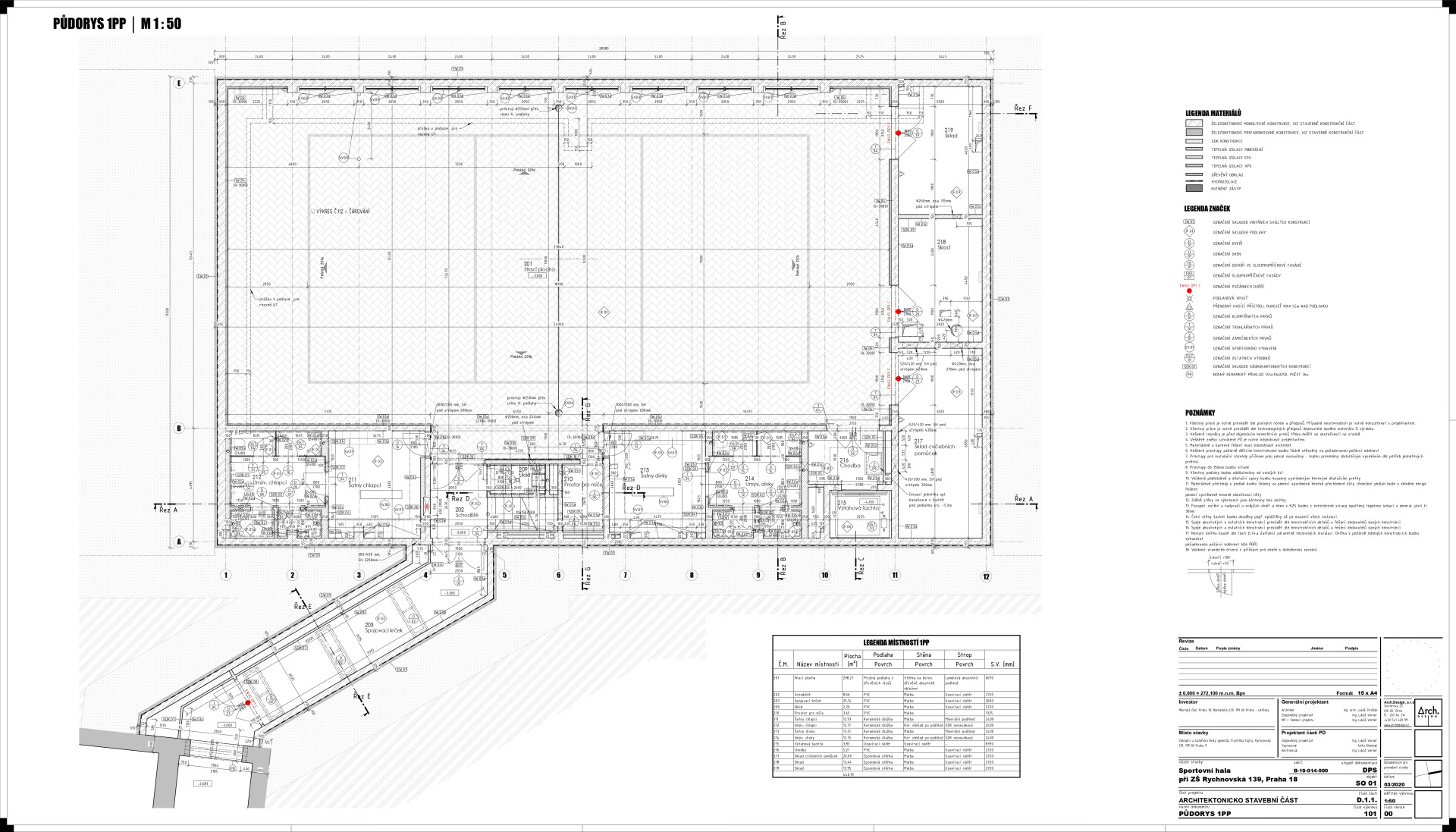
Hlavní vstup do objektu je situován symetricky uprostřed na terénu tak, že v před prostoru vytváří menší piazzettu. Funkční propojení v rámci školy a „suchou nohou“ je koncipováno skrze spojovací krček v podzemním podlaží s hrací plochou tělocvičny. Ta má skrze zapuštění do terénu světlou výšku 6 metrů s galeriemi, ze kterých je možnost sledovat dění uvnitř.

Aby celá stavba ještě posílila svou „nenápadnost“ a lépe splynula s okolím, opláštili její fasádu autoři dřevěnými latěmi v pravidelném rytmu. Stavbě to dodává současný charakter a odlišuje ji to od okolních budov začátku a druhé poloviny 20. století.
Budovy školy mají všeobecně vysoké požadavky na kvalitu vnitřního prostředí staveb. A u sportovišť s velkými otevřenými prostory to platí ještě víc. Fasáda školy „za dřevem“ tedy byla vybavena fasádními prvky společnosti Aluprof, specializující se na hliníkové fasádní systémy a okenní a dveřní profily, které na trhu patří k těm nejlepším. Při stavbě základní školy architekti využily okenní a dveřní systém MB-86 SI s vynikajícími izolačními vlastnostmi pro vstupní fasádu a systém MB-79N pro velkoformátová okna osvětlující tělocvičnu charakteristickým „bazilikálním“ osvětlením.

Realizace Základní školy v Letňanech od architektonického studia Arch.Design je vydařená nejen svým architektonickým charakterem a současným vzhledem doplňující školní areál, ale především rafinovaným prostorovým konceptem, který zapuštěním celého objemu do terénu vytvořil pochozí střechu, která je současně veřejným a hravým venkovním prostorem se zelení. V normálním případě domu na terénu by tento prostor pravděpodobně střecha „vzala“, a je tedy dobře, že se podařilo realizovat odvážnější a nestandardní, ale smysluplnější řešení maximálně využívající venkovní plochu.
- Ateliér: Arch.Design
- Autoři: Ing. arch. Vladislav Králíček
- Země: Česká republika
- Město: Praha
- Adresa: Rychnovská 350, 199 00 Praha 18