
Spousta prostoru a světla za pět milionů. Dům bez chodeb a s odhalenou dřevěnou konstrukcí
Podle regulace to musel být bílý kvádr s černými okny. A musel stát kolem pěti milionů. Omezení vzali architekti z 0,5 Studio jako výzvu a vytvořili jednoduchý dům s minimem chodeb, který se před sousedy uzavírá do zahrady.
EARCH.CZ , 9. 2. 2024
„V roce 2021 nás a firmu Chytrý dům oslovil investor s prosbou o návrh rodinného domu v nově se rozvíjející čtvrti v městské části Dobříš – průmyslová zóna. Přáním bylo navrhnout jednoduchý dřevěný bungalov 4+kk. Dům měl být racionální a měl nést industriální odkaz k území, ve kterém se novostavba nachází,“ uvádí začátek projektu Vít Svoboda z 0,5 Studio.
Více k tématu
Územní regulace podobu budoucích rodinných domů jasně definovala – bílé krychle či kvádry s černými okny. Někoho by možná podobná regulace vytvářející sterilní prostředí satelitu odradila, pro 0,5 Studio se však tento „ne-kontext“ a omezený rozpočet staly výzvou, kterou přijali. „Vznikl dům, který stál jen 5,5 milionů. Má v celé zástavbě největší obytný prostor a nejméně chodeb,“ říká architekt.

Na malém půdoryse bohatá dispozice
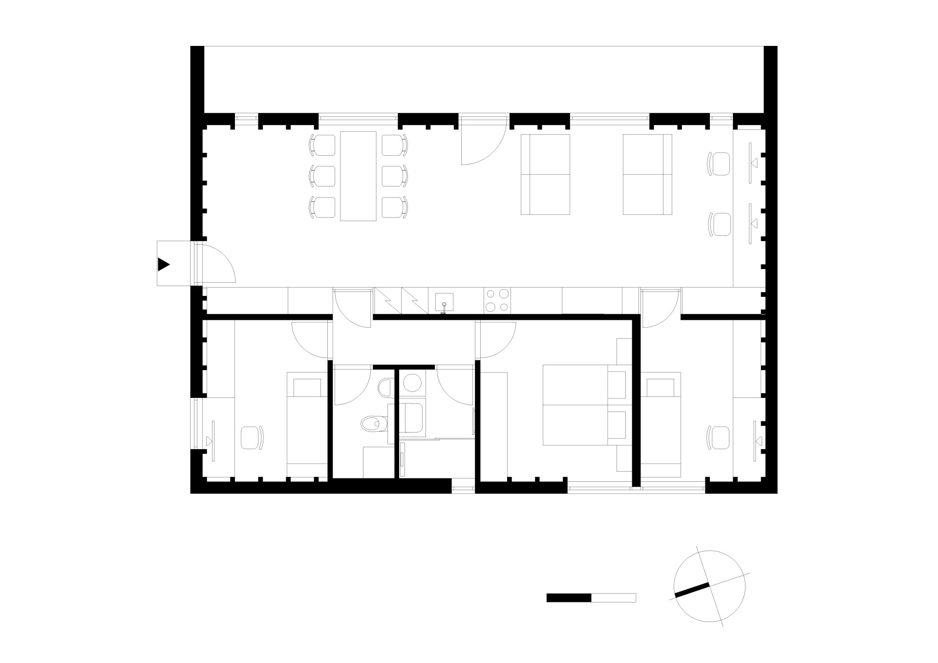
Odpovědí autorů na místní regulaci, okolí, tvar pozemku a jeho návaznosti se stal racionální a jednoduchý objekt jak po hmotové, konstrukční, tak dispoziční stránce. Prvním vstupujícím faktorem byla pozice postranních objektů. Z důvodu poměrně úzkého pozemku autoři usadili dům tak, aby jej maximálně odclonili od sousedů.
Výsledkem je obdélníková hmota, která je dispozičně symetricky rozdělena na obytný prostor na jedné straně a ložnicemi a zázemím na straně druhé. Tím, že se vstupuje z boku napřímo do obytného prostoru, do kterého ústí všechny místnosti, se podařilo eliminovat chodby a maximalizovala se efektivita prostoru bez „zbytkových“ zón.

Na malém půdoryse tak vznikla bohatá dispozice a velkolepý obytný prostor, který skrze povytažení bočních stěn v exteriéru volně proplová do zahrady přes intimnější terasu. Dělící střední příčka nyní obsahuje pouze kuchyň, ale do budoucna je zamýšlená transformace v obytnou stěnu, jež „pohltí“ kuchyň a vstupy do pokojů úložným prostorem.
Použitá konstrukce pravidelných dřevěných prvků se do exteriéru zahrady propisuje skrze symetrickou kompozici 5 otvorů na šířku jednoho, dvou nebo tří modulů. Tímto jednoduchým, ale sofistikovaným řešením získala hlavní fasáda domu racionální řád a tvář, která si „na nic nehraje.“
V interiéru, který si zařídil investor kompletně sám, posloužila sama konstrukce, obnažená ve své ryzí podstatě jako hlavní výrazový prostředek. A účinek je unikátní. Kombinace rytmických dřevěných prvků, bílých stěn a jednoduchého nábytku s lehkým barevným akcentem vytváří přirozené teplo a vnáší do interiéru úplně odlišný dojem, než jakým dýchá jeho až příliš jednotné a bílé okolí.
„Na projektu byl přínosný přístup investora, který se aktivně podílel na vývoji konceptu společně s námi, projektanty a stavební firmou Chytrý dům,“ říká architekt. Společné dílo přineslo výsledky: největší dům v okolí, možná i za nejmenší peníze.
- Autoři: Vít Svoboda, Pavel Nový
- Ateliér: 0,5 Studio
- Spolupráce: Sausan Haj Abdo
- Země: Česká republika
- Město: Dobříš
- Projekt: 2021
- Realizace: 2023
- Fotograf: Peter Fabo
- Projekt a realizace:: Chytrý dům s.r.o
- Podlahová plocha: 98 m²
- Plocha terasy: 18 m²