
K zahradě čelem, k silnici zády. Dům v Berouně je citlivě posazený na svažitém pozemku
Z ulice je nenápadný. Důmyslně navržený rodinný dům otevírá své výhledy především do zahrady a okolní zeleně. Citlivě pracuje s orientací ke světovým stranám, okolním domům a výhledům.
EARCH.CZ , 26. 9. 2023
Atypický pozemek v zastavěné části Berouna se výrazně svažuje od přístupové silnice. Sousední domy stojí poměrně blízko a parcela není velká. I přes nepříznivé podmínky se ale architektce Markétě Bromové povedlo vytvořit kvalitní návrh domu, který mladé rodině poskytuje dostatek soukromí a příjemné zázemí pro život.
Více k tématu
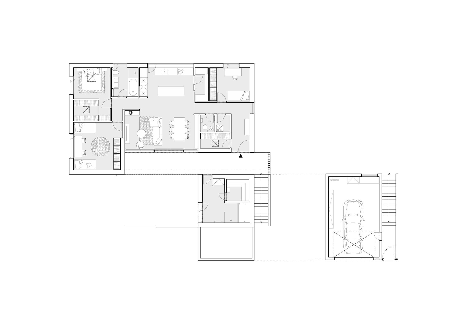
Dům ve tvaru L se nachází na severní straně pozemku. Na jeho protilehlé straně vznikla obytná terasa. Ta je navíc cizím očím skryta díky zapuštění domu do svažitého terénu. V úrovni terasy přiléhá k domu menší objekt se saunou a odpočinkovým prostorem. Garáž s dílnou a skladem navazuje na výškovou úroveň silnice. „Podél garáže pod lehkou průhlednou pergolu vede přístupové schodiště, aby obyvatelé mohli po příjezdu pokračovat sice exteriérem, ale už suchou nohou k vlastnímu vstupu do domu o podlaží níž,“ vysvětluje architekta.

Hlavní obytný prostor komunikuje skrze velkou prosklenou stěnu s terasou i zahradou. V západní části domu se nachází noční klidová zóna. „Ložnice mají okna orientovaná do strany směrem k vzdálenějšímu sousedovi. Na protějším konci domu směrem k bližšímu sousedovi se nachází vstupní zóna a pracovna,“ popisuje návrh autorka.

Jednoduše řešená hmota s bílou fasádou a betonovými detaily v exteriéru se uvnitř domu proměňuje v hřejivý prostor. Interiéru dominuje dřevo. Barvu dřeva použitého na obklad stropů sjednotila architekta s podlahou, vestavěnými skříněmi i ostatním nábytkem.
Zkušená architekta Markéta Bromová dobře pochopila složitosti pozemku a od začátku pracovala se všemi jeho omezeními. Rodinný dům na Berounsku je tak příkladem toho, že i na komplikované parcele může vzniknout pohodlný dům.
- Autoři: Markéta Bromová, Petra Ciencialová, Lenka Míková
- Ateliér: Markéta Bromová architekti
- Země: Česká republika
- Město: Beroun
- Projekt: 2019
- Realizace: 2022
- Užitná plocha: 178 m²