Architektura / rodinné domy

Stoletá stodola se pod rukama slovenské architektky proměnila v moderní rodinný dům

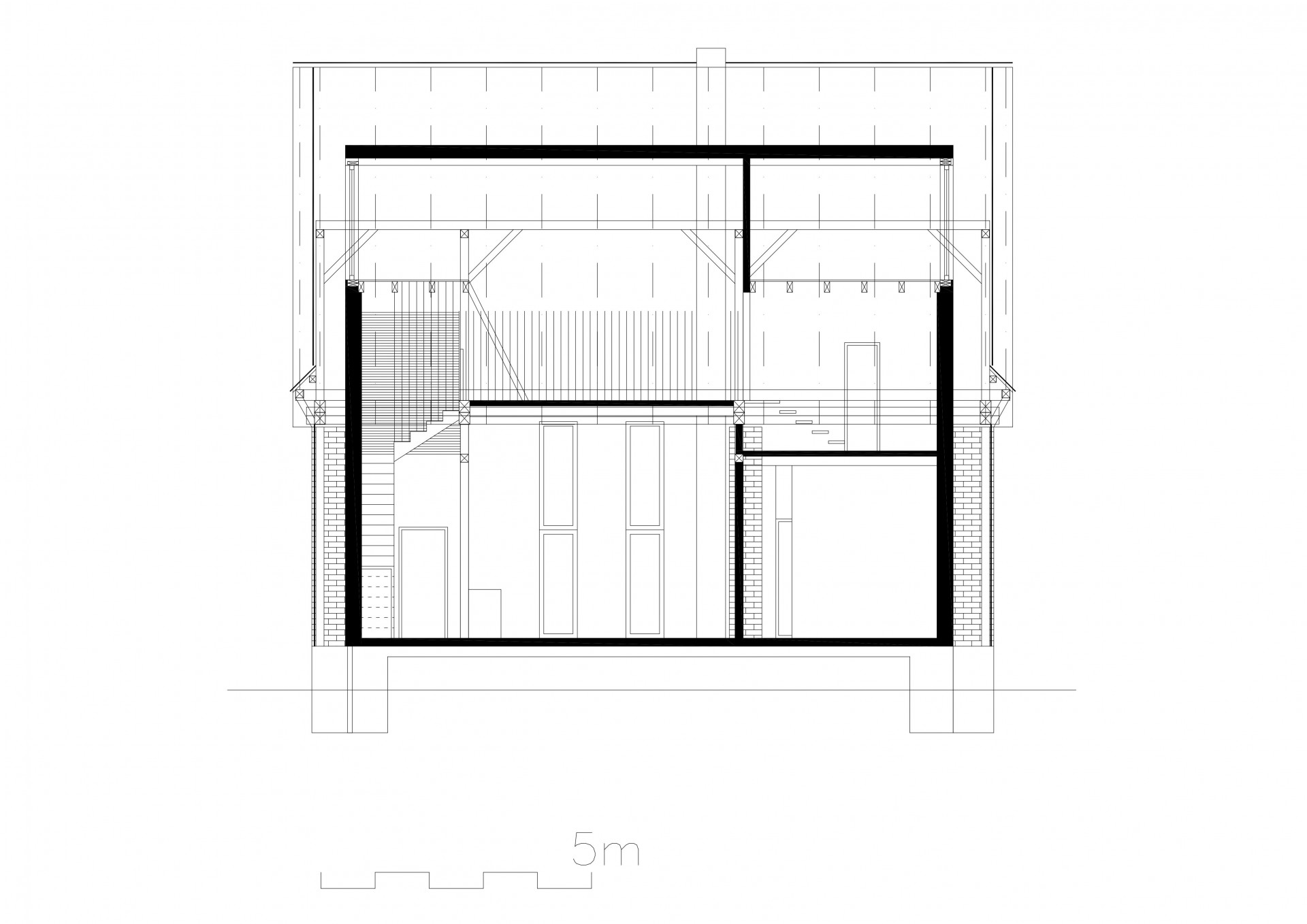
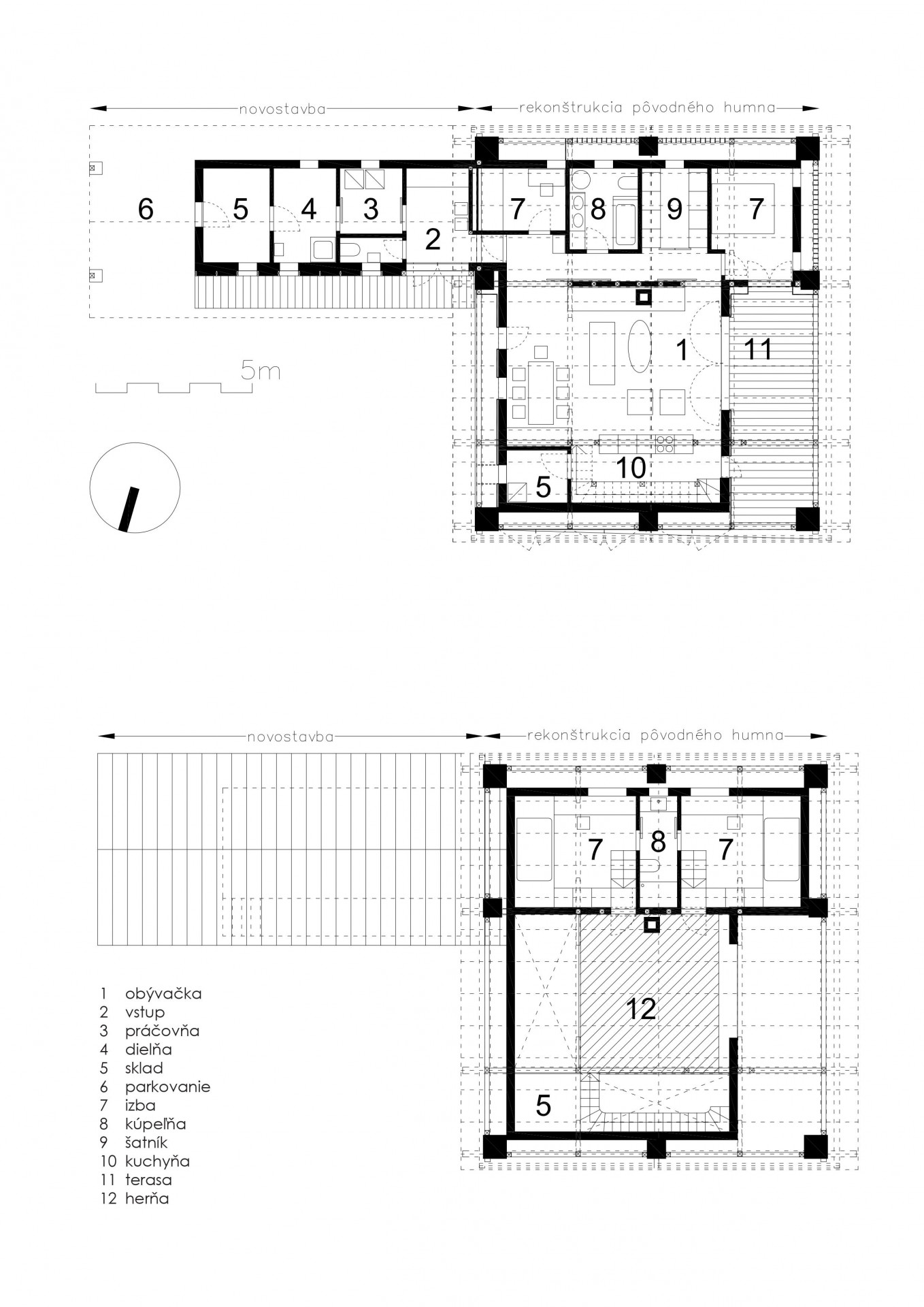
Starý hospodářský objekt, tzv. humno, které dříve sloužilo jako místo pro mlácení obilí, prošel nevšední přestavbou na rodinný dům. Slovenská architektka Eliška Turanská vsadila na zachování původního stavení, do kterého implementovala novostavbu určenou k bydlení. Pro projekt je typický respekt k původní architektuře, využití přírodních a recyklovaných materiálů, a přitom zajištění úrovně bydlení podle dnešních standardů.

Eliška Turanská , 12. 8. 2021

  • Autoři: Eliška Turanská
  • Spolupráce: Margaréta Šuvadová
  • Země: Slovensko
  • Realizace: 2021
  • Město: Veličná
  • Realizace: 2021
  • Užitná plocha: 191.00m2
  • Zastavěná plocha: 126.00m2
  • Plocha pozemku: 4 752.00m2

Klíčová slova:

stodola přestavba Slovensko

Mohlo by vás zajímat

Generální partner
Hlavní partneři