Architektura / interiér

Studio mar.s navrhlo v pražském činžáku moderní interpretaci tradiční české hospody

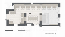
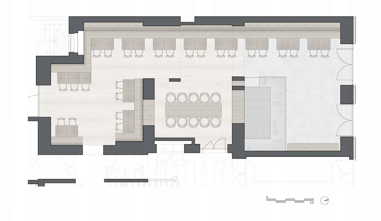
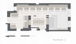
V jednom z činžovních domů na pražských Vinohradech vznikl nový podnik VÝČEP podle návrhu studia mar.s architects. Záměrem architektů byla současná interpretace klasické české hospody - určili proto několik pvků typických pro restaurace ze začátku minulého století, které použili v moderní formě. V restauraci tak nechybí místo pro pivo na stojáka, salonek s kazetovým stropem či klasické dřevéně tonetky.

mar.s architects , 12. 7. 2019

  • Ateliér: mar.s architects
  • Země: Česká republika
  • Realizace: 2018
  • Město: Praha 2 - Vinohrady
  • Ulice, číslo: Korunní, 92
  • PSČ: 12000
  • Datum projektu: 2017
  • Realizace: 2018
  • Užitná plocha: 200.00m2

Klíčová slova:

mar.s architects Vinohrady

Mohlo by vás zajímat

Generální partner
Hlavní partneři