Svérázná interpretace dřevěného statku. Architekti chtěli navázat na tradici, současně ale vytvořili sebevědomý novotvar
Rodinný dům na Pardubicku charakterizuje rozvětvený půdorys a dřevěný obklad. Na prostoru se nešetřilo – zastavěná plocha je 200 metrů čtverečních. Podobně rozlehlé struktury ale mají v místě svou tradici, obraz obcí totiž původně utvářela právě velká stavení.
EARCH.CZ , 10. 8. 2023
Architekti hledali oporu ve starých mapách obce. „Jak je patrné z archivní katastrální mapy z roku 1840, byla lokalita zastavěna individuální zástavbou tvořenou převážně lineárními hospodářskými staveními,“ vysvětluje architekt Marek Habr. Domy byly jednopodlažní, s podlouhlým obdélníkovým půdorysem. Z toho vyšli při urbanistickém a hmotovém řešení nového domu.
Dům navrhlo studio Kvalitář, které v centru Prahy provozuje také galerii umění a designu. Projekty architektů Marka Habra a Jiřího Kučery pak kreativní platformu doplňují o architekturu. Novostavbu v blízkosti Hradce Králové navrhli jako dřevostavbu ze zateplených panelů, které stojí na železobetonových deskách. Fasáda je ze sibiřského modřínu. Střecha, přebírá materiál i rastr fasády, odvodňují ji skryté žlaby a svody.
Více k tématu
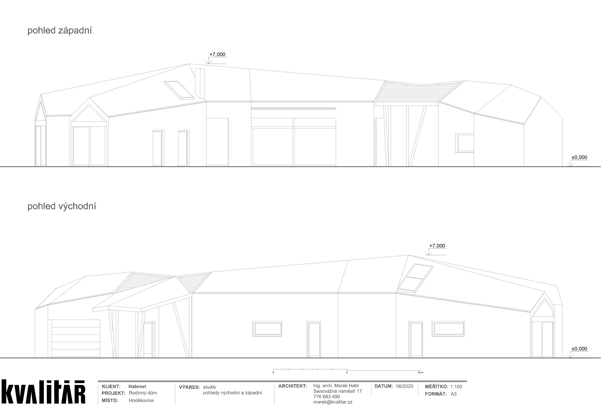
Jedná se vlastně o spojení tří vedle sebe stojících budov. „Samostatně stojící garáž a obytná část jsou hmotově těsně spojeny průchozím přístřeškem,“ popisuje strukturu domu Marek Habr.
Garáž se přirozeně napojuje na pozemní komunikaci, přístřeškem se pak dá projít do zahrady. Do té se otevírají hlavní obytné prostory, na které navazuje pobytová terasa se zapuštěným bazénem. Severní část domu se větví na tři části, v každé je jedna ložnice, jejichž štítové stěny uzavírají velkoformátová okna v minimálních antracitových rámech.

Aby stavba nepůsobila příliš mohutně, rozkolísali architekti výšku hřebene střechy, její sklon však zůstává všude přibližně stejný. Dům tak ve výsledku dostal neobvyklou siluetu. Zároveň je tu patrná inspirace původními stavbami, pro které jsou charakteristické sedlové střechy s minimálním přesahem.
„Takto je dosaženo co nejmenšího vizuálního objemu budovy z různých pohledů. Tyto tvary mají taktéž kontinuitu v nepravidelné rostlé vesnické zástavbě,“ dodává Marek Habr na závěr.

- Ateliér: Studio Kvalitář
- Autoři: Marek Habr
- Spolupráce: Jiřina Fojtíková
- Země: Česká republika
- Zastavěná plocha: 200 m²
- Projekt: 2020
- Realizace: 2022