
Severočeské stavení po rekonstrukci a moderní dostavbě slouží dvougeneračnímu bydlení
Jednu půlku zrekonstruovat, druhou nahradit moderní dřevostavbou. Tak přistoupili architekti z ateliéru Skvadra k přeměně severočeského stavení na bydlení dvou generací. Zatímco ta starší si užívá útulnou atmosféru původní stavby, mladí mají k dispozici prosvětlený otevřený prostor.
EARCH.CZ , 4. 5. 2023
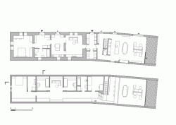
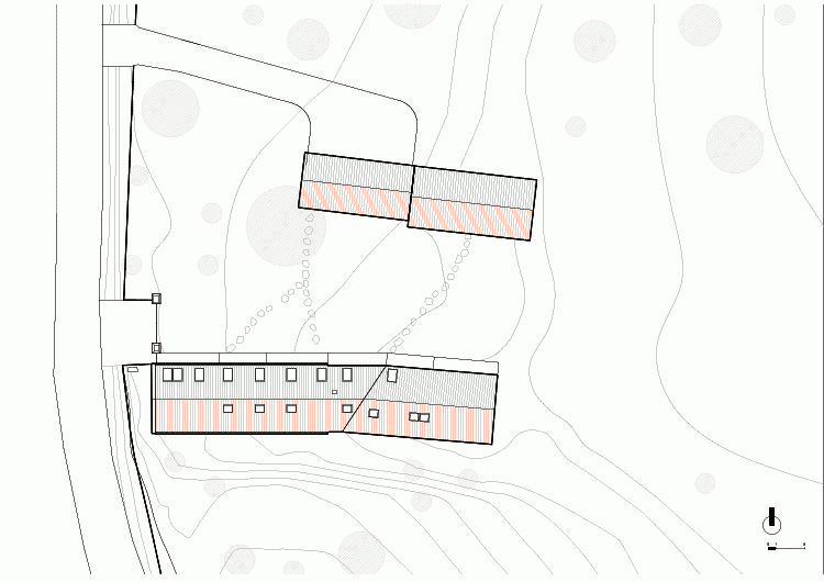
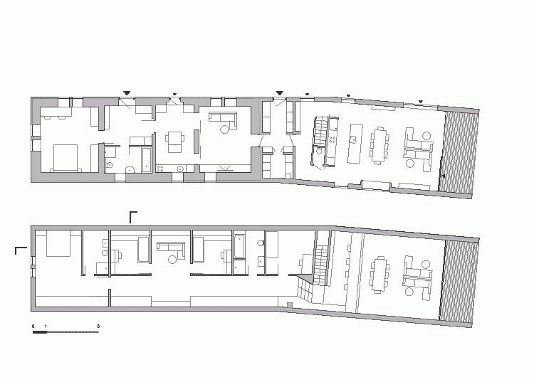
Staré venkovské stavení v severních Čechách chtěli jeho majitelé nově využít pro bydlení dvou generací. Protože se však část podlouhlé stavby nacházela ve špatném technickém stavu, nebylo možné ji zachovat jako celek. K projektu byli osloveni architekti z ateliéru Skvadra, kteří navrhli pragmatické řešení. Polovinu objektu, který dříve sloužil k bydlení, nechali zrekonstruovat s důrazem na obnovu původních prvků. Navazující hospodářský trakt pak nahradila novostavba – ovšem v přesné půdorysné stopě někdejšího objektu.
Více k tématu
„V přední obytné části jsme dbali na navrácení historicky dané proporce domu, členění oken, siluetu štítu, vápennou omítku, zachování kleneb, masivních obložkových dveří atd. Navazující zádní hospodářská část byla staticky nestabilní a byla stržena. Otevřel se tak prostor pro její moderní pojetí,“ říkají autoři návrhu.

Novou část zpracovali architekti jako otevřený prostor bohatě prosvětlený díky celoprosklenému štítu, kterým se zároveň otevírají výhledy do krajiny. Fasády novostavby pojali architekti netradičním způsobem, který však podporuje architektonické sjednocení staré a nové části.

„Jedna část stavení plynule přechází v druhou. Spojeny jsou také materiálově, použitím keramické krytiny, která přechází ze střechy původní historické části do celkového pláště moderního zadního traktu,“ upřesňují autoři.

Nového využití se dočkala také stodola, která nyní slouží jako venkovní zastřešený prostor s kuchyní. V jejím podkroví zase najdeme dětskou hernu. Na původní chlívky navázalo garážové stání. Celkovou venkovskou atmosféru pak dotváří zatravněný dvůr s košatým ořechem.
- Ateliér: skvadra architekti
- Země: Česká republika
- Zastavěná plocha: 229,3 m²
- Užitná plocha: 344,5 m²
- Plocha pozemku: 6000 m²
- Obestavěný prostor: 1286 m³