 
					
                    				Víkendový dům na maďarském venkově reaguje na tradici regionálních hospodářských stavení
Novostavba rodinného víkendového sídla se nachází v malé vesnici Algyő ve Velké uherské nížině. U návrhu se trojice architektů András Varsányi, Péter Pozsár a Norbert Vas inspirovala hospodářskými stavbami v regionu, aby dosáhli svého cíle: vytvořit moderní obydlí, které bude v koncepčně, tvarově i konstrukčně navazovat na nejlepší lokální tradice. Aspekt tradičních hodnot a principů byl u návrhu mimořádně důležitý jak pro investora, tak pro samotné architekty.
Ľubica Fábri , 21. 12. 2022
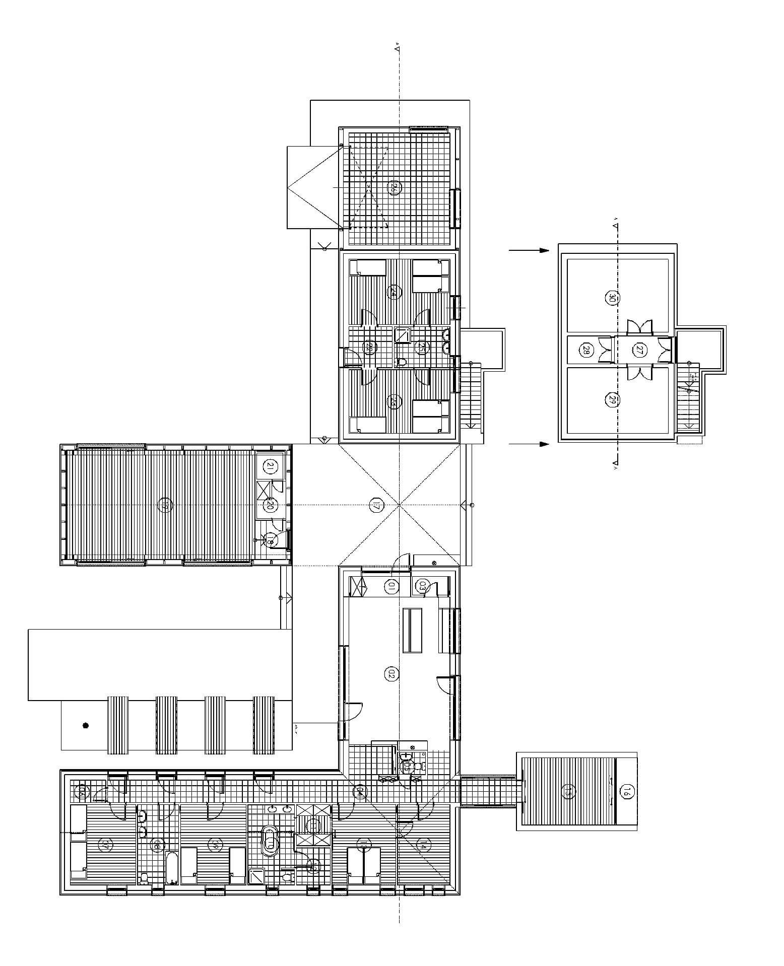
Investor si přál víkendové sídlo pro rodinu, které umožní únik od stresujícího každodenního života v Budapešti a poskytne komfortní podmínky pro dokonalý oddech v přírodě. Uvedeným potřebám odpovídá kompozice staveb, interiér s dostatkem přirozeného světla, řešení exteriérových ploch soustavou teras i venkovní bazén. Usedlost tvoří tři hlavní objekty na bázi dřevěných konstrukcí, které jsou vzájemně propojené centrální krytou terasou. Křehká dřevěná konstrukce zastřešení terasy vytváří elegantní detail kontrastující s kompaktním výrazem ostatních částí objektu.
Více k tématu
 
Dispozice se skládá z menších ložnic, které jsou propojené většími společenskými prostory a komunikacemi. Architekti kladli mimořádný důraz na spojení architektury sídla, jeho vnitřku a vnějších prostor přiléhajících ke stavbám do kompaktního celku. Architekti stavbu zasadili do okolního prostředí tak, aby uživatelům zajistili co nejužší kontakt s okolní přírodou. Zároveň ale architekti dbali na to, aby zachovali stávající lesík s vzrostlými stromy na pozemku. Jako moderní kontrast k ostatním budovám s tradičnějšími formami pak autoři navrhli také samostatně stojící bíle omítnutý kubus knihovny.
Realizace ukazuje, že i u naplnění vlastních stavebních ambicí může osvícený soukromý investor s pomocí erudovaných architektů navázat na tradice předků a vytvořit přidanou hodnotu i pro okolí a krajinu.
 
Víkendový dům v Algyő, ANDRÁS VARSÁNYI, PÉTER POZSÁR, NORBERT VAS © Tamas Bujnovszky
Realizace byla vybrána na výstavu Salon dřevostaveb 2020 a je představená v publikaci Ročenka dřevostaveb 2019. Více o Salonu dřevostaveb 2020 najdete na www.salondrevostaveb.cz.
 
 
 
- Autoři: András Varsányi, Péter Pozsár, Norbert Vas
- Země: Maďarsko
- Město: Algyő
- Datum projektu: 2014
- Realizace: 2016
- Užitná plocha: 479.00m2
- Zastavěná plocha: 431.00m2
 
                             
                             
                             
                             
                             
                                 
            		 
            		 
            
         
            
         
            
         
            
         
            
         
            
         
            
         
                             
                             
                             
                             
                             
                             
                             
                             
                             
                             
                             
                             
                             
                             
                             
                             
                             
                             
                             
                             
                             
                             
    
	 
            		 
            		 
            		 
            		 
            		 
            		 
            		 
            		 
                     
                     
                     
            		 
            		 
            		 
            		 
            		 
                     
					 
                                                         
                                                         
                                                         
                                                         
				 
				 
				 
				 
				 
				 
				 
				 
				 
				 
				 
				 
				 
				 
				 
				 
				 
				 
				 
				 
				 
				 
				 
				 
				 
				 
				