
Architekti nevyužívanou stodolu proměnili na bytový dům
Studio Freiluft stojí za konverzí nevyužívané stodoly ve švýcarském údolí Emmental. Tradiční stavení typické pro horská prostředí v Evropě nově doplňuje současný zásah v podobě „betonového stromu“ v interiéru. Projekt charakterizuje také hra materiálů – původní režné zdivo se kombinuje s pohledovým betonem i světlou březovou překližkou. Švýcarské studio Freiluft proměnilo nevyužívanou stodolu na bytový dům
Tereza Hůrská , 2. 4. 2023
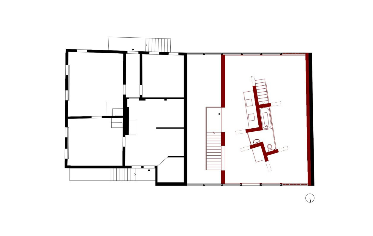
Hlavní stavební materiál staré stodoly stojící ve švýcarském údolí Emmental lze určit jen stěží. Tvoří jej totiž „záplatovaný“ návrh v podání studia Freiluft v čele s Matthiasem Zuckschwerdtem, Alexanderem Grünigem a Martinem Klopfensteinem. Hra materiálů viditelná už na fasádě objektu se propisuje i do řešení interiéru. Volný prostor bývalé stodoly vyplnila nová dispozice, kterou prostupuje stromová betonová konstrukce.
Cílem projektu bylo transformovat hospodářský objekt na několik bytů. Prostor vymezený starou obálkou budovy rozdělili architekti novými stěnami, které určily nynější dispozici. Z otevřené stodoly se stal třípodlažní obytná budova, která kombinuje původní a nové konstrukce. Všemi třemi podlažími prorůstá organický prvek stromu z betonových desek. Jak sami architekti tvrdí, dům podle nich potřeboval něco okamžitého, drsného a jasného, co by dokázalo definovat a vytvořit svůj vlastní svět, nečekaně umístěný do hospodářského objektu. Betonový strom ale není jen estetickým a „prostorutvorným“ prvkem. V první řadě jde o konstrukci se statickými vlastnostmi, betonové jádro, které vyztužuje objekt, podpírá původní střechu a nese v sobě schodiště a prostory koupelen a kuchyní. Se syrovým vzhledem betonu kontrastuje jeho jemné, plynulé tvarování s elegantními oblouky jednotlivých větví, které „krájí“ prostor jako pomyslné dveřní otvory.
Více k tématu

Vnitřní okna nabízejí obyvatelům průhledy na půdu s působivou konstrukcí krovu a také do vysoké haly uprostřed stodoly. Skleněné plochy prostupují původním zdivem, betonovou konstrukcí i vnitřní vestavbou z březové překližky. Rozměrné okenní otvory otevírající objekt do exteriéru jsou místy „překryty“ rastrem dřevěných lamel s rozdílným vertikálním i horizontálním kladením, jež přispívá k dojmu materiálového chaosu.
Podobný princip „patchworku“ materiálů použil, ač v poněkud umírněnější podobě, berlínský architekt – Thomas Kroeger – ve své proměně kravína na rekreační objekt. Oba projekty jsou zdařilými ukázkami konverze nevyužívaných hospodářských objektů, které by pro svou kvalitní architekturu a nenahraditelnou atmosféru rozhodně neměly upadat v zapomnění.

Tento článek vznikl za podpory společnosti Českomoravský beton v rámci popularizace tématu "Beton v architektuře".
Českomoravský beton, a. s., je holdingovou společností, která prostřednictvím vlastních betonáren a dceřiných společností dodává transportbeton v široké škále pevnostních tříd a druhů na území České republiky a Slovenska. Skupina, jejíž vznik spadá do počátku 90. let minulého století, v současné době provozuje 85 nově postavených nebo zrekonstruovaných betonáren, které mají zavedený systém managementu kvality, systém managementu hospodaření s energií a splňují nejpřísnější ekologická kritéria. Celá skupina – holdingová společnost a její dceřiné společnosti, historicky označované ve svém názvu TBG – vystupuje na trhu ČR pod jednou společnou obchodní značkou Českomoravský beton.
- Země: Švýcarsko
- Město: Trachselwald
- Realizace: 2015
- Materiál: beton