Terasový dům rodiny Jana Hřebejka získal podmanivé interiéry od studia Formafatal
Výrazné barvy, různorodé kvalitní materiály, řada uměleckých děl a nádherné výhledy na hlavní město. To jsou hlavní charakteristiky nového bydlení rodiny režiséra Jana Hřebejka, které vzniklo rekonstrukcí terasového domu ze 70. let na pražských Hřebenkách.
EARCH.CZ , 20. 1. 2023
„Rodina Hřebejkových trvale žila na hausbótu, na pražském Smíchově. Život na hausbótu odráží jejich životní styl, potřebu žít v obklopení přírody, ale zároveň ve městě. Stejně jako na hausbótu, kde jsou prostorově potlačené ložnice a koupelna, tak v jejich novém domě se tento prostorový princip opakuje,“ objasňuje koncept návrhu architektka Dagmar Štěpánová ze studia Formafatal.
Více k tématu
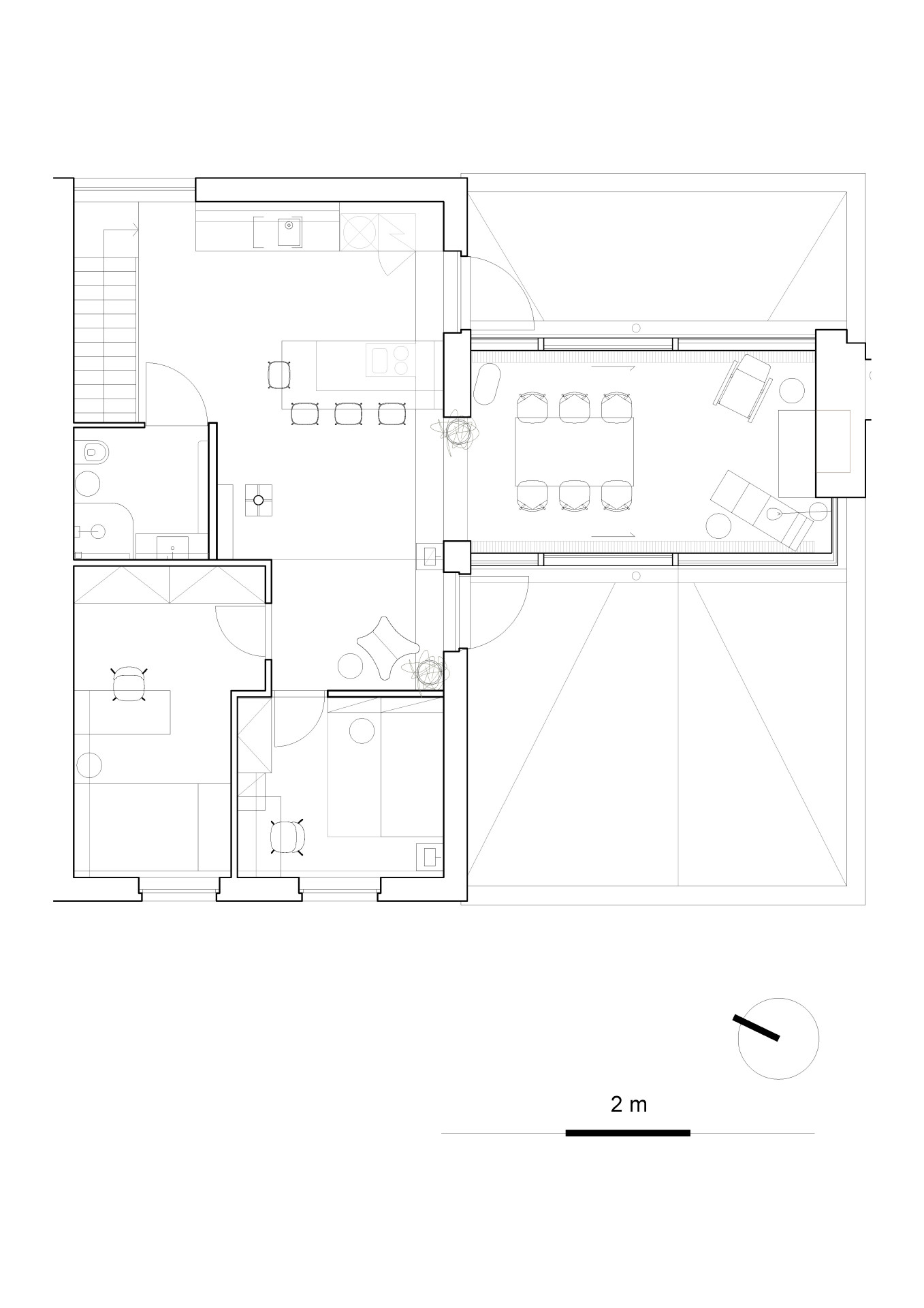
Pro nové bydlení rodiny je příznačná také prostorová dominance společenských prostor oproti dětským pokojům i ložnici. Přestože architektka nemohla výrazněji zasahovat do fasády terasového domu, aby tím nenarušila jeho jednotný charakter, podařilo se zrealizovat novou prosklenou přístavbu v části terasy prvního patra. Přístavba rozšiřuje hlavní obytný prostor a zajišťuje také lepší prosvětlení celého podlaží. Prosklený prostor slouží jako hlavní jídelna napojená na kuchyň a obsahuje stávající krb, který byl však nově obložen červeným travertinem.

Z tohoto obytného prostoru v horním podlaží lze vstoupit do koupelny umístěné v prosklené kostce, kde soukromí zajišťují závěsy a také do dvou dětských pokojů s okny do zahrady. Vzhledem k úpravám dispozic se architektka Štěpánová musela vypořádat s přemístěním svodu dešťové vody ze střechy, který zůstal volně v prostoru. Řešení našla v podobě starého litinového sloupu, který majitelé koupili v antiku a do kterého byl svod vsazen.
Přízemí domu obsahuje malou ložnici s kuchyňkou, miniaturní koupelnu a velkou pracovnu ústící do zahrady, která slouží současně jako druhý společenský prostor. Na projektu pracovala Dagmar Štěpánová čtyři roky a na výsledku je péče o veškeré části domu jasně patrná.

Architektka dosáhla krásné kombinace výrazných barev a materiálů s různou strukturou, ať už jde o žlutý či červený travertin, světlou březovou překližku nebo tmavé mahagonové dřevo uplatněné na kuchyňském pultu.
Na pojetí interiéru se podílel také rodinný přítel majitelů, akademický malíř Miroslav Bednář, který vybral pro různá místa napříč domem několik uměleckých děl z jejich sbírky. Rodina chtěla zabydlený a nenuceně působící domov a realizace podle návrhu Dagmar Štěpánové jim přání jednoznačně splnila.
- Ateliér: Formafatal
- Autoři: Dagmar Štěpánová
- Země: Česká republika
- Město: Praha
- Projekt: 2016
- Realizace: 2020
- Užitná plocha: 175 m²
- Investor: Jan Hřebejk, Lenka Hřebejková
- Fotograf: BoysPlayNice