Osobitý interiér žižkovského mezonetu odkazuje po rekonstrukci na obrazy českých umělců
Drobné detaily, tvary i zvolená barevnost – to vše ovlivnily obrazy, které mají pro majitele bytu zvláštní význam. Při návrhu mezonetu mladé rodiny nebylo nic ponecháno náhodě.
EARCH.CZ , 14. 7. 2022
„Někdo současné umění chápe jako pouhou bytovou dekoraci. Pak jsou tu sběratelé, kteří jej sice umí ocenit, ale mají své bydlení často zaskládané uměleckými díly natolik, že se z něho stává depozitář. A pak jsou lidé, kteří sice nejsou nutně sběratelé, ale přesto si pořídí jednotky kvalitních děl pro své potěšení a jsou připraveni dát jim ve svém životním prostoru důstojné místo. Právě pro takové jsme navrhli rekonstrukci mezonetového bytu na Žižkově,“ přibližují východiska svého návrhu architekti ze studia No Architects.
Více k tématu
Vybrané obrazy z těchto důvodů sehrály velmi důležitou roli při návrhu kompletní rekonstrukce bytu. Architekti do nového interiéru zakomponovali hned několik prvků, které vycházejí z oblíbených obrazů majitelů – motiv čísla 69, které se objevuje v díle Vladimíra Houdka, vykukuje z kapotáží topení i vestavěného nábytku, divoce tvarované okraje samotného obrazu se promítají do skříněk nad kuchyňskou linkou a ani zvolené barvy nejsou nahodilé.
Podobu interiéru ovlivnil také obraz Josefa Bolfa – odstín stěrky za knihovnou, kde dílo visí, byl totiž namíchán tak, aby společně souzněly. Pro zdůraznění melancholické atmosféry obrazu k němu architekti vybrali také svítidla ve tvaru slz. „Před umělci zde není úniku, ale o umělcích to zde není. Jde o jednoduché bydlení pro mladou rodinu, která umění rozumí, umí jej ocenit a poradovat se z něj. Vytvoření interiéru, kde současné umění není zredukováno na zaměnitelnou dekoraci, jde samozřejmě ruku v ruce s řešením řady praktických problémů jako je rozšíření kuchyně či šatny, kapotáže technologií, vznik pracovny a tak dále,“ zdůrazňuje ateliér No Architects.

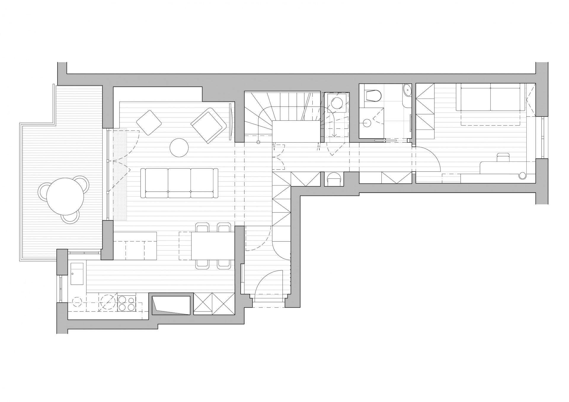
V bytě bylo řešeno prakticky vše na míru od postele po jídelní stůl, takže má interiér velmi osobitou atmosféru podobně jako v případě jiné realizace architektů, rekonstrukce bytu v pražských Dejvicích.
- Ateliér: Studio Flusser, No Architects
- Autoři: Jakub Filip Novák, Daniela Baráčková, Ján Ševčík
- Země: Česká republika
- Město: Praha 3 - Žižkov
- Projekt: 2020
- Realizace: 2021
- Užitná plocha: 100 m²
- Zastavěná plocha: 130 m²
- Fotograf: Studio Flusser
