
Dům jako balvan v trávě. Vila v Dolních Břežanech čerpá inspiraci z přírody i funkcionalismu
Na začátku byl balvan, přírodní solitér v krajině, bez kontextu a komponentů. Když se balvan otesá do základní sochařské hmoty, vznikne hranol, pravoúhlý, hladký a nečleněný. Potom už ho stačí jen rozčlenit konstrukčně, ještě trochu osekat, přidat vnitřní prostor, okna, architektonický um a je hotovo. A podobně vznikl dům v Dolních Břežanech.
Tomáš Kodet , 15. 12. 2022
Výslednému návrhu předcházely dvě odlišné inspirace a několik subvariant. První z nich kladla důraz na bývalé mokřady a architekti navrhli dům obklopující několik jezírek. Druhá varianta se snažila navázat na vesnický charakter okolní zástavby, třetí návrh charakterizuje dům jako „balvan v trávě“ - s ním nakonec architekti u klienta uspěli.

Přání budoucích obyvatel bylo dostat stavbu v duchu moderní vily, volně inspirovanou racionalitou a jednoduchostí, podobně jako je tomu ve funkcionalismu. Mezi další požadavky patřila terasa, velký obytný prostor a větší světlá výška v obytných místnostech. Od té ale musel klient z důvodů regulací na výšku zástavby nakonec ustoupit.

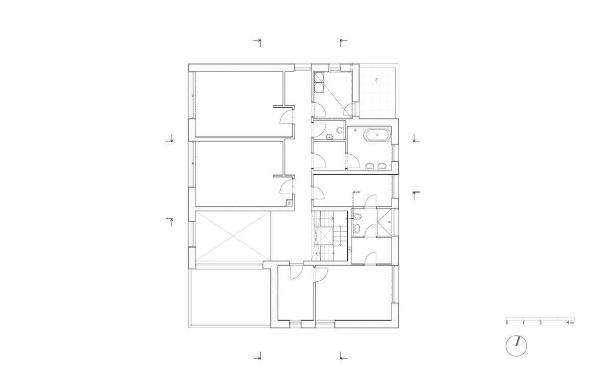
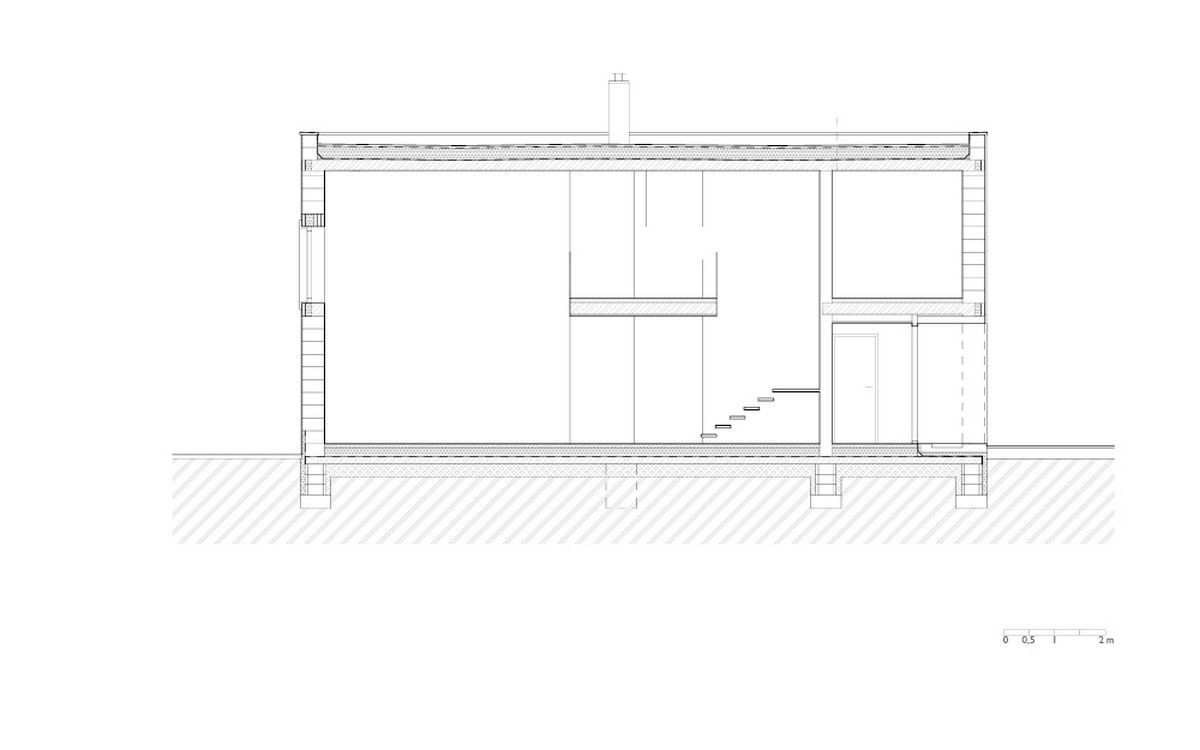
O velkorysý prostor však stavba nepřišla. Zajistil ji obývací pokoj o hraně 5,5x5 a 5x5,5 metru, který expanduje až do druhého podlaží. Pokoj má zároveň i své intimní zákoutí s krbem. Nepůsobí proto předimenzovaně, ale naopak nabízí i útulný prostor. Tomu také napomáhá tmavé dřevěné obložení z ořechu. Doplňkový zdroj vytápění, krb na tuhá paliva, je obložen ze světlé břidlice, která se vyskytuje v podloží Dolních Břežan. Stejný obklad je použit i na celé fasádě. A aby v letních měsících nedocházelo k přehřívání interiéru, jsou velkoformátová okna zakrývaná rolovatelnou látkovou markýzou.

Venkovní tváři domu samozřejmě vévodí okenní otvory. Jejich zdánlivě náhodné rozmístění je definováno funkčními požadavky, které se odvíjejí od charakteru a požadavků konkrétních místností, jako je soukromí, výhled a rovnoměrnost osvětlení. Dům zaujme, nenudí a rozhodně na sebe nechá strhnout pozornost okolí. Nechybí mu však střídmost a skromnost, která je pro kvalitní architekturu neméně důležitá.

Více k tématu
- Autoři: Jiří Pavlíček, Jaroslav Hulín, Pavel Špringl, Šimon Jiráček
- Ateliér: Pavlíček + Hulín architekti
- Země: Česká republika
- Město: Dolní Břežany
- Datum projektu: 2015
- Realizace: 2017
- Zastavěná plocha: 191.00m2
- Materiál: kámen