
Bydlet v pivovaru? Červený bytový dům sebevědomě doplnil areál Varšavských pivovarů
Bytový dům „Apartamenty przy Warzelni“ z dílny varšavského ateliéru JEMS je součástí urbanistické kompozice Varšavských pivovarů – městského areálu, který prošel komplexní proměnou. Mimo nadstandartní ubytování od malých bytů po dvoupatrové penthousy se budova stává jednou z dominant celého areálu.
EARCH.CZ , 6. 7. 2023
Oblast Varšavských pivovarů ve čtvrti Wola se stala důležitou oblastí nejen Varšavy, ale celého Polska již v roce 1846, kdy zde byl založen pivovar Haberbusch a Schiele. Největší podnik tohoto typu v polském království zde fungoval jako ikona místního podnikání až do druhé světové války, která celou čtvrť zcela zdevastovala a vzala místu původní náboj a kouzlo. Poválečný osud čtvrti nebyl šťastný, i přesto, že pivovar po určitou dobu fungoval dál. Nakonec ale zavřel a celý areál padl v zapomnění.
Společnost Echo Investment si všimla velkého potenciálu areálu a rozhodla se jej proměnit zpět – v živé srdce Woly a celého polského hlavního města. Tři roky po získání pozemku, v roce 2017, začala velká rekonstrukce a revitalizace celého území. Vzhledem k úctě k místu a jeho důležitosti bylo místo oficiálně pojmenováno Varšavské Pivovary. Wola tak získala novou čtvrť s obytnými domy, kancelářskými budovami, náměstími a živoucími ulicemi. A jedním z těchto základních kamenů kompozice Varšavských pivovarů je i bytový dům „Apartamenty przy Warzelni“.
Více k tématu
Městský charakter
Bytový dům navazuje na ustanovení územního plánu celé oblasti. Ze severu uzavírá uliční frontu a vytváří příjemnou městskou promenádu měřítka charakteristického pro Varšavu. Objekt se nachází mezi novostavbou bytového komplexu na severu a historickou budovou pivovaru na jižní straně. Je tak jakýmsi spojníkem mezi dvěma světy, který se promítá do samotné formy bytového domu.

„Budova je volně stojící a nemá zahrady, takže prostor kolem ní je otevřený veřejnosti. V bezprostřední blízkosti objektu se nacházejí tři náměstí různého charakteru – komorní městské náměstí přes ulici, zelené náměstí za budovou pivovaru a takzvané centrální náměstí, které je v současné době ve výstavbě a jehož součástí bude kromě zeleně i kašna a prostor pro umělecké aktivity,“ upřesňují architekti z varšavského studia JEMS.
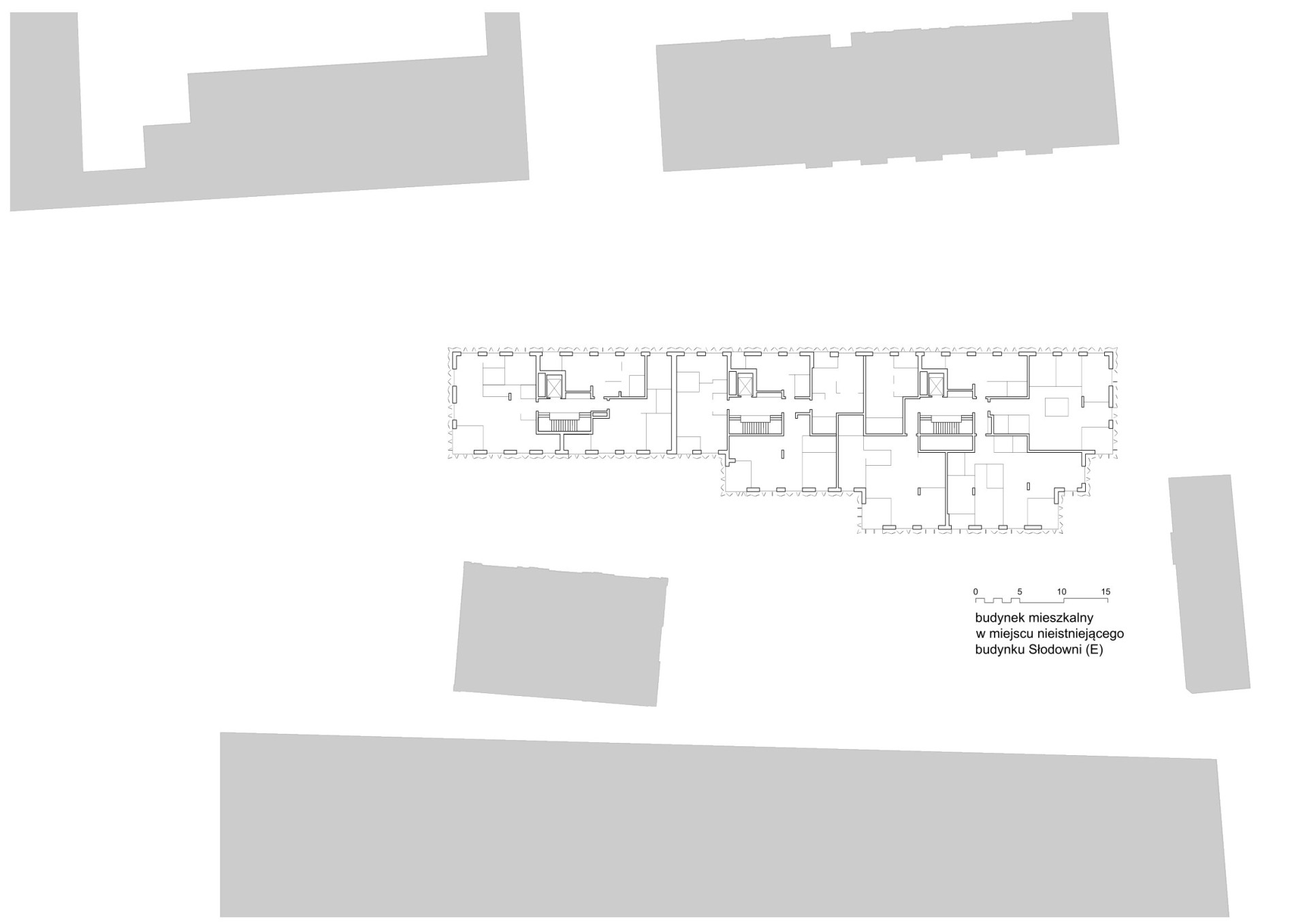
Nová dominanta na místě bývalé sladovny
Bytový dům stojí na místě bývalé pivovarnické sladovny. Charakter původní stavby se pro architekty stal referencí, kterou se snažili propsat do nové formy. To se propisuje například v uskakující jižní fasádě, která kopíruje původní obrys budovy. Pohledem směrem ze západní strany je patrná snaha navázat na šířku vedlejší zachovalé historické budovy pivovaru, se kterou nový dům vytváří městskou siluetu reflektující dialog starého s novým. Díky uskočení nejvyšších dvou pater, které vytváří terasu, budova navazuje i na výšku vedlejší stavby, čímž zároveň svou vlastní výšku i hmotu zjemňuje.

„Charakter budovy do značné míry určuje její fasáda z kyvných panelů vyplněných hliníkovou síťovinou měděné barvy. Řešení fasády je poctou starým budovám pivovaru – nevysmívá se mu použitím identických forem a materiálů, ale svou strohostí a barevností s ním nenápadně vstupuje do dialogu. Díky možnosti ručního nastavení polohy těchto prvků (nebo automatického nastavení v nejvyšších patrech) se fasáda třpytí ve světle a mění se podle přání obyvatel, popisují architekti charakteristickou červenou fasádu, která se stala poznávacím znakem stavby.
Sázka na kvalitu
Aby bylo vyhověno požadavkům nejvyššího standardu kvality a zároveň nízkoenergetické náročnosti stavby, rozhodli se architekti využít hned několik prvků společnosti ALUPROF, která v rámci hliníkových fasádních systému patří ke špičce na trhu. Na stavbě bytového domu byl použit systém hliníkových oken a dveří MB-86 ST, vyznačující se vynikajícími izolačními vlastnostmi, zdvižně-posuvné dveře MB-77HS nebo systém sloupko-příčkových fasád MB-SR60N, který díky velkým možnostem z hlediska prostorových konstrukcí dává architektům velkou volnost při návrhu konkrétních řešení. To vše umožnilo architektům v maximální míře realizovat vlastní vizi bez nutnosti kompromisů.

„V budově se nachází 76 bytů o velikosti od garsoniér až po dvoupodlažní penthousy v nejvyšších patrech. Všechny jsou přístupné ze tří schodišť navržených s velkou pečlivostí. Díky své poloze a charakteru, stejně jako jedinečné formě a technologickým řešením, má budova šanci stát se jednou z dominant současné Woly,“ uzavírají architekti své povídání o projektu s tím, že kvalitní architektura je ta, která spojuje jedinečný návrh s kvalitním technologickým řešením.
- Ateliér: JEMS Architekci
- Země: Polsko
- Město: Varšava
- Investor: Echo Investment
- Realizace: 2021