
V Suchdole se hroby nebudou schovávat. Bude na ně vidět a náhrobní kameny tu budou nadepisovat podle grafického manuálu
Jak udělat hřbitov hřbitovem, ale zároveň ho otevřít lidem a krajině? O tom přemýšleli architekti ze studia Objektor, když navrhovali nové místo pro pohřbívání v Praze-Suchdole. Eliminovali zdi, propojili ho se sadem, a nakonec vypracovali grafický manuál, který určí podobu náhrobků.
Adéla Vaculíková , 14. 7. 2023
Když přicházíte ke hřbitovu v Suchdole, vidíte stěnu z pohledového betonu s průřezy ve tvaru obdélných oken. Tvrdá slupka se otevírá, rozrušuje a dává prostor prohlédnout dál. Na průhledech do krajiny je ostatně postaven koncept celého projektu.
„Definujeme areál pomocí struktur, principů a materiálů. Území rozdělujeme pomocí systémové mřížky hřbitovních zdí a cest,“ uvádí architekti ze studia Objektor. Struktura je racionální, prostory pro řady hrobů oddělují betonové zídky, které se paprskovitě sbíhají k příjezdové cestě. Hřbitovem projdete přímo středem, po cestě, kterou prorůstá tráva. Pokračovat po ní můžete dál až za zadní hřbitovní branku, areál byl totiž navržen tak, aby se v případě potřeby mohl jednoduše rozšiřovat, ale přitom si zachoval ucelený koncept.
Více k tématu
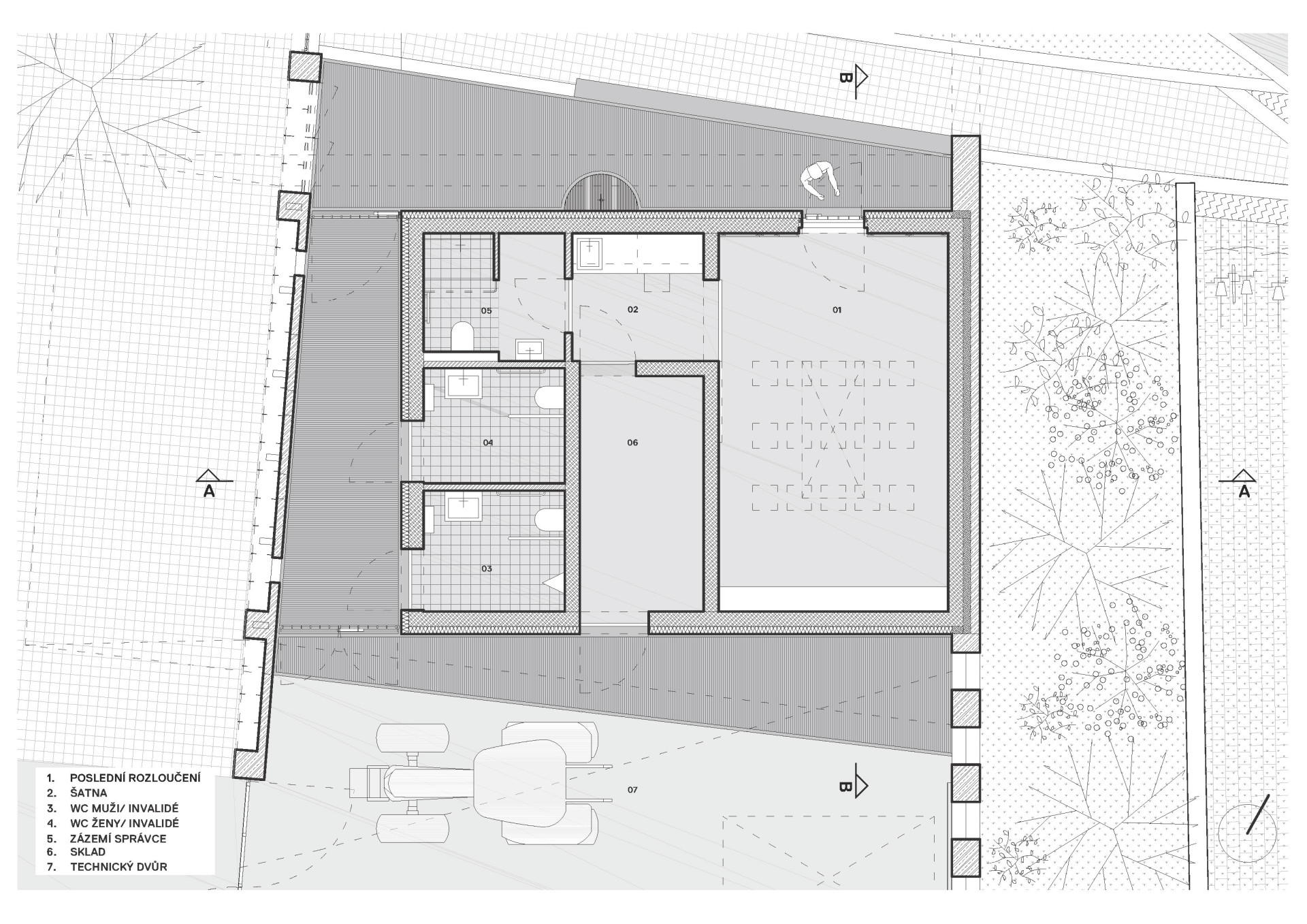
Architekti ze studia Objektor, kteří si ke spolupráci přizvali krajinářské architektky ze studia Kontinual, se k zakázce dostali skrze architektonickou soutěž. Součástí zadání bylo také pracovat s barokní kaplí a k ní přiléhajícím sadem. Vzhledem k tomu, že nový hřbitov od okolí neodděluje žádná zeď ale jen subtilní plot, působí výsledek jako otevřená krajina s několika drobnými zásahy. Po hřbitovní cestě se dostanete do sadu, z toho zase do opravené kaple. Za ní je ještě rozptylová loučka, pietně a zároveň přirozeně zasazená mezi vzrostlé stromy – opět bez zdí.

Hřbitov, sad, kaple a místo pro alternativní pohřbívání společně formují jeden veřejný prostor, který nenásilně vstupuje do kontextu přírodní rezervace Údolí Únětického potoka. Tuto povahu návrhu ostatně ocenila už porota soutěže. „Návrh citlivě reaguje na krajinnou situaci i širší urbanistické vazby a uměřeným způsobem je akcentuje a zhodnocuje. Historická kaple se stává pomyslným středobodem, aniž by tato její role byla zdůrazněna nepřiměřeným monumentalizováním nebo jinými neadekvátními zásahy,“ vyjádřila se. Ocenila také to, že architekti mysleli na podobu náhrobních desek a orientačního systému, který ve spolupráci s nimi vytvořil grafik Jan Stuchlík.

Urbanisticko-architektonická soutěž proběhla už v roce 2017, k realizaci se přistoupilo v průběhu minulého roku. Dnes je hotovo a architekti se tak ucházejí o Českou cenu za architekturu 2023. Se svou realizací se objevili na seznamu nominovaných, o kterých rozhodla mezinárodní porota v posledním červnovém týdnu.
- Ateliér: studio OBJEKTOR
- Spolupráce: Martin Rosa
- Země: Česká republika
- Město: Praha
- Studie: 2016
- Projekt: 2019
- Realizace: 2022
- Vizuální identita: Jan Stuchlík
- Krajinářské řešení: KONTINUAL