Architektura / rodinné domy

V zahradě zaniklé cihelny na Slovensku navrhl architekt Paňák otevřenou přístavbu ke starému domu

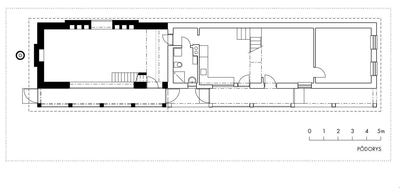
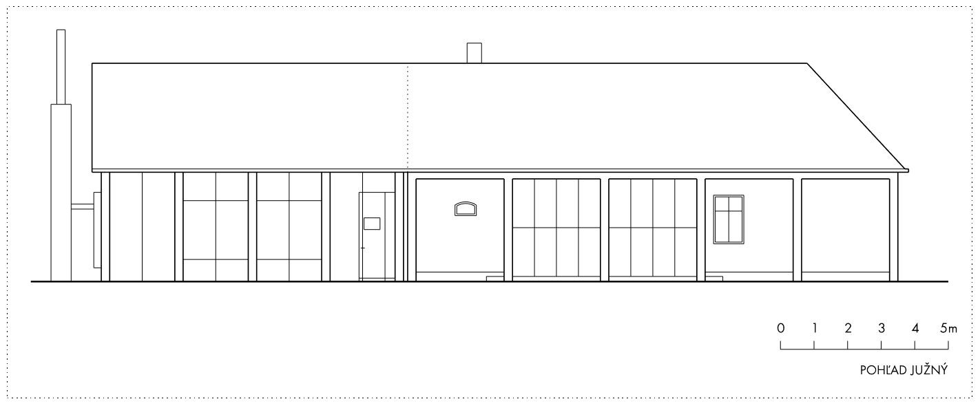
Dříve se zde těžila hlína a vyráběly cihly, dnes okolí bývalé cihelny v západoslovenských Čachticích pohlcují stromy ukrývající mezi svými korunami výrobní objekty, na jejichž rekonstrukci se významně podepisuje ateliér A B.K.P.Š. Již dříve zde architekt Pavol Paňák přestavěl ruinu původní pece na pálení cihel na vlastní ateliér a letní byt v jednom, minulý rok pak ve stejné lokalitě dokončil přístavbu ke starému domu. Nový objekt nechal architekt otevřený na celou výšku krovu, čímž výrazně umocnil prostorový zážitek z celého prostoru. Krov pokrývají z větší části staré cihly ručně vyráběné právě v místní cihelně. Díky velkým proskleným plochám pak dochází k úzkému propojení mezi interiérem a zahradou.

Architekti A B.K.P.Š. , 19. 11. 2019

  • Autoři: Pavol Paňák
  • Země: Slovensko
  • Realizace: 2018
  • Město: Čachtice
  • Datum projektu: 2017
  • Realizace: 2018
  • Zastavěná plocha: 54.00m2

Mohlo by vás zajímat

Generální partner
Hlavní partneři