Architektura / interiér

Vyřazené lodní kontejnery našly nové využití v prodejně kol ostravského nákupního centra

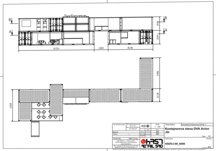
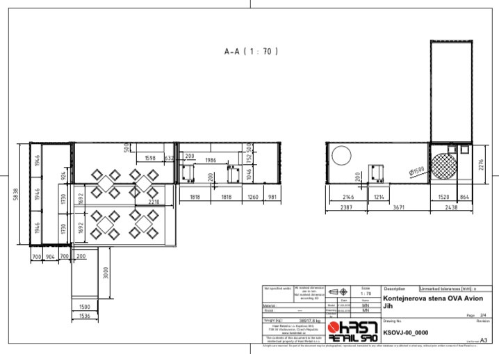
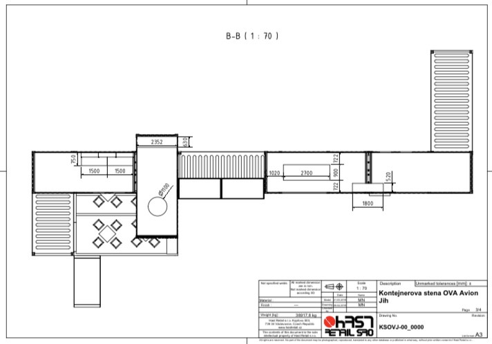
Prodejna kol v ostravském nákupním centru se od ostatních podobných objektů odlišuje netradičním pojetím interiéru, za kterým stojí společnost Hast Retail zaměřující se právě na návrhy a realizaci interiérů soukromých i komerčních prostor. Autoři se snažili najít ekologické řešení, a tak investory přesvědčili o využití vyřazených lodních kontejnerů. Vznikla tak kontejnerová stěna s rozmanitým využitím, kde každý kontejner plní jinou úlohu. Kontejnery tak slouží jako kanceláře s jednací místností, pokladna i bistro s posezením.

HAST RETAIL , 30. 6. 2020

  • Země: Česká republika
  • Zodpovědný projektant: Iveta Přibylová
  • Město: Ostrava - Zábřeh
  • Ulice, číslo: Rudná 3186/73
  • PSČ: 70030
  • Duchovní otec projektu: Ing. Jan Přibyl
  • Návrh interiéru, zařízení: René Růžička, Ing. Michal Nagy
  • Investor: KOLOVNA KONCEPT s.r.o., IČO: 02612836, Rostislav Posker, ESPACE RETAIL s.r.o., IČO: 02294061, Ing. Petr Peřina
  • autor: HAST RETAIL *
  • publikováno: * 30. 6. 2020
  • zdroj: * Autorská zpráva

Klíčová slova:

kontejner prodejna

Nabídky práce

Mohlo by vás zajímat

Generální partner
Hlavní partneři