
Méně chodeb, více pokojů. Rekonstrukce panelákového bytu pro rostoucí rodinu
Děti povyrostly a rodiče tak hledali možnost, jak jim dopřát více soukromého prostoru – v jejich panelákovém bytě to znamenalo vybudovat nový pokoj. A vešel se nakonec dobře, architektky Kateřina Hroudová a Markéta Smrčková ubraly na chodbách a efektivně využily „každý metr čtvereční“.
Adéla Vaculíková , 28. 2. 2025
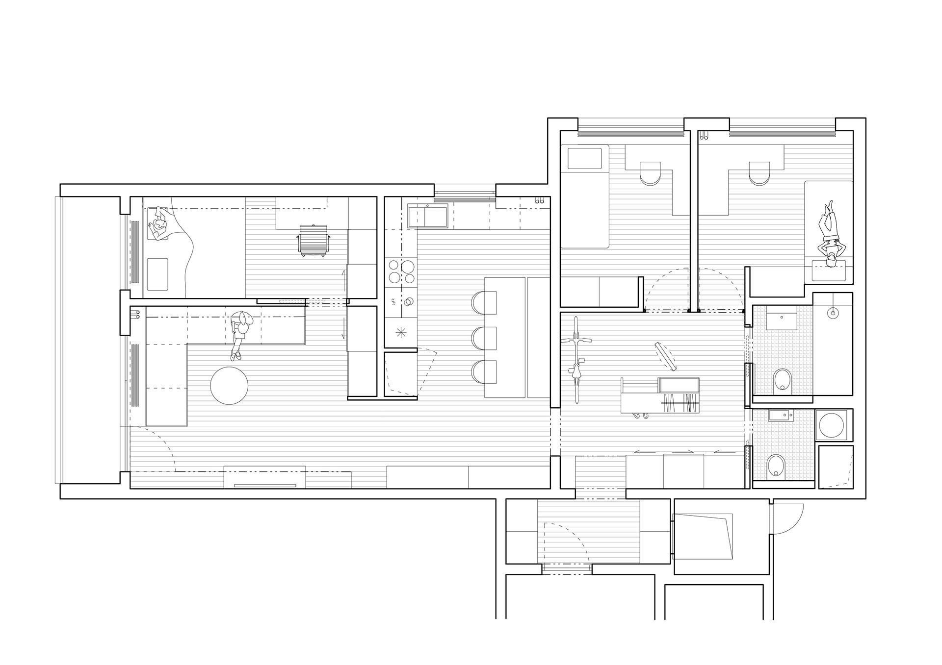
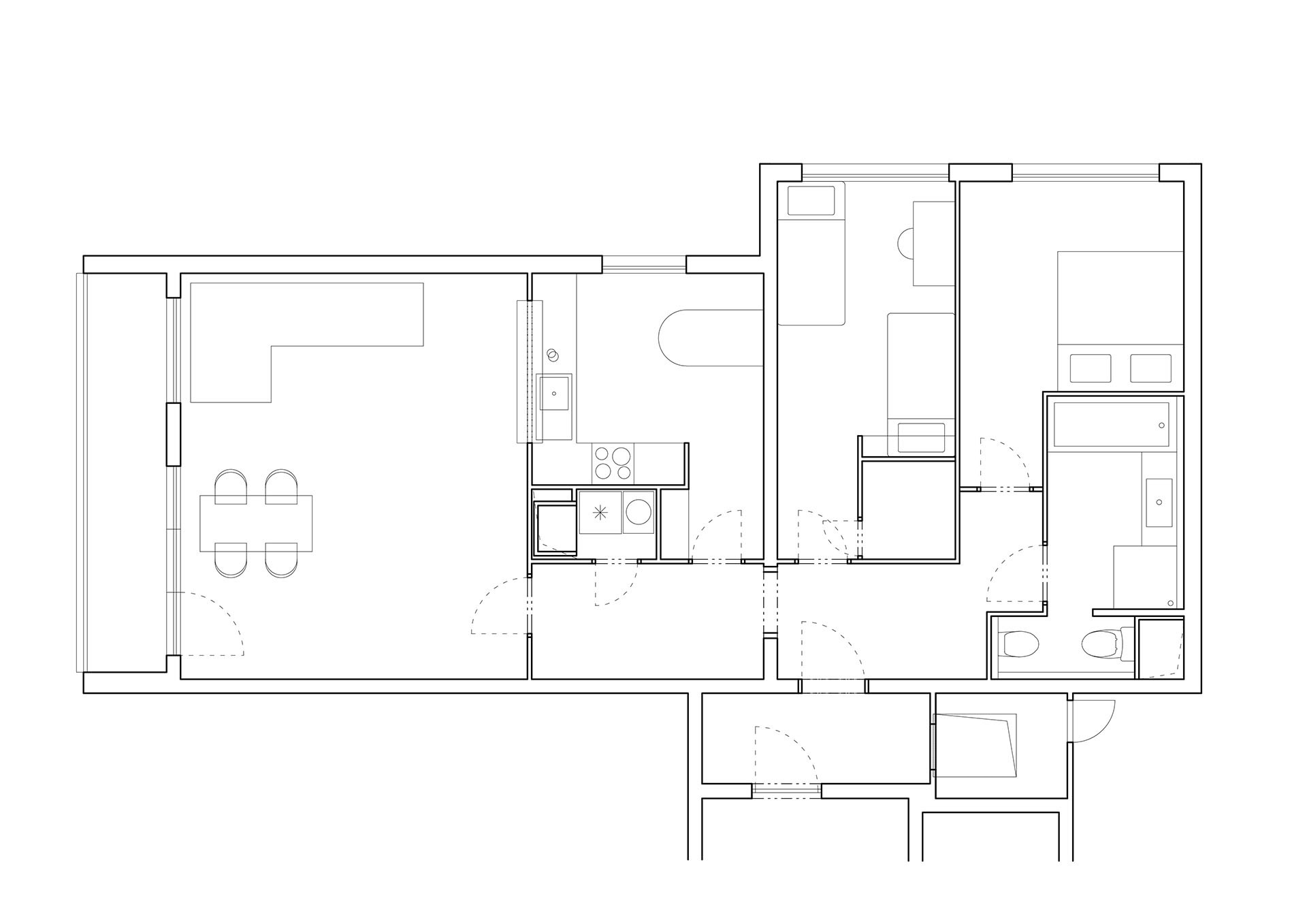
Ačkoliv má byt přes 80 metrů čtverečních, působil před rekonstrukcí stísněně. Mohly za to hlavně pokoje nepoměrných velikostí a zbytečné chodby. Obývací pokoj byl příliš velký, a navíc ještě úplně oddělený od kuchyně. Dětský pokoj měl zase půdorys dlouhé nudle.
„Dispozice byla plná dveří, chodeb a členitých zákoutí, která prostor opticky zmenšovala a omezovala jeho praktičnost,“ říkají k původní dispozici bytu architektky Kateřina Hroudová a Markéta Smrčková. Proto navrhly rekonstrukci, při které se hodně hrálo s rozmístěním příček.

Nejrazantnější změny se udály kolem obývacího pokoje – původně zbytečně velká místnost se zmenšila. Ukrojením z jeho plochy vznikla nová ložnice s pracovním koutem. Zase příliš těsno ale v obýváku není, nově je totiž propojený s kuchyní, kde je také jídelní kout.
Dva samostatné dětské pokoje vznikly ve druhé polovině bytu, na místě, kde se předtím nacházel jeden společný dětský pokoj a ložnice. Místnosti tady propojovala klikatá chodba. Ta s rekonstrukcí zmizela úplně a nahradil ji prostor společný celé rodině, funguje jako herna, tělocvična a prochází se tudy ke koupelnám.
„Každá místnost nyní přesně odpovídá svému účelu – žádný prostor není zbytečně velký ani nepřiměřeně malý,“ dodávají autorky.
Bílá s barevnými akcenty
Vybavení má především bílou barvu a architektky ho navrhly na míru interiéru. Základem bylo mít dostatek úložných prostor. Velké skříně jsou zabudované do výklenků a vysoké jsou od podlahy ke stropu. Další věci se dají uskladnit v nízkých boxech a velké šuplíky jsou dokonce i pod pohovkou. Květiny, knihy a oblíbené předměty na výstavku se zase ukládají na policové sestavy.
Bílý nenápadný nábytek je vyrobený z březové překližky, navenek se to propisuje na jeho hranách a okrajích. Dřevěné orámování čisté plochy příjemně ozvláštňuje. Podobně to dělají také barevné akcenty, modré, zelené a růžové obkladačky s různobarevnými spárami nebo roletky zakrývající příslušenství, které nemá být tolik na očích. Třeba pračku v koupelně nebo poličky s hračkami v dětském pokoji.

Prostorný panelákový byt, který je po rekonstrukci více účelný a rodina se do něj pohodlně vejde, se nachází v Praze na Jarově. Sídliště tam pochází už z přelomu 50. a 60. let a na rozdíl od pozdějších „panelových pouští“ jeho domy zůstávají poměrně nízké a byty se otevírají do okolní zeleně. Bydlení zde bude asi všeobecně přívětivé a nový interiér ho ještě povznese.
Více k tématu
Moderně a architektonicky kultivovaně zrekonstruovaných bytů v panelácích teď všeobecně přibývá. Experimentálně a tzv. „až na dřeň panelu“ postupoval ateliér NEUHĀUSL HUNAL. Na Proseku zase Papundekl architekti pracovali s příčkami z recyklovaných nápojových kartonů a světlo do hloubky dispozice přivedli průsvitnými dveřmi. Studio RDTH zase tvořilo standardnější prostor, který se v práci s bílou barvou na vybavení v něčem podobá právě panelákovému bytu od Kateřiny Hroudové a Markéty Smrčkové. Možnosti úprav bydlení na sídlištích jsou zkrátka široké a ukázky povedených realizací snad už aspoň pomalu přispívají k tomu, že bydlení v paneláku přestává být nechtěným strašákem.
- Autoři: Kateřina Hroudová, Markéta Smrčková
- Ateliér: Lennox architekti, Kateřina Hroudová architektka
- Země: Česká republika
- Město: Praha - Jarov
- Užitná plocha: 88 m²
- Fotograf: Radek Úlehla