
Znejistit hranice mezi starým a novým. V centru Kutné Hory stojí dům, v němž se potkává 19. století, "sedmdesátky" a současnost
Stojí na hluboké parcele, ale tmavý není. Světlo do prostor bez oken přivádějí luxfery, okénka mezi místnostmi a světlík. Ve starém domě v historickém centru Kutné Hory se bydlí pohodlně.
Adéla Vaculíková , 5. 3. 2024
V Kutné Hoře bylo cílem navrhnout solidní dům. Od pohledu pevný a používající tradiční tvarosloví. Do ulice, která vede historickým centrem Kutné Hory, se obrací vstupními dveřmi a třemi okny. Má ale taky římsy – korunní pod střechou a průběžnou oddělující přízemí od patra, drží tak tradiční vzhled domu podobný těm, které ho obklopují.
Stavba už od prvního pohledu působí, že na místě stojí dlouho. Původně zde hlubokou parcelu vyplňoval dům středověký, ten ale shořel a v 19. století ho nahradila novostavba. Předtím, než prošel rekonstrukcí podle návrhu architektů z ateliéru BYRÓ, však jeho podobu udávala 70. léta. Tehdy dům dostal nepopulární „trojáky“ – okna s trojitým členěním, která pro jejich šířku nemají památkáři v historických čtvrtích rádi. Na tomto domě ale i po rekonstrukci přeci jen zůstaly, nepatřičně nakonec nevypadají, zjemnily je žlabované špalety a netypická pastelová zelená.
Více k tématu
Architekti Tomáš Holub a Jan Hanus usilovali o to, aby dům opět našel vztah ke svému prostředí. Jeho úpravy z 20. století mu ho totiž podle jejich názoru postupně vzaly. Zvenčí ale ani před rekonstrukcí úplně nepatřičně nevypadal. Okolo oken měl šambrány, korunní římsu podobnou té, kterou má dnes. Vstupní dveře ale byly do fasády zasazeny nelogicky, to rekonstrukce napravila. Proměnu vztahu domu k místu, jak ji architekti zmiňují, je tak možné chápat jako opětovné navázání logické vazby mezi interiéry a exteriérem a další návaznost domu na okolní historickou zástavbu. S tou má jako řadový dům totiž propojení těsné.

Vevnitř jako venku
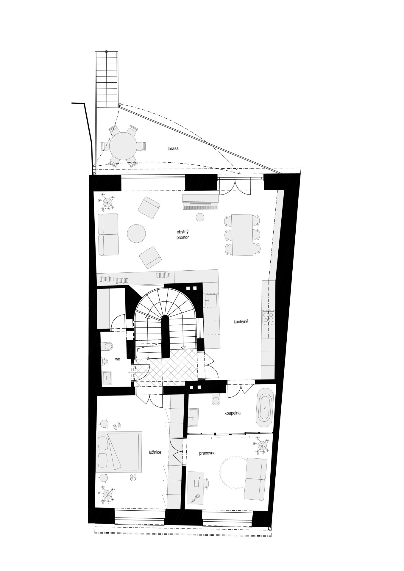
Vnější podoba a interiér tvoří pevný celek. Prvky z exteriéru domu navazují spojení s těmi uvnitř. Vztah je mezi materiály i formami. Žlabování, které je venku na parteru a ve špaletách, je uvnitř na stěně v obývacím pokoji. Z betonu, z něhož jsou parapety, je tady lavice pod krbem. Najde se ale i na terasách na zahradě, které porůstají rostliny. Dovnitř se dostává taky pastelová zelená, dlažba ve vstupní hale má stejnou barvu jako dveře.
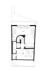
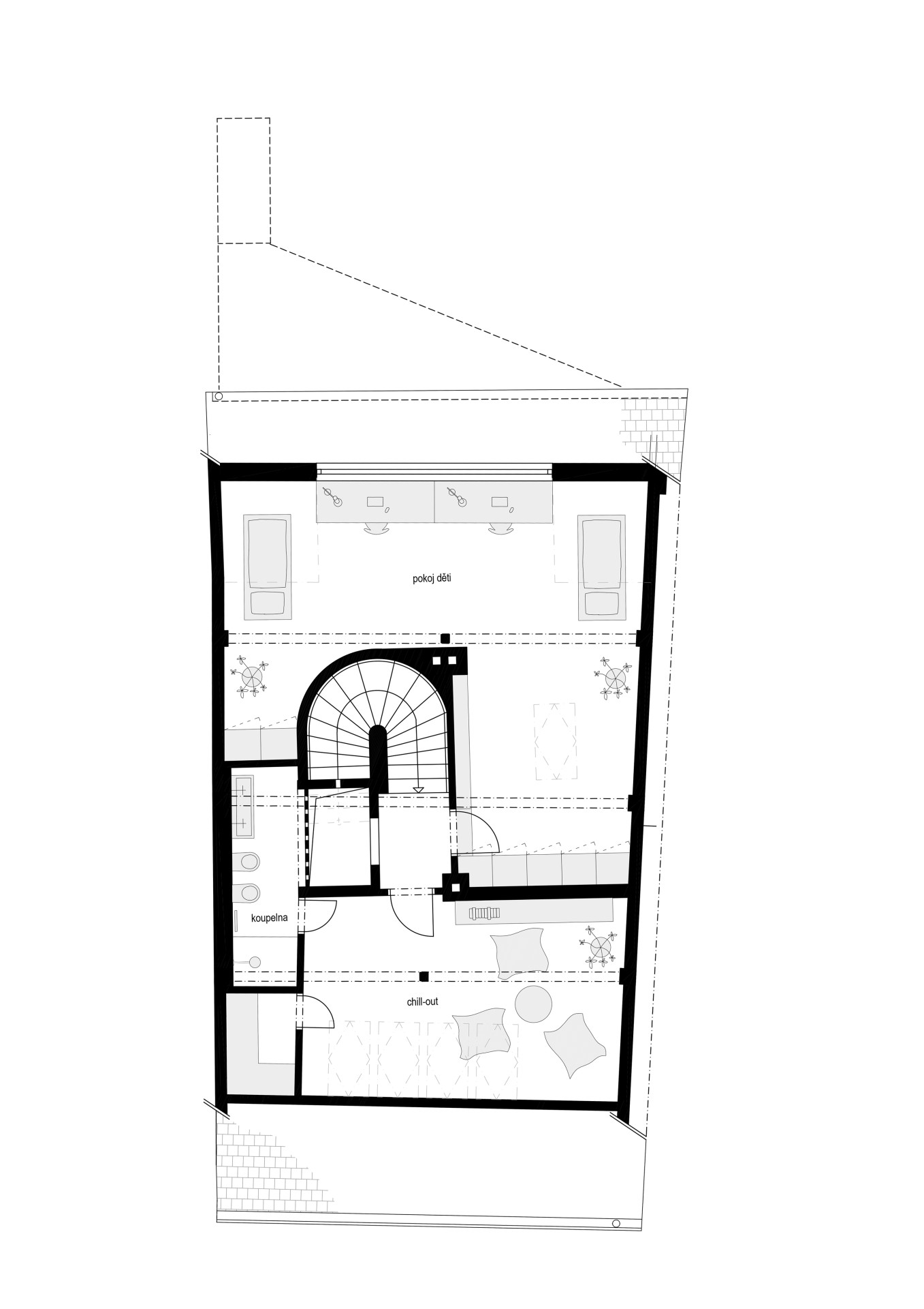
Vstupní hala vede pohled ke schodišti, které propojuje všechna tři podlaží domu. Stupně vedoucí do prvního patra jsou kamenné a původní, pak na ně navazuje nové točité schodiště. Je z kovu a má taky odlišnou hmotovou podstatu – je subtilní a mezi stupni má mezery, schodišťovou šachtou tak proudí světlo, které do ní přivádí střešní světlík.

„Nové zásahy mají objektu přinést nové impulzy, které spočívají zejména v nečekaném propojování jednotlivých prostor domu interiérovými okny a otvory,“ říkají architekti. V domě pracovali třeba s kulatými luxferami, které mezi prostory distribuují rozptýlené světlo. Z kuchyně je na schodiště vidět kulatým oknem. Koupelna v patře je od pracovny oddělená průsvitnými příčkami. Práce se světlem se pro dům stala charakteristickou, je efektní a současně funkční. Bez těchto řešení by v domě na takto hluboké parcele vznikaly příliš tmavé prostory.
Architekti z ateliéru BYRÓ jsou na domácí architektonické scéně známí dvěma staršími realizacemi: je to rekonstrukce stodoly a novostavby chaty, obojí na Šumavě. V projektech hrálo roli znovuvyužívání materiálů, stavělo se svépomocně, důležitá byla nízká prováděcí cena. To v případě domu v Kutné Hoře neplatí – na první pohled je jasné, že to byla rekonstrukce nákladná, pracovalo se s kvalitními materiály a řemeslně precizně. Kontinuitu však tento projekt s předchozími pracemi architektů z BYRÓ přeci jen drží. Opět jde o realizaci autorsky propracovanou až do detailu. Jan Holub a Tomáš Hanus ji navrhovali včetně vybavení. Stejně jako u předchozích se také dbá na přirozené zapojení do kontextu okolí.

Dům obývá rodina se třemi dětmi. Ty mají své vyžití hlavně v přízemí, kde je herna, a v podkroví, kde mají své pokoje. První patro je určené společnému obytnému prostoru a pak ložnici. Všechny místnosti jsou vybaveny nábytkem, který ozvláštňují barevné akcenty, je zhotovený z MDF desek a překližky. Z té jsou taky podhledy, které v obývacím pokoji formují řady falešných kleneb. Podobné mohl mít třeba středověký dům, který na místě kdysi dávno stál.
Pokud se u nás rekonstruuje nebo přestavuje historický dům, vydávají se architekti zpravidla kontrastní cestou. Staré bývá od nového snadno rozpoznatelné. To v případě domu v Kutné Hoře neplatí. Očividné staré a nové nemá. „Hranici mezi starým a novým jsme se snažili spíše znejišťovat, než aby na ni bylo upozorňováno,“ říkají architekti z BYRÓ. Novou vrstvu, kterou k domu přidali, pojali nenápadně, napojili ji na ty už existující, jednotlivé vývojové etapy domu neakcentovali.
- Autoři: Jan Holub, Tomáš Hanus
- Ateliér: BYRÓ architekti
- Země: Česká republika
- Město: Kutná Hora
- Projekt: 2021
- Realizace: 2023
- Zastavěná plocha: 128 m²
- Hrubá podlahová plocha: 384 m²
- Užitná plocha: 297 m²
- Plocha pozemku: 271 m²
- Náklady: 10 500 000 CZK
- Fotograf: Alex Shoots Buildings