Malou chatu v Sušici postavili architekti vlastníma rukama z těch nejlevnějších materiálů, co měli k dispozici
„Dům-plot“, tak označují architekti z ateliéru BYRÓ chatu, která uspěla i na zahraničních architektonických webech. Postavená je přitom z toho nejlevnějšího, co bylo k dispozici a z velké části ji realizovali svépomocí sami autoři návrhu.
Adéla Vaculíková , 22. 5. 2023
Stavět svépomocí má v naší republice svou tradici, mnohdy dvousečnou, která nepřináší zrovna dvakrát dobré výsledky. Když architekt David Kraus navrhl kolem roku 2000 rodinný dům pana Paťhy v Říčanech, označil jeho zdeformovanou, avšak archetypální podobu za „nečistou formou“, která si bere vzor z českého kutilství. Ve skutečnosti však navrhl sofistikovanou a zároveň levnou dřevostavbu, kterou pak historik architektury Rostislav Švácha zahrnul do svých úvah o projevech regionalismu v současné architektuře v České republice. V podobných intencích nyní postupovali i architekti Jan Holub a Tomáš Hanus z ateliéru BYRÓ architekti, když navrhli chatu v Sušici, která teď sklízí úspěchy i na zahraničních architektonických webech.
Více k tématu
Malý rekreační domek na úpatí kopce Svatobor je působivý už svou siluetou. Směrem dolů ze svahu ji modeluje prohnutá střecha, která navazuje na úroveň sousední chatové zástavby. Do ulice se zase obrací štítovou stěnou postupně se přelévající do standardně vysokého plotu. „Chata si pečlivě chrání své soukromí a zároveň nabízí výhledy směrem do zahrady, na město i nedalekou Šumavu,“ říkají architekti. Celá hmota chaty je obložená nehoblovanými střešními latěmi, které se od sebe v místě plotu postupně oddalují – clona se tak stává polopropustnou a připomíná klasické laťkové ploty.
Chata v Sušici je bezesporu kvalitním příspěvkem současné architektury. Vedle svých formálních vlastností je však rovněž zajímavá tím, jak vznikla – s výjimkou nosných konstrukcí ji totiž nerealizovala žádná specializovaná firma. „Z projektu se pro nás stal experiment se vším všudy. Během návštěvy stavby, kdy jsme přijeli zkontrolovat hrubou stavbu a dohodnout se na systému fasádního laťování, se stavební firma ukázala jako natolik nekompetentní, že jsme byli nuceni se s ní rozloučit a hledat náhradu. Vzhledem k tomu, že jsme operovali s velmi omezenými prostředky, nikoho jsme nenašli a pustili se tak do fasády během jednoho letního týdne sami. Nakonec jsme na domě strávili asi tři měsíce, vyplnili covidové pauzy v ateliéru a kromě několika drobností jsme dům dokončili kompletně vlastními silami, do posledního detailu a včetně interiéru,“ popisují proces výstavby Jan Holub a Tomáš Hanus.

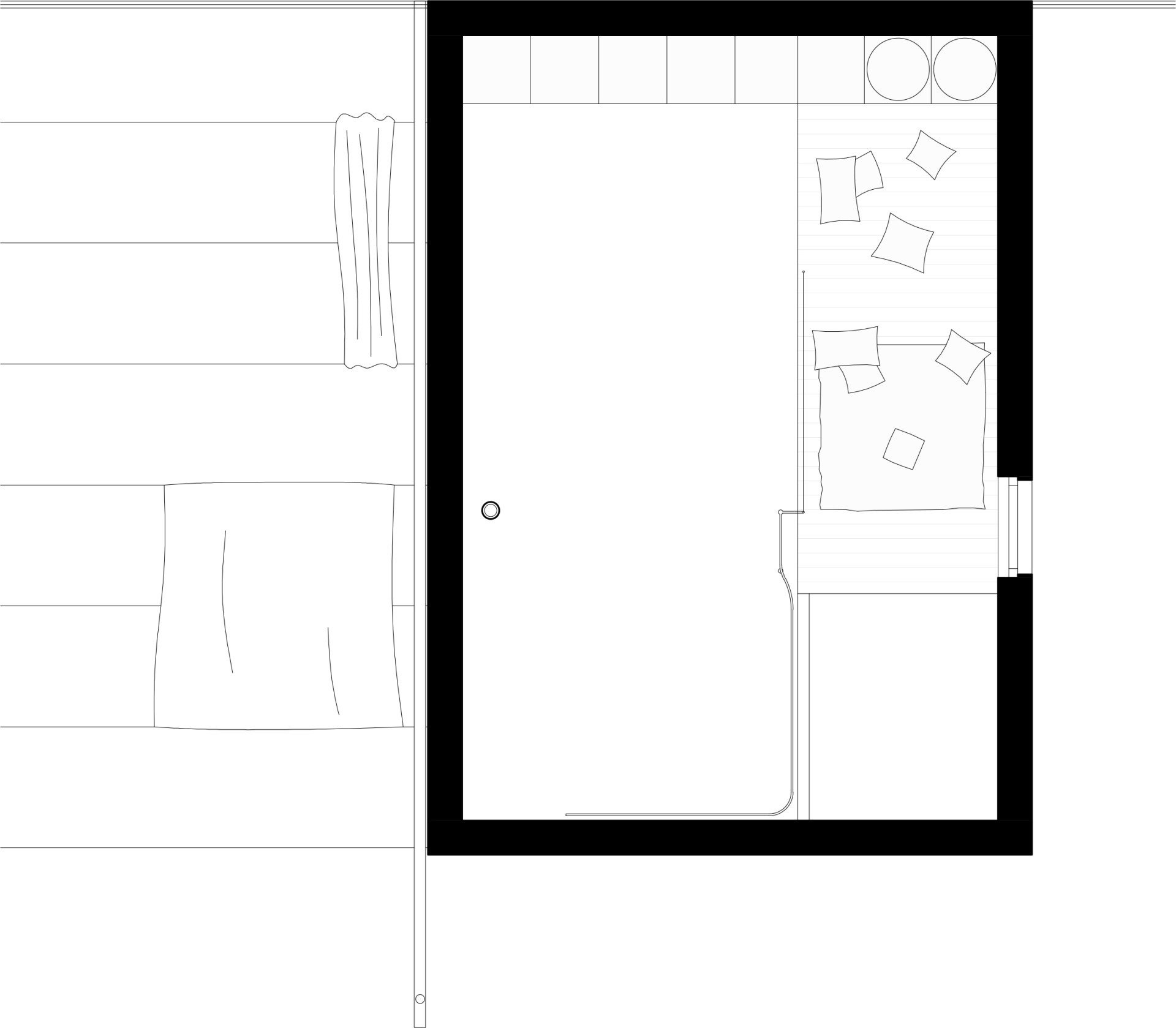
Chata je opravdu malá, stojí na 35 metrech čtverečních. Určená je k pobytu jednoho člověka – její majitelky. Vnitřní dispozice jsou maximálně otevřené, v objektu je jeden obytný prostor, na který navazuje výklenek s postelí, další lůžka pro hosty se pak vešla přímo pod střechu. Součástí je také koupelna, která je dovnitř vsazená tak, že odděluje zádveří od obývacího pokoje a kuchyň od místa pro spaní.
„Byť to na první pohled nejspíš není patrné, dům byl postaven v podstatě z toho nejlevnějšího, co bylo k dispozici,“ říkají architekti. Vedle nehoblovaných střešních latí pro fasádu to jsou třeba plastová okna, betonové podlahy, povrchy v koupelně jsou pokryté průmyslovou gumou, ostatní stěny jednoduše omítnuty nebo pobity překližkou druhé jakosti. Nábytek je sice navržený na míru, ale také nízkonákladový. „Vnitřní korpusy úložných prostorů jsou z nábytkového lamina, pouze dvířka tvoří stavební překližka. V případě kuchyně se jedná o typizované korpusy s překližkovými dvířky, pracovní desku tvoří bílé lamino, konzoly na nábytkové police pochází z hobbymarketu, a tak dále,“ dodávají.

Nízkonákladovost na výsledku ale není vidět, a pokud někde ano, není to na škodu. Realizace má silný koncept, který vedle toho, že je krásný, také omezuje plýtvání a ukazuje, že i s velmi omezenými prostředky se dá pracovat. Faktor stavění svépomocí a materiálová zodpovědnost byl ostatně zásadní také pro jinou realizaci ateliéru BYRÓ architekti, konkrétně rekonstrukci stodoly v Pošumaví, kterou dokázali do značné míry podle projektu architektů zrekonstruovat sami její majitelé.
- Ateliér: BYRÓ architekti
- Autoři: Jan Holub, Tomáš Hanus
- Země: Česká republika
- Město: Sušice
- Zastavěná plocha: 35 m²
- Náklady: 50 000 €