Architektura
                                                /
                                                    interiér
                                            
					
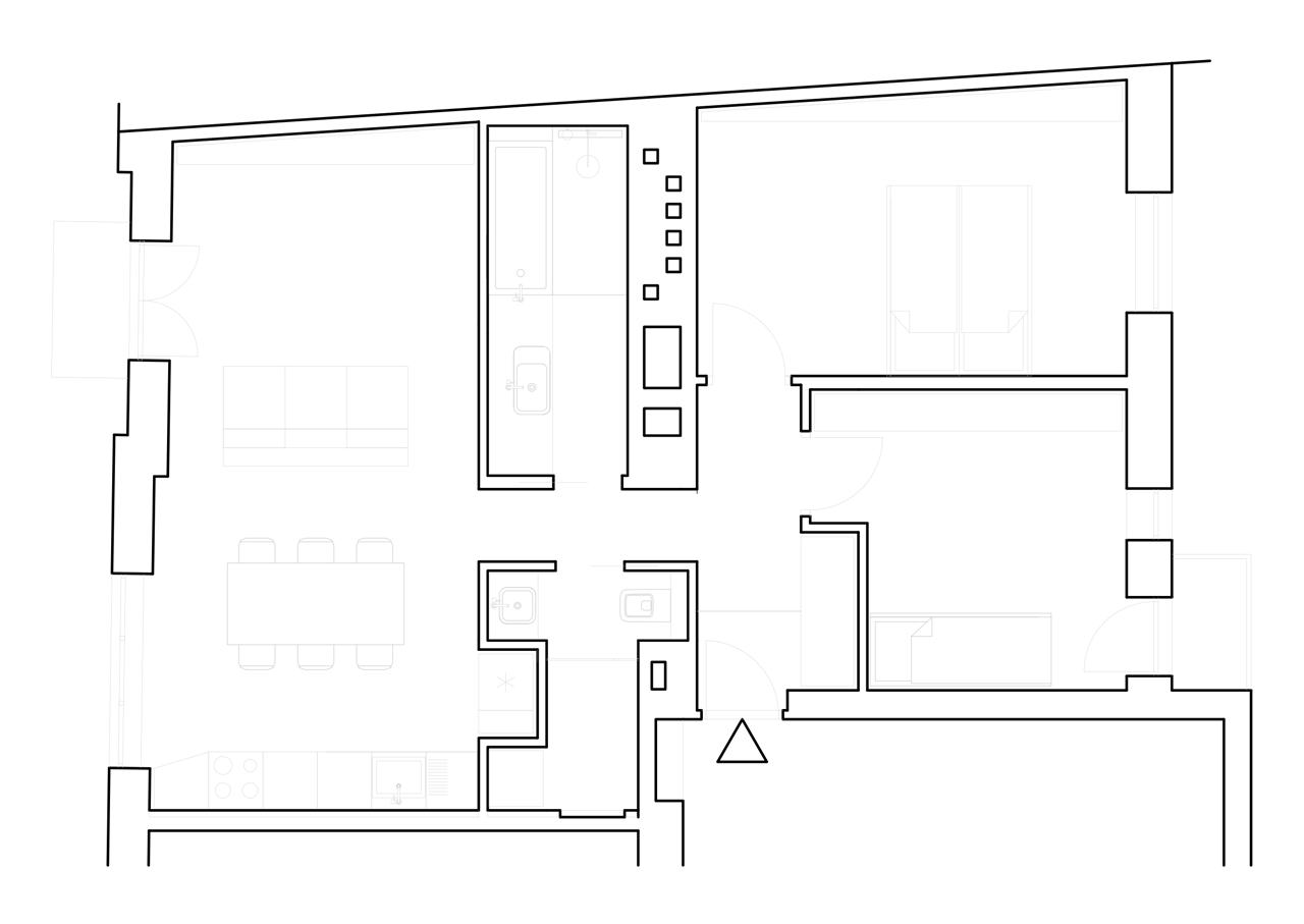
			Zónované bydlení
Máte byt hned se dvěma balkóny, odkud je krásný výhled, a přesto je jeden z nich přístupný pouze z chodby? Tomu se říká nevyhovující dispozice. Přesně takový si vzali do parády ECHOROST ARCHITEKTI a kromě samotného interiéru navrhli i lepší dělení bytu na tři zóny s rozdílnou funkcí.
ECHOROST ARCHITEKTI , 9. 11. 2016
- Autoři: Jaroslav Hulín, Jiří Pavlíček, Adéla Prchlíková
 - Země: Česká republika
 - Realizace: 2012
 - Město: Praha 8 - Libeň
 - Datum projektu: 2012
 - Realizace: 2012
 - Užitná plocha: 70.60m2
 - Foto ©: Benedikt Markel