111 - Dům pro bráchu

Dům stojí na parcele situované mezi uliční a soliterní strukturou zástavby, tedy na hranici starší a mladší části města Pacov. Svojí hmotou přitakává ulici, prodlužuje ji a ukončuje. Stává se posledním, v opačném případě prvním v řadě, nepřehlédnutelnou individualitou. Jeho neobvyklý tvar vychází z atypického půdorysu parcely, orientace vůči světovým stranám a zejména z omezené velikosti pozemku kontrastující s rozsáhlým stavebním programem.
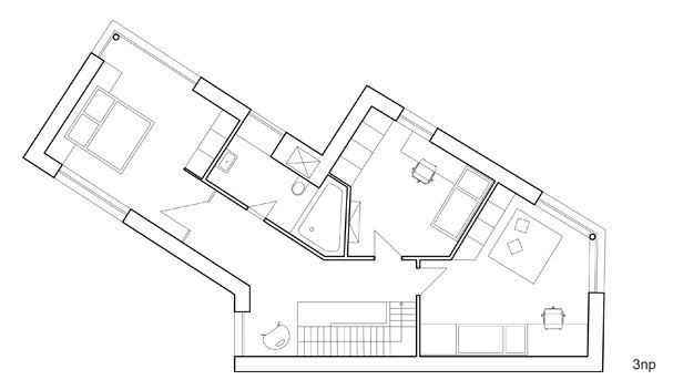
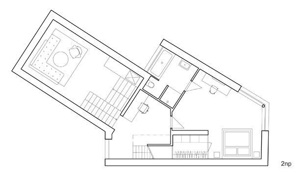
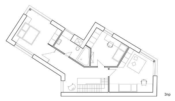
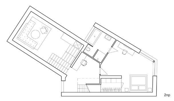
Do domu se vstupuje přímo z ulice. Hlavní obytný prostor – jídelna s kuchyní v úrovni přízemí a převýšený obývák přístupný po šesti schodech – se otevírá do zahrady velkými francouzskými okny, z ulice skrytými za plotovou zdí. Druhé a třetí podlaží zabírají ložnice a dětské pokoje. Pod obývákem je o půl patra níž zapuštěné podlaží s technickým zázemím domu, kde nechybí ani spižírna a sklep. Do těchto prostor se lze dostat buď zvenku, nebo po jednoramenném schodišti přímo od kuchyňské linky.
Garáž umístěná na samotné hranici protilehlé strany pozemku umožňuje zaparkování až tří vozidel. Přesto neubírá zahradě žádnou plochu. Zatravněná střecha přecházející ve svažující se zahradu vytváří směrem k domu jedinečný útvar – umělý kopec. Ten se stává ústředním prvkem v pohledu z exteriéru, zelenou podnoží vzdálenějších střech sousedních domů; místem, kde si děti rády hrají.
„Na staveništi to žije. Verča s Davidem běhají po hromádkách deponky. Užívají si přirozený chaos, dokud to jde. Pak totiž zakročí architekt. Na konci budoucí zahrady navrhne přístřešek pro dvě auta a přes půl pozemku natáhne příjezdovou cestu. Na zbytku vytvoří umělou pohledovou krajinu a zahradu obežene zdmi. O rok později: Na zahradě to žije. Verča s Davidem běhají po hromadě, kterou sem navezlo 15 tatrovek. Deponka nestačila. Sáňkují. Pod nimi parkují tři auta, ani to nevědí. Garáž je zavrtaná v kopci, který je v místě hranice pozemku ukrojen, takže nedosáhl svého vrcholu. Dole v údolí odpočívají milovaní rodiče. S lahví whisky na stole vzpomínají na těžké časy, kdy za pomoci dětí a všech svých návštěv ručně vrstvili přivezenou zeminu postupně výše a výše. Díky tomu teď mohou vylézt z chráněného ústraní na kopec a podívat se, co se děje ve světě."
- Autoři: Jiří Weinzettl, Lukáš Smetana
- Ateliér: ateliér 111 architekti
- Země: Česká republika
- Město: Pacov
- Realizace: 2011
- Zahrada: Zdeněk Marek
Související projekty
Související architekti
Související ateliéry a firmy
Mohlo by vás zajímat














