50 Modular Timber Apartments

Výstavba bydlení v severní části Toulouse pro znevýhodněnou část populace je – jako součást sociálního programu organizace ADOMA – skromným, ale přesto významným příspěvkem k rozvoji bohatšího a více promíseného města. Tato část je přitom jednou z nejdynamičtějších částí toulouské aglomerace.

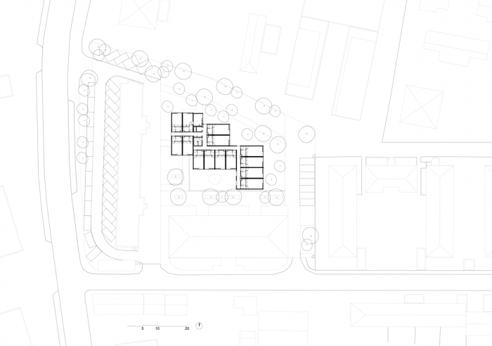
Nová stavba stojící na západním konci pozemku, který ADOMA vlastní, vyžadovala důkladné zpochybňování samotného uspořádání. To znamenalo také změnu poměru mezi zastavěnou a nezastavěnou plochou na úkor jejího budoucího využití, a tedy i vzhledem ke kvalitě jeho užívání samotnými rezidenty.

Vzhledem k velikosti a aktuálnímu urbanistickému uspořádání Place des Papyrus (místo v Toulouse, pozn. red.) existovaly obavy, že celková orientace pozemku a technická omezení vycházející z konstrukce dřevěných modulů způsobí příliš velké množství apartmánových jednotek otočených k severu. Ty by zároveň převyšovaly, nebo byly převyšovány, již existující okolní zástavbou.

S vědomím těchto omezení a s cílem vytvořit novou budovu přijatelnou jak pro urbánní prostředí a pro stávající rezidenty, tak jako co nejvíce komfortní pro budoucí obyvatele, jsme se rozhodli pro dřevěný modulární systém.

Zároveň jsme chtěli dosáhnout těchto cílů:

Umístěním nové stavby dosáhnout k pozitivní reorganizaci okolních ploch. Stávající společné prostranství nahradit novými plochami s praktickým i okrasným využitím. Zachovat pěšinky skrz pozemek a tím i jeho prostupnost, zatímco se optimalizuje jeho funkční uspořádání. To spolu s reorganizací přístupových cest zahrne zejména přemístění služeb a vlastního vybavení – poštovních schránek, prostor pro parkování jednostopých vozidel či ukládání tříděného odpadu. Díky efektivní práci s vnitřními servisními prostory a technickým vybavením budovy minimalizovat ty apartmány, které převyšují okolní zástavbu či jsou orientovány na sever. To vše při zachování celkové kompaktní hmoty domu.

Při zachování architektonických a technických požadavků projektu je výsledek spojením mezi efektivními aspekty vlastní modulární budovy (opakující se, kompaktní, „stohovatelná‟ konstrukce) a kontextu, který má zásadní význam pro kvalitu užívání nové budovy a také pro její „integraci‟ do stávající městské struktury.

Tyto rozdílné cíle se nám podařilo úspěšně a úzce propojit.

  • Autoři: Guillaume Pujol
  • Ateliér: PPA Architectures
  • Země: Francie
  • Realizace: 2015
  • Město: Toulouse
  • Ulice, číslo: 3 Place des Papyrus
  • PSČ: 31000
  • Suma: 2 400 000.00
  • Měna: EUR
  • Datum projektu: 2014
  • Realizace: 2015
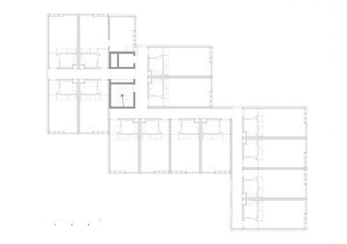
  • Užitná plocha: 1 500.00m2
  • Materiál: dřevo
  • Poznámka: Foto © Philippe Ruault
Generální partner
Hlavní partneři