Ateliér BY architects proměnil komplikovaný víceúrovňový prostor ve tři samostatné byty

Náročný úkol, který vznikal s přestávkami několik let. Celá zakázka byla specifická tím, že je klient kamarád (a architekt). Tedy, toho času svobodný mladý muž, si pořídil velkorysý víceúrovňový prostor a rozhodl se jej rozčlenit do více jednotek, ať už za účelem pronájmu nebo ubytování návštěvy. Nejdříve to vypadalo, že ani nemá v plánu zde bydlet.

Vzhledem k velkému převýšení neubralo ani další dělení jednotlivým prostorám na atraktivitě. Možná i z tohoto důvodu jsme po několikaletém zrání projekt a započatou rekonstrukci mohli přizpůsobit aktuálním potřebám klienta, který se v čase oženil, založil rodinu a rozhodl se nemovitost sám užívat. Učesali jsme poměrně komplikovanou situaci tak, aby všichni získali dostatek potřebného prostoru, např. ve formě pracovny na podestě druhého podlaží, prostornou kuchyni se spíží a co nejefektivnější úložné prostory pro plnohodnotné bydlení. Výsledku pochopitelně předcházela spousta práce, investic, důvěry, trpělivosti a neutuchající optimismus na všech stranách.

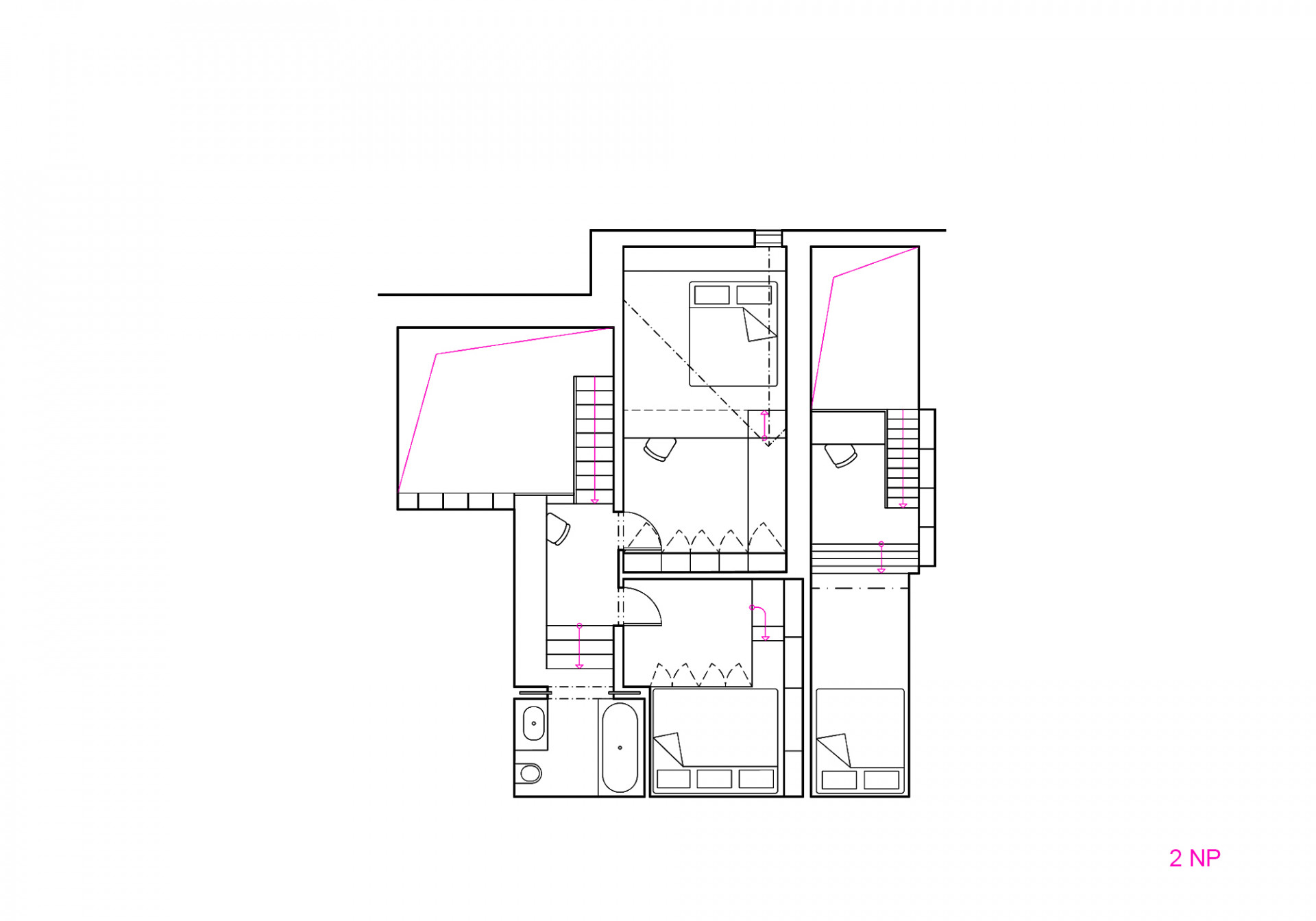
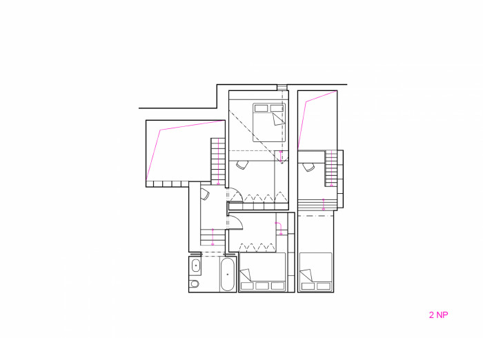
Koncepce / prostorové uspořádání

Vznikly tři jednotky spojené předsíní. Dvě s vlastním minimálním zázemím - 1 x garsoniéra a 1 x mezonetový prostor na třech úrovních. Třetí jednotka je domovem rodiny investora. Byt na spodní úrovni disponuje WC, malou prádelnou, do které vede shoz na prádlo z horního podlaží, kuchyní s malou spižírnou a obytným prostorem s velkým oknem a dveřmi na modřínovou terasu. Schodiště je tvarované tak, aby sloužilo nejen jako spojnice do druhého podlaží, ale i pro výstup ven. V podkroví je ložnice a dětský pokoj se spacím patrem ve vikýři, pracovna na galerii a hlavní koupelna.

Vybavení a materiály

Světle šedá PUR stěrka na podlaze spodní úrovně, březová překližka jako pochozí vrstva ložnicového patra, v hlavní koupelně na podlaze a na exponovaných stěnách světle šedý kaučuk. Stěny v zázemí v prvním patře pokrývá světle šedé Pandomo. Atypický nábytek včetně schodiště je proveden v kombinaci bílého laku a březové překližky. Dveře se skrytou zárubní a posuvné dveře od firmy Bdoors s kováním Argenta. Nepřímé, ale výkonné osvětlení rámuje strop a umožňuje nerušeně vnímat vzdušný prostor. Středně šedé polstry a závěsy převážně z bílého lnu jsou vyrobené firmou Arthe na míru danému prostoru. Dodávka finálních povrchů a truhlářských výrobků od firmy Devoto pro nás byla třešinkou na dortu. Spolupráci jsme završili vlastnoruční výrobou terasy.

Generální partner
Hlavní partneři