AA plus 2
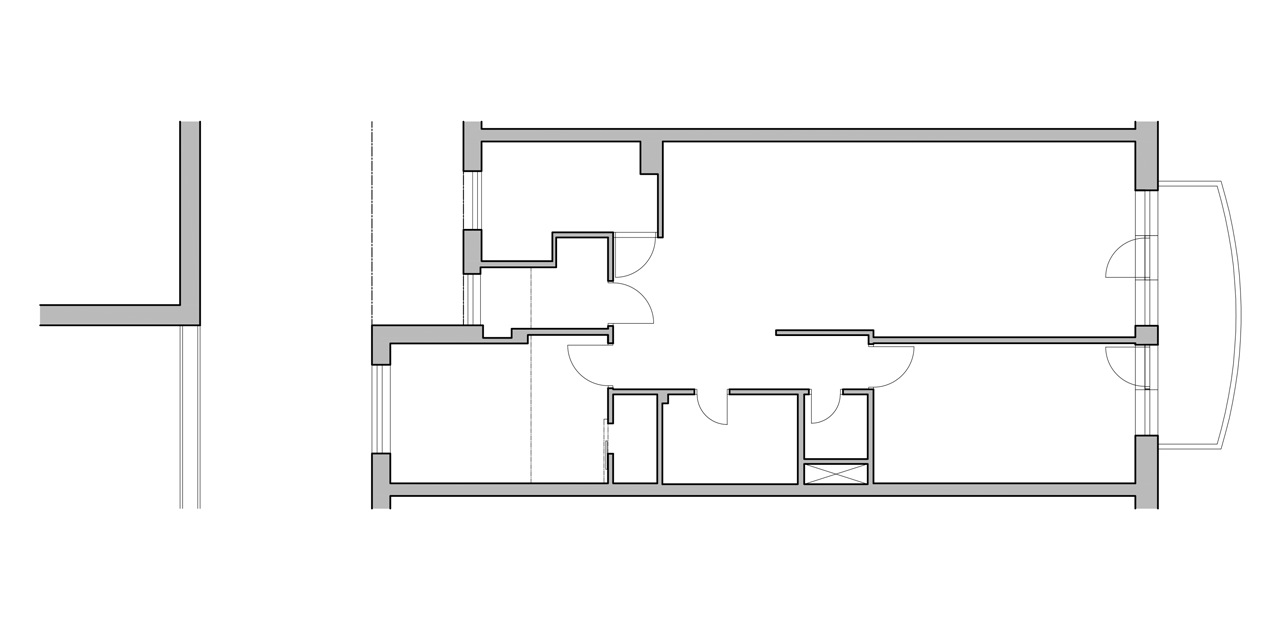
Pôvodné rozloženie trojizbového bytu malo uzavretejšie usporiadanie, kde každý funkčný celok tvoril jednu miestnosť. Použité materiály boli značne opotrebované a tak si byt vyžadoval celkovú rekonštrukciu.
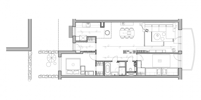
Základom návrhu bolo vytvoriť vzdušný jednoduchý koncept s otvorenou spoločenskou časťou, kde by sa prepojila vstupná časť, kuchyňa, jedáleň a stretávacia zóna. Nové priestorové usporiadanie teda vytvorilo jeden spoločný priestor, z ktorého je prístupná spálňa s detskou izbou a hygiena.
Koncept, farebnosť a materiály
Výrazným zdrojom inšpirácie bola hravosť interiérových doplnkov pôvodnej atmosféry bytu a dominantná knižnica, ktorú chcel majiteľ v čo najväčšej miere zachovať. Jednotu riešenia vytvára farebnosť podlahy, kde sa v obytných zónach použila drevená dubová podlaha ebenového morenia, v záťažových priestoroch antracitová gresová dlažba. Steny sú biele a vytvárajú priestor pre obrazovú galériu, ktorá prechádza celým bytom. Nábytkové prvky majú základ bielo-drevenej kombinácii s farebnými akcentami.
Riešenie jednotlivých priestorov
Vstupná chodba má prenášať do bytu atmosféru vonkajšieho átria so zeleňou. Na stene je preto použitý trávový koberec s farebnými stromami zasadenými v drevenom kvetináči a doplnený vešiakmi v tvare vtákov z dielne dizajnérskeho dua ALLT. Na protiľahlej stene je posuvná zrkadlová stena, ktorá akoby duplikuje prírodný motív. Pri vchodových dverách je umiestnená stena natretá kriedovou farbou, na ktorú si obyvatelia bytu píšu odkazy. Vešiakové stromy sú vyrobené z MDF dosky, striekané matným farebným lakom. Drevený kochlík a police sú z laminovanej drevotriesky. Reflektorové osvetlenie bodovo zvýrazňuje vytvorené zátišie a odkazovú tabuľu.
Chodba je priamo prepojená s centrálnym priestorom bytu, ktorý má v jednej časti kuchynský kút predĺžený do ostrovčeka, ktorý z jednej strany funkčne dokončuje kuchyňu a z druhej je používaný ako malý vínny regál. Kuchyňa je z veľkej časti tvorená z bielych prvkov, ktoré sú dopĺňané farebnými akcentami otvorených políc. Pracovná doska s dreveným dekórom zmäkčuje biele plochy a vytvára kontinuálny lem. Pohľadové časti kuchyne su vyrobené z matne lakovaných MDF dosiek a tenká pracovná doska z drevotriesky je olaminovaná melamínom s dreveným dekórom.
Ostrovček má na jednej strane pôsobiť ako optický predel medzi kuchynskou a jedálenskou čaťou, na strane druhej ale vytvárať komunikačný uzol. Jedáleň je riešená veľmi jednoducho, rozkladacím stolom bielej farby, doplneným stoličkami jednotného dizajnu v rôznych farbách. Lampa nad stolom je originálnym prvkom slovenskej dizajnérskej značky MEJD studio, a reaguje na dominantu priestoru, ktorou sú knihy. MEJD studio vytvorilo tento kúsok priamo pre tento projekt, je to lampa nekonečných variánt, keďže slúži aj ako odkladacia plocha pre rozčítanú kuchársku knihu alebo časopis.
Hlavný stretávací priestor je koncipovaný ako aréna. Z jednej strany tvorí hľadisko priestranná sedačka, na druhej strane je knižnica podopretá lavicou, na ktorej sa môže vysedávať a slúži aj ako hrací pult ideálnej veľkosti pre dva malé prírastky. V strede je teda centrum diania, komunikácie a života rodiny. Knižnica, ktorú si majiteľ prial zachovať je použitá v modifikovanej podobe. Je popretínaná farebnými záložkami a lineárne akcentovaná uzavretými modulmi. Hravosť je podporená výraznými závesmi od dizajnérky Michaely Bednárovej, ktorá vystupuje pod značkou PUOJD.
V detskej izbe je opäť zopakovaný motív bielych nábytkových blokov, ktoré vytvárajú priestor na doplnenie nálepkami a plagátmi hrdinov. Tí sú zatiaľ iba na dračích závesoch, opäť z dielne PUOJD. Záhlavie, prípadne bočná strana postelí, je tvorená zeleným kobercom, ktorý izoluje chladnú stenu a taktiež vie slúžiť ako podklad pre rozprávkovúu krajinu. Lampa - domček od MEJD studia dopĺňa priestor opäť reaguje na hlavný motív celého konceptu riešenia, ktorým je hravosť.
- Autoři: Soňa Králiková, František Orth
- Ateliér: MIMOarchitekti
- Země: Slovensko
- Město: Bratislava - Staré Mesto
- Datum projektu: 2012
- Realizace: 2013
- Užitná plocha: 90.00m2
- Foto ©: Tomáš Rebro
Související projekty
Související architekti
Související ateliéry a firmy
Mohlo by vás zajímat