Kancelářská budova Jindřišská 16
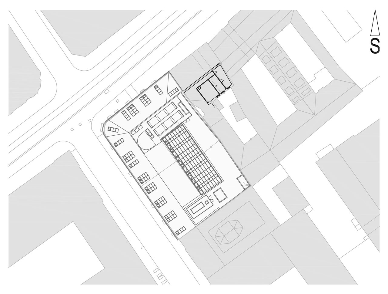
Nárožní dům na rohu ulic Jindřišská a Politických vězňů se nachází na území Pražské památkové rezervace chráněné UNESCO v centru města. Klasicistně novorenesanční nájemní dům postavil český stavitel poloviny 19. století František Havel v roce 1870. Původně nájemní dům byl přestavěn podle projektu Františka Kavalíra pro Banku stavebních činností v roce 1922-23. V 60. letech v budově sídlila Československá televize, která iniciovala další adaptace.
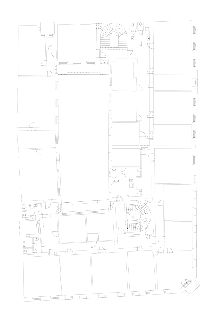
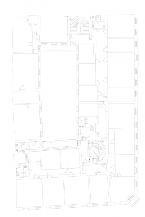
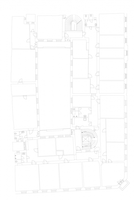
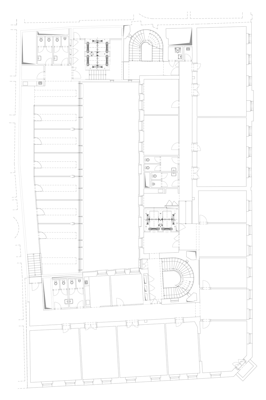
Projekt řešil rekonstrukci původních uličních křídel a dostavby ve vnitřním dvoře. Přízemí historické budovy tvoří volné nájemní prostory a kavárna/restaurace s možností extenze do prostoru atria, které nově vzniklo zastřešením původního prostoru dvora prosklenou střechou a vytvořilo velkorysý prostor vstupní haly situované mezi historickou část a moderní dostavbu.
V atriu je umístěna hlavní recepce pro celou kancelářskou budovu a přístupy do dvou výtahových lobby. Dominantou atria je 30 m vysoká živá zelená stěna a dále prosvětlený onyxový recepční pult coby akcent na tmavé dlažbě podlahy vstupní haly. Celý prostor atria je dynamizován křivkou kovových lamel tvaru „S“ skleněné fasády (jednotlivá patra směrem nahoru plynule ustupují a prostor se tím rozšiřuje). Tuto dynamiku dále umocňují zakřivené betonové sloupy proměnného elipsovitého tvaru prostupující všemi podlažími novostavby. Podlaží dostavby ve formě prostoru open-space umožňují rozdělení na jednotlivé kanceláře.
Obnovená původní vstupní pasáž z ulice Jindřišská je akcentována tenkými světelnými pruhy v podlaze i pod klenebným zastropením, čímž přirozeně směřuje návštěvníka do hlavní dvorany átria. Objekt má jeden suterén a sedm nadzemních podlaží. Budova obdržela LEED Gold certifikaci.
Fasáda nové dostavby do atria je realizována jako lehký celoprosklený plášť (i vzhledem k potřebám denního osvětlení) s vodorovnými lamelami zlepšujícími distribuci světla přicházejícího přes prosklenou střechu atria. Jako materiál fasády původních dvorních křídel historických křídel do atria je navržen světlý božanovský pískovec. Řešení dalších nadzemních podlaží historické budovy je ohleduplné k historickým konstrukcím a detailům (zachovaná jsou obě původní křivoramenná schodiště). Vjezd do automatického parkovacího systému pro 23 automobilových stání je nově umístěn v poloze původního zásobování.
- Autoři: Richard Doležal, Jiří Havrda, Lukáš Soukup
- Ateliér: DAM architekti
- Spolupráce: Jan Holna, Petr Malinský, Petr Šedivý
- Země: Česká republika
- Město: Praha 1 - Nové Město
- Ulice, číslo: Jindřišská 937/16
- PSČ: 110 00
- Realizace: 2014
- Foto ©: //www.earch.cz/cs/filip-slapal">Filip Šlapal
Související projekty
Související architekti
Související ateliéry a firmy
Mohlo by vás zajímat