ARCHTEAM - Společenské a kulturní centrum Kuřim
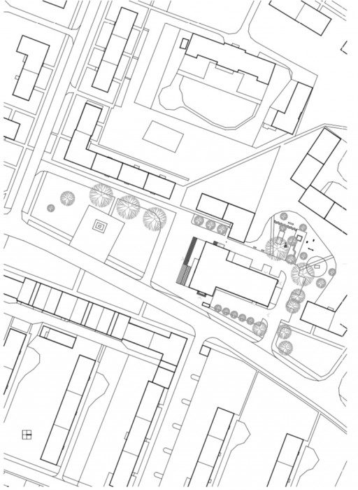
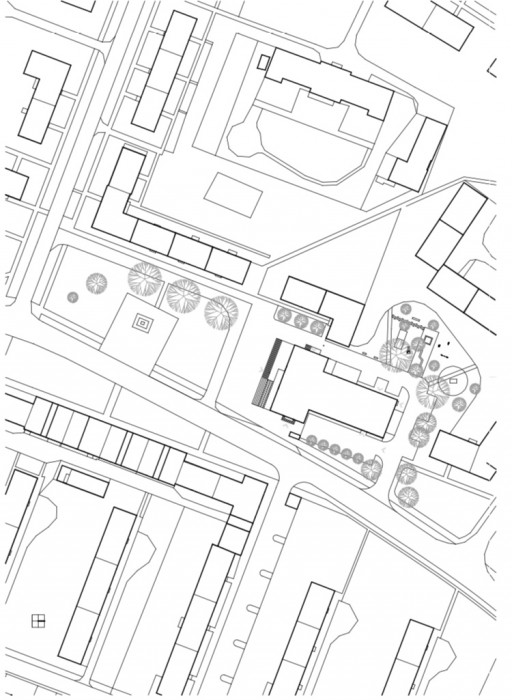
Budova byla postavena na zelené louce mezi obcí a továrnou TOS, a v průběhu 60. let bylo vybudováno před kulturním domem náměstí s obytnými domy. Společenské centrum bylo realizováno ve stylu umírněného socialistického realismu na základě projektové dokumentace vypracované pod vedením architekta Antonína Krasického.
Koncepce přestavby zachovává půdorysné členění a kompozici funkčních hmot, s tím že hmota je do náměstí zvýšena o jedno podlaží. Střecha domu je takto srovnána do jedné výškové úrovně, z níž vystupuje jen původní hmota provaziště. Vyšší přední část budovy jednoznačně vymezuje prostor náměstí a budova se vyrovnává s výškovou hladinou bytových domů v okolí.
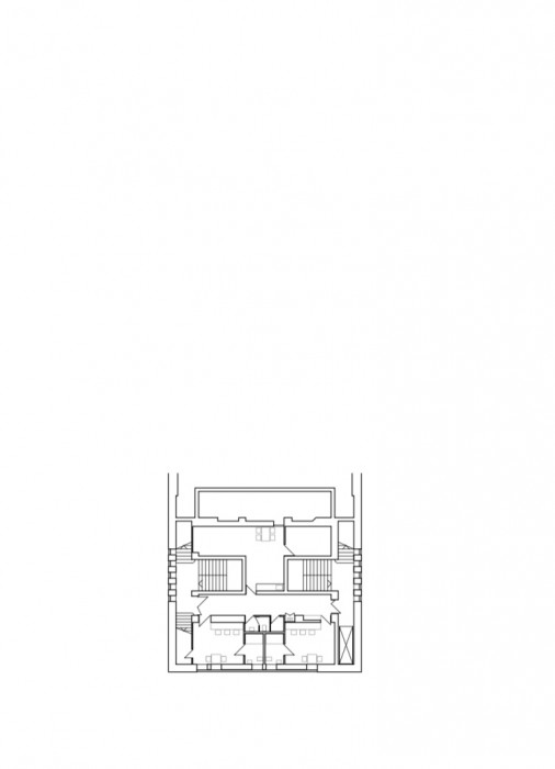
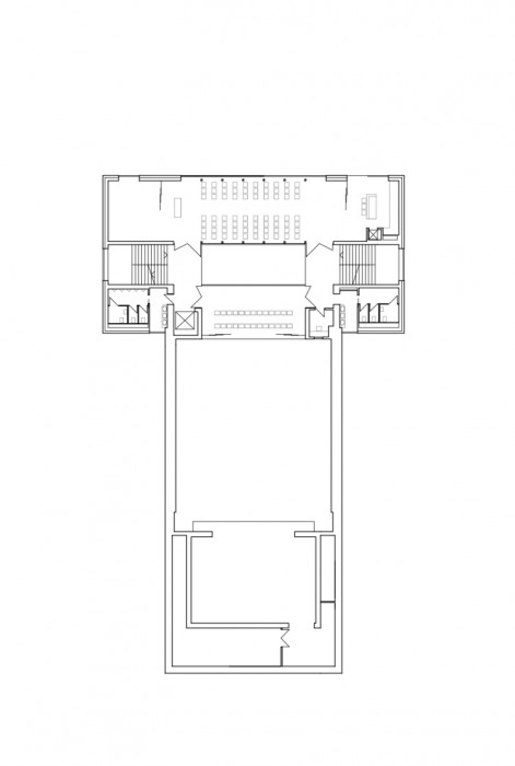
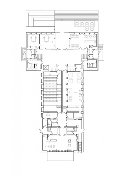
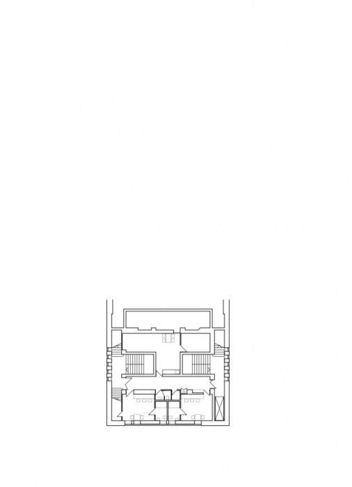
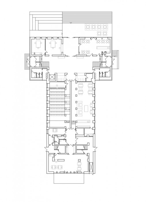
Provozní a dispoziční řešení vychází z původního řešení s přehlednou orientací v budově. Hlavním vstupem z náměstí je přístupný třípodlažní foyer a z něj všechny provozy určené pro veřejnost: kavárna, klub, malý sál, restaurace, velký sál s galerií a obřadní síň. V zadní části domu je umístěno mateřské centrum a zázemí pro účinkující. Suterén je využit pro zázemí kulturního centra a technické místnosti.
Nosný systém budovy je zachován. Nástavba přední hmoty je zděná se stropy z ocelových I nosníků a trapézových plechů, zastřešení velkého sálu z předpjatých železobetonových panelů. Jsou provedena nová železobetonová schodiště ve foyer a žebrový strop nad přízemím foyer jako kopie původního.
Fasádu přední části objektu tvoří skleněný plášť, ostatní fasády jsou obloženy tepelně izolačními deskami. Nová jsou okna a dveře, podlahy, akustické obklady a interiérové vybavení. Modernizované je veškeré technické vybavení a instalace, scénické osvětlení, audio-video technika, vzduchotechnické rozvody a vytápění, přičemž jako zdroj tepla slouží kaskáda tepelných čerpadel.
- Autoři: Milan Rak, Alena Režná
- Ateliér: ARCHTEAM
- Země: Česká republika
- Stavebník: Město Kuřim
- Město: Kuřim
- Datum projektu: 2011
- Realizace: 2019
Související projekty
Související architekti
Související ateliéry a firmy
Mohlo by vás zajímat