Dům v betonu

Dům je koncepčně navržen jako přízemní jednoduchý protáhlý hranol z betonových pohledových tvárnic. Plná zděná hmota je směrem do zahrady odlehčena ustoupením proskleného průčelí, které vytváří krytý prostor pro terasu.
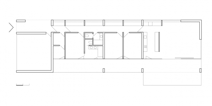
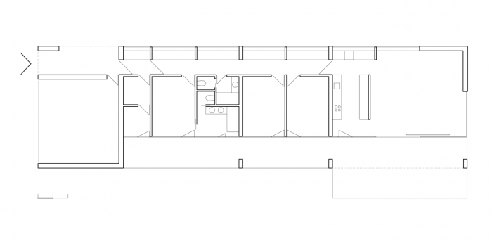
Ekonomické řešení dispozice z třímetrových modulů se promítá do minimalistického výrazu stavby. Při vstupní části domu je umístěna garáž pro dvě auta, vedle ní je kryté závětří. Dispozice domu je charakteristická protáhlou chodbou – šatnou, z níž jsou přístupné všechny obytné místnosti, což umožnilo jejich přímé propojení s terasou lemující jihovýchodní stranu domu.
- Autoři: Milan Rak, Alena Režná
- Ateliér: ARCHTEAM
- Země: Česká republika
- Město: Chrustenice
- PSČ: 267 12
- Datum projektu: 2007
- Realizace: 2012
- Foto ©: Filip Šlapal
Související projekty
Související architekti
Související ateliéry a firmy
Mohlo by vás zajímat

1/15

ARCHTEAM, Dům v betonu – foto
Foto: Filip Šlapal
2/15

ARCHTEAM, Dům v betonu – foto
Foto: Filip Šlapal
3/15

ARCHTEAM, Dům v betonu – foto
Foto: Filip Šlapal
4/15

ARCHTEAM, Dům v betonu – foto
Foto: Filip Šlapal
5/15

ARCHTEAM, Dům v betonu – foto
Foto: Filip Šlapal
6/15

ARCHTEAM, Dům v betonu – foto
Foto: Filip Šlapal
7/15

ARCHTEAM, Dům v betonu – foto
Foto: Filip Šlapal
8/15

ARCHTEAM, Dům v betonu – foto
Foto: Filip Šlapal
9/15

ARCHTEAM, Dům v betonu – foto
Foto: Filip Šlapal
10/15

ARCHTEAM, Dům v betonu – foto
Foto: Filip Šlapal
11/15

ARCHTEAM, Dům v betonu – foto
Foto: Filip Šlapal
12/15

ARCHTEAM, Dům v betonu, situace – foto
Foto: archiv autorů
13/15

ARCHTEAM, Dům v betonu, půdorys– foto
Foto: archiv autorů
14/15

ARCHTEAM, Dům v betonu, řez příčný – foto
Foto: archiv autorů
15/15