Ateliér 6 + Air ateliér - Rodinný dům Blatnice

Blatnice pod Svatým Antonínkem je kouzelná moravská vinařská obec, rozkládající se na rozsáhlé rovině přecházející do mírného svahu s vinohrady. Typický je pro ni urbanistický rozvrh zástavby - úzká a zároveň hluboká parcelace podél cest, umožňující co největšímu počtu pozemků přístup ke komunikaci. Obytná část bývá podélně orientovaná směrem do veřejného prostoru a na ní navazuje kolmá část hospodářská. Zástavba je zde převážně přízemní, omítané stereotomické fasády, šikmé střechy.
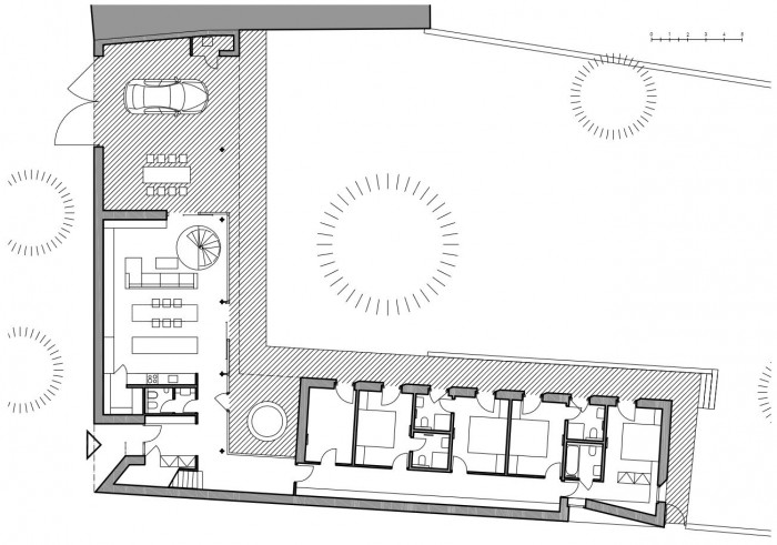
Naše parcela byla zastavěna objektem, založeném na tomto hmotovém principu. Vymykala se však svojí šířkou (v obci patří k jedné z největších). Původní objekt jsme vzhledem ke špatným stavebně technickým důvodům nahradili novostavbou, která však zcela respektuje obecný princip zástavby v obci i původní hmotu domu. Novostavbu ve tvaru písmene "L" jsme umístili na severovýchodní a severozápadní hranici pozemku.
Vstup do objektu se nachází na styku obou křídel domu, na severním rohu parcely. Krytý vstup a závětří, navazuje na zádveří se šatnou. Severovýchodní křídlo, směrem do ulice, tvoří komfortní obytný prostor otevřený do krovu, který je směrem do zahrady plně prosklený. Hlavní prostor je členěn rozmístěním nábytku na kuchyni, jídelnu a vlastní obytný prostor doplněný zapuštěnou podzemní vinotékou. Na obývací pokoj navazuje venkovní sezení s krytým stáním pod novou stodolou.
Na styku obou křídel, v návaznosti na vstupní halu, se nachází zapuštěný, krytý, venkovní prostor s vířivkou. Severozápadní křídlo obsahuje ložnicovou část - čtyři ložnice s vlastní koupelnou a technická místnost. Jednotlivé pokoje jsou přístupné z dlouhé chodby, kde se nachází rozsáhlé úložné prostory.
Podkroví stavby je částečně využito. Nad vstupní částí se nachází herna (kulečník, stolní fotbal), opticky propojená s obytným prostorem a přístupná po schodišti ze vstupní haly, dále půda přístupná po žebříku z technické místnosti.
Nosná konstrukce je navržena jako klasicky zděná, křídlo prosklené směrem do zahrady je vyneseno ocelovými sloupky na půdorysu kříže. Střecha je sedlová, krytá klasickou, pálenou, červenou, střešní taškou - bobrovkou.
Fasády směrem do veřejného prostoru jsou s výjimkou hlavního vstupu v podstatě nečleněné otvory. Fasády do zahrady jsou tvořeny dvěma rozdílnými principy: obytné křídlo je plně prosklené, fasádu ložnicového křídla tvoří pravidelný rytmus vertikálních "francouzských" dveří.
Na fasádě u vstupu do domu, autor předpokládal existenci výtvarného díla, svým tématem a zpracováním volně vycházejícím z místních, tradičních motivů. Na daném díle architekt spolupracoval s profesionální výtvarnicí - Mgr. A. Pavlou Gregorovou (viz předložené varianty vývoje díla).
Zahrada je rozčleněna skladem zahradního náčiní na vlastní část obytnou, doplněnou vodním prvkem a sad. Plot podél sadu je z režného zdiva.
- Autoři: Radek Šíma
- Ateliér: Air ateliér, ATELIER 6
- Spolupráce: Vítězslav Táborský, Aleš Jeřábek
- Země: Česká republika
- Město: Blatnice pod Svatým Antonínkem
- Datum projektu: 2014
- Realizace: 2018
- Užitná plocha: 274.00m2
- Zastavěná plocha: 370.00m2
- fotografie: Jiří Hurt
Související projekty
Související architekti
Související ateliéry a firmy
Mohlo by vás zajímat



















