Ateliér Tišnovka - Přístavba Katolického gymnázia v Třebíči

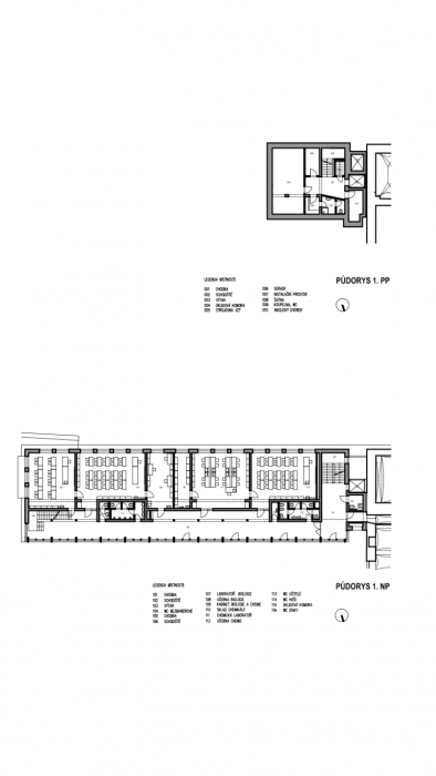
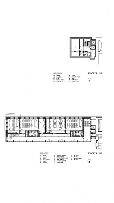
Přístavba gymnázia je intervencí do stávajícího areálu školy, který se nalézá v budovách bývalého kapucínského kláštera v Třebíči - Jejkově. Nová budova nahradila jednopodlažní provizorní křídlo bývalých dílen z období totality. Na jižní straně přístavba sleduje směr budov kvadratury, na severní straně vytváří vnitřní nádvoří pro relaxaci a oddych studentů s návazností na venkovní učebnu. Dvoutraktové dispoziční schéma otvírá v přízemí prosklené respirium do nádvoří, v patře je chodba orientována do otevřené terasy. Učebny, laboratoře a kabinety jsou řazeny dle konkrétních požadavků školy. Architektura je artikulována jako jednoduchý navazující archetypální tvar se soudobým výrazem a detaily.
Konstrukce a technologie: Konstrukce využívá kombinovaný systém nosných keramických stěn, železobetonových sloupů a stropů. Materiály - vápenná omítka, cembritové šablony, vymývané teraco, hliníková okna, šedě lakovaná ocel. Kamenné zídky jsou ze skládané rosické ruly. V interiérech je použito světlé broušené teraco a dubové parkety, dveře, průhledy do učeben a vestavěný nábytek jsou z javorového dřeva.
- Autoři: Miloš Klement, Petr Todorov
- Spolupráce: Eva Kovářová
- Země: Česká republika
- Město: Třebíč
- Ulice, číslo: Otmarova 30/22
- PSČ: 674 01
- Suma: 50 000 000.00
- Měna: CZK
- Datum projektu: 2016
- Realizace: 2019
- Zastavěná plocha: 598.00m2
- Plocha pozemku: 5 572.00m2
- Investor: Biskupství brněnské
- Statika Václav Přikryl: Statika Václav Přikryl
Související architekti
Mohlo by vás zajímat





























