Ateliér VAN JARINA - Vinohradnický dům na Zoboru
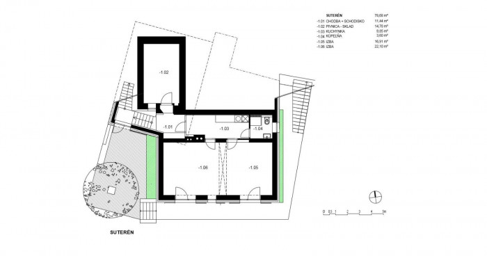
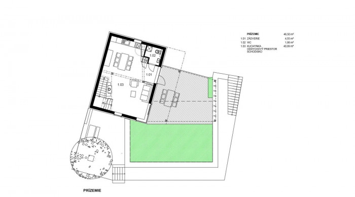
Z pôvodného hospodárskeho objektu osadeného vo svahu vinohradu sa zachovala kamenná časť s pivnicou. Nad ňou sa postavila moderná drevostavba s experimentálnou - pre náš ateliér - fasádou z cédrového šindľa. Otvorením fasády na juh vznikli obytné priestory pre samostatný, pohodlný, malý apartmán. Rámy okien sú skryté za titazinkovými obložkami, vďaka ktorým vznikla čistá kombinácia sklo-kov-kameň.
Drevená konštrukcia z červeného smreku je priznaná v interiéri, ktorý je kombinovaný s veľkoplošnými smrekovými preglejkami a oceľovým remeselne spracovaným schodiskom.
Strecha z rheizinku tvorí súčasť bezúdržbovej fasády z trvácich materiálov, ktoré sa prispôsobujú a začleňujú do prostredia: miestny kameň - neupravované drevo - zvetraná falcovaná strecha. Dôležitou súčasťou domu je jeho prepojenie zo záhradou, ktorú projektovala záhradná architektka Eva Wagnerová v duchu rešpektujúcim genius loci tohto výnimočného miesta.
Vegetačná strecha prepája interiér s exteriérom a existujúce vzrástle stromy zabezpečujú tak potrebný tieň na južnom svahu. Dom realizovala česká firma Taros nova, a všetky náročne atypove remeselne detaily tvorivo riešili na stavbe skúsení odborníci na drevostavby: Ing. Ján Nosálek spolu s architektom Ivanom Jarina.
Malý vinohradnícky dom na Zobore je – vďaka svojej vyváženej kompozícií z dielne Ateliéru VAN JARINA a kvalitnej realizácií stavby - výnimočným miestom na rekreáciu a oddych v priamym dotyku Nitry.
- Autoři: Ivan Jarina
- Ateliér: atelier van jarina
- Spolupráce: Ján Škotta, Igor Šarocký, Štefan Šuster
- Země: Slovensko
- Město: Nitra
- Realizace: 2018
- Užitná plocha: 165.00m2
- Zastavěná plocha: 130.00m2
Související projekty
Související architekti
Související ateliéry a firmy
Mohlo by vás zajímat