BARAAK Architekti - Rodinný dům na Spořilově

„Když navrhujete pro svoje nejbližší, soustředíte se na to podstatné. A neděláte kompromisy.“

Klasická řadová zástavba pražského Spořilova ze třicátých let je vnímána jako velmi kvalitní bydlení v příjemné rezidenční čtvrti. Na druhou stranu stavební kvalita domů ze třicátých let není příliš velká a stejně tak hustota zástavby řadových domů nedává architektovi příliš velký prostor pro realizaci. Architektce Barboře Kopečné se kompletní rekonstrukcí domu podařilo nejen zcela proměnit interiéry, dát jim novou kvalitu, ale především dům rozšířit a smysluplně propojit s exteriérem.

Kompletní rekonstrukce malého řadového domu na Spořilově od architekty Barbory Kopečné z ateliéru Baraak dala domu zcela nový charakter, rozšířila podlahovou plochu o obývací pokoj a také venkovní posezení do zahrady. „Obě funkce jsou sjednoceny pod jeden jednopodlažní rámový celek z pohledového betonu. Obytná část je po rekonstrukci lépe propojená se zahradou, a to jak výškově, tak okny,“ říká architektka o nejvýraznějším zásahu směrem do vnitřní zahrady. 

Vstupní část domu byla nově postavená, protože ta původní se odtrhávala a stavebně byla nevyhovující. Během rekonstrukce byly ve všech ohledech dodržené výšky venkovních říms, stejně jako charakter oken a tvar střechy. Okna jsou v domě osazena všechna nová, střecha s nadkrokevní izolací, což je technicky lepší řešení. Tím se navíc v interiéru vytvořilo více místa pod krovem, jeho konstrukce byla odkrytá a vznikl zde nový prostor pro dočasné přespání vnoučat majitelů domů.Největším oříškem při rekonstrukci domu bylo jeho rozšíření v jeho střední části. To architektka vyřešila právě monolitickým blokem obývacího pokoje se vstupem plynule přecházejícím do zahrady.

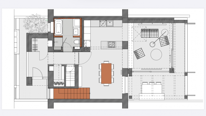
V interiéru, který byl kompletně navržený nově, vznikla plnohodnotná kuchyně, jež nahradila původní kuchyňský kout. Přibyla také prostorná jídelna a obývací pokoj, oba prostory s minimalistickým vybavením několika solitérními kusy nábytku s nadčasovým designem. Podlahy v přízemí architektka barevně sjednotila a použila tradiční materiály marmoleum a klasickou dlažbu.

Patro bylo nově otevřeno do krovu, čímž místnosti získaly přidané patro na spaní (dříve to byla jen malá, špatně využitelná půda). Jde o občasné přespávání vnoučat, která tady získala své zázemí.

V horním patře vzniklo nové WC a šatny. „Chtěla jsem nevelký prostor využít doslova do posledního centimetru. Protože každý, kdo zná spořilovskou zástavbu, ví že tohle opravdu není žádná velkorysá vila, ale řadovka původně určená pro úředníky Spořitelny,“ komentuje limity prostoru Barbora Kopečná. Z toho také vyplynula nutnost navrhnout a vyrobit všechny nábytky a dveře na míru danému prostoru. K domu také patří malá zahrada, kterou investor v nejbližší dokončí podle návrhu ateliéru Partero.

  • Země: Česká republika
  • Město: Praha - Spořilov
  • Datum projektu: 2016
  • Realizace: 2019
  • Užitná plocha: 103.70m<sup>2</sup>
  • Plocha pozemku: 217.00m<sup>2</sup>
  • Zahradní úpravy: Ateliér Partero
Generální partner
Hlavní partneři