Rekonstrukce hospody se sálem v Máslovicích
V roce 2014 se malá obec nedaleko Prahy, Máslovice, rozhodla vypsat architektonickou soutěž na rekonstrukci chátrající, vyhořelé stavby na návsi, kde naposledy sídlil autoservis, ale kdysi zde bývala hospoda. Přestože v Máslovicích již jedna hospoda byla, nebylo místo, kde by bylo možné pořádat kulturní a sportovní akce pro místní obyvatele.

Objekt, ve kterém se nyní hospoda s víceúčelovým sálem nachází, se zdál být optimální. Budova stojí na návsi v centru obce, a tato poloha je pro dům takového společenského významu správná. Objekt vytváří společně se sousedním domem současné hospody jeden související celek, který je obklopen návsí. Posílení propojení hospody a návsi je klíčové, zejména zvážíme-li dění konané v hospodě a v sále a jejich význam pro společenský život obce.
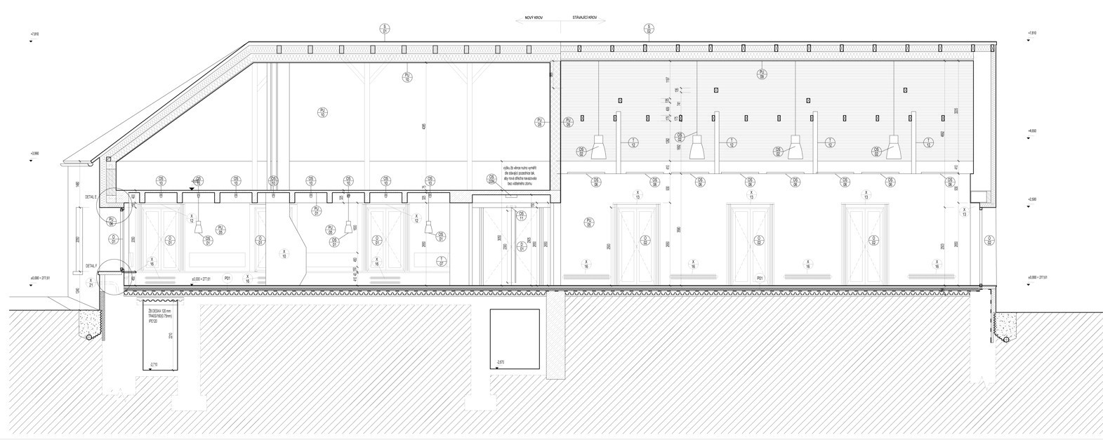
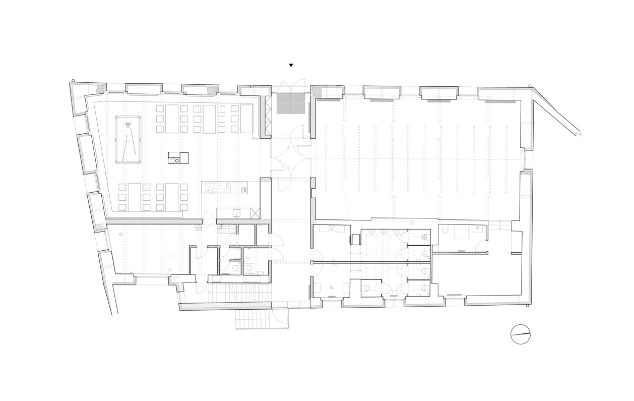
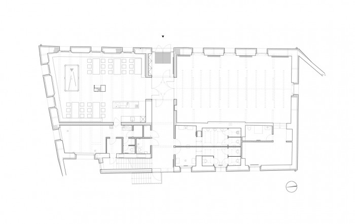
Původní podoba objektu byla výsledkem mnohaletého přistavování a přestavování, které nakonec vedlo k prostorové srostlici a dispozičnímu bludišti. Toto nepřehledné řešení autoři mění ve snadno pochopitelné dispoziční schéma kříže. Objekt je rozčleněn na dva trakty: obslužný, který je situován ke dvorku, a obsluhovaný, jenž bezprostředně navazuje na náves v celé délce východní fasády.

Hlavní vstup do domu je z návsi a vedlejší, podružný, ze dvorku. Na hlavní vstup navazuje chodba – osa, na kterou se napojují všechny provozy a vertikální komunikace. Vpravo se nachází lokál, vlevo sál; ty jsou odděleny od chodby velkými dvoukřídlými dřevěnými dveřmi, které se v případě konání větší akce dají otevřít do kolmé polohy – protilehlá křídla do sebe zapadají a dveře tak slouží k oddělení zádveří od zbytku chodby, čímž vzniká jeden velký, propojený prostor sálu a hospody.
Samotný sál je možné otevřít směrem do vydlážděné návsi třemi velkými francouzskými okny. Získává se tak další plocha využitelná pro dění uvnitř a život uvnitř se tak organicky propojuje i s venkovními prostory před hospodou.
- Ateliér: bod architekti
- Autoři: Vojtěch Sosna, Jakub Straka, Jáchym Svoboda
- Architektonická soutěž: 2014
- Investor: obec Máslovice
- Zhotovitel: Kyrastav spol. s r.o.
- Realizace: 2017-2018
- Adresa: Pražská 15, 250 69 Máslovice-Vodochody, Hlavní město Praha, Česká republika
Mohlo by vás zajímat