B

BY architekti - RK17

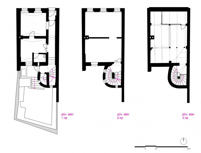
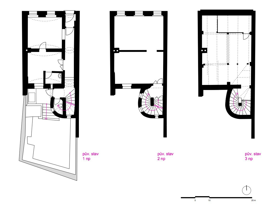
Klientka nás oslovila již před koupí objektu a na první prohlídku jsme šli společně. Dům nebyl v dobré kondici, nebyly k němu žádné podklady a jeho pořizovací cena byla poměrně vysoká. „U ledu“ to však zůstalo snad jen dva týdny a přišla prosba nakreslit dispozici: „Markéto, jak jste říkala, že by to schodiště mohlo být jinde a ta apsida by mohla být obytná… mohla byste mi to pro manžela, prosím Vás, nakreslit?“. A tak začalo čarování – z nutnosti pouze na základě vzpomínek z prohlídky a katastrální mapy. Je až úsměvné, že se oproti původní koncepci ve finále nic nezměnilo.

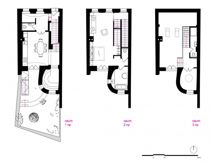
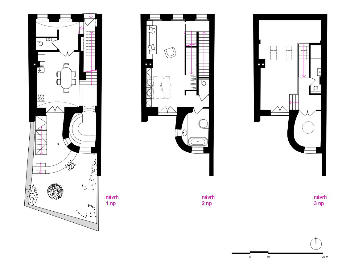
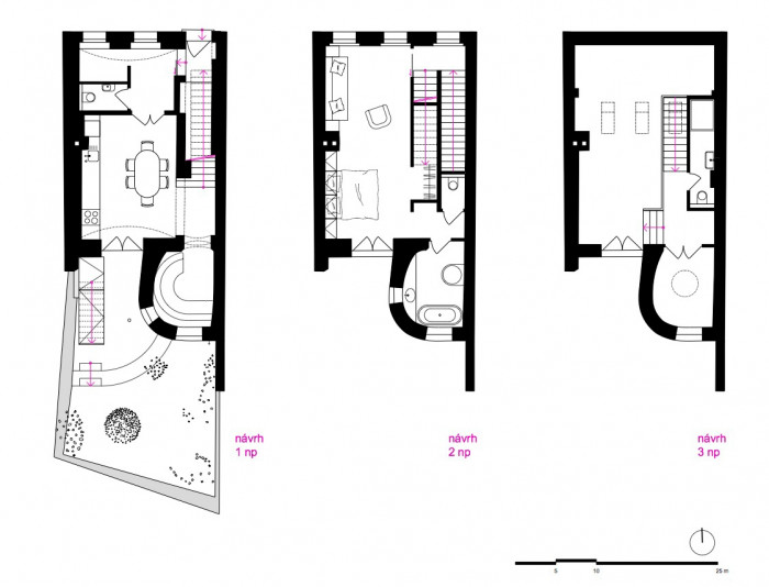
Z hlediska organizace objektu byla nejzásadnější již zmíněná úprava - vymístění schodiště z apsidy do středu domu + nové obytné patro ve formě půdní vestavby a zpřístupnění zahrady z obytného prostoru.

Apsida se stala nedílnou součástí obytné plochy, v přízemí jako budoár v nejtěsnějším kontaktu se zahradou, ve 2. NP jako prostorná koupelna na kterou uvnitř dispozice nebylo místo a v posledním podlaží jako pokojík pro vnuka. Využitím apsidy pro život se dům dostal do intenzivního kontaktu se zahradou, který je podpořen také novými francouzskými okny z pokojů v základním těle domu.

RK17, BY architekti © Alex Shoots Buildings

Přízemní obytná kuchyně s výstupem na dvoreček je průchozí a společná, zbývající dvě podlaží disponují možností nezávislého provozu, což vyplynulo ze zpřesněných požadavků (proto dvě ramena schodiště, nikoliv jednoramenná „obíhačka“).

Pod a nad přímými rameny schodiště jsou na střídačku umístěny úložné prostory a menší koupelny / WC. Veškerá technologie včetně domovního vysavače a větší zásoby potravin se nachází v suterénu. Ten se nachází pouze pod částí domu a je přístupný poklopem ze dvora. Přízemí je od sklepa a od terénu odděleno provětrávanou konstrukcí podlahy, která slouží jako perfektní hydroizolace.

Venkovní terén byl v kontaktu s výstupem z kuchyně odkopán na úroveň přízemí. Tuto úpravu vymezuje cihelná dlažba na propustném podloží a obloukové stupně pohledově obložené cihelnými bločky. Za křivkou stupňů a za segmentem zábradlí zachráněným z původní půdy je malý kousek divočiny zakončený fazolemi na plotě. Ten dvoreček je skutečně jak z pohádky o Alence v říši divů, a tak se k němu fazole velmi hodí.

RK17, BY architekti © Alex Shoots Buildings

Kompletní obnovu vyžadovala také uliční fasáda. V archivu jsme nalezli stopu po nařízení odstranění odpadávajících štuků. Jejich podoba se nedochovala a nám zůstala na krku, toho času již také odpadávající, břízolitová omítka s bordó pruhem. Kompletně jsme zachovali figuru původních okenních otvorů, která jsme opatřili prvotřídními špaletovými okny. Rozloučili jsme se s luxfery nad vstupem, z doby socialistické přestavby, a vložili jsme kompaktní objekt vstupních dveří, křídlo s nadsvětlíkem, s řemeslným detailem obložek a poutce. V ostění vstupu je integrován zvonek a poštovní schránka.

Uliční fasáda je logicky členěna na sokl vstupního podlaží, který je obložen frézovanými systémovými deskami opatřenými finálním nátěrem / omítkou spolu se zbytkem uliční a dvorní fasády.

Věnovali jsme se také stavebnímu interiéru domu. Ve vstupu je na podlaze ornamentální betonová dlažba, v obytných částech jsou podlahy dřevěné – dubové parkety v klasickém stromečkovém vzoru, zázemí jsou opatřena PUR stěrkou v šedém odstínu. Stěny koupelen jsou pokryty bílou mozaikou, umyvadlo v hlavní koupelně je integrované v desce Dupont™ Corian® v kamenném vzoru. Interiérové dveře jsou navržené a vyráběné na míru, spolu s okny osazené historickým kováním v leštěném niklu.

RK17, BY architektiFoto: Alex Shoots Buildings

RK17, BY architekti © Alex Shoots Buildings

  • Autoři: Markéta Zdebská
  • Ateliér: BY architects
  • Spolupráce: Marek Žáček, Jana Horecká
  • Země: Česká republika
  • Město: Praha 10 - Vršovice
  • Ulice, číslo: Voroněžská 6
  • Datum projektu: 2016
  • Realizace: 2020
  • Užitná plocha: 120.00m2
  • Zastavěná plocha: 57.00m2
  • Plocha pozemku: 93.00m2
Generální partner
Hlavní partneři