Byt U Tří růží

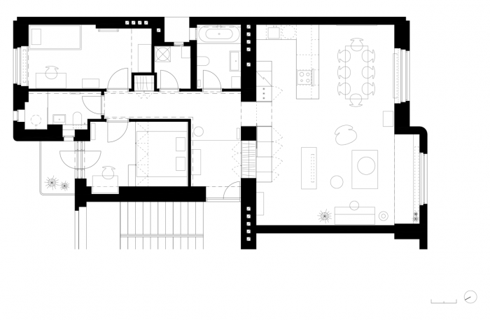
Velký obytný prostor je těžištěm společného žití, přirozeně se tu všichni potkávají a tráví většinu času doma. Pro různé aktivity nabízí prostor vlastní zákoutí, jejich vymezení je ale jen naznačené. Pocit prostornosti umocňuje vstup do místnosti skrz relativně úzký průchod ze vstupní haly, procházející skrz skříňovou sestavu. Opačným směrem z haly vede chodba do privátní části bytu s ložnicemi orientovanými do vnitrobloku a druhou, více soukromou koupelnou zalitou denním světlem.

Nedílnou součástí projektu je i vestavný nábytek na míru, který dotváří dispozici a skrytě násobí úložný prostor. Třešinkou na dortu pak byly na míru navržené žebřiny v dětském pokoji - jako dárek pro otce rodiny žijícího pohybem.

Záměrnou světlost a jednoduchost interiéru doplňuje důraz na detaily a výběr materiálů, které při obývání těší vizuálně i na dotek – jako například hedvábný povrch přírodní dubové podlahy, žulová kuchyňská deska, dlažba a obklady s reliéfními tečkami v koupelnách či jemná kresba bělené překližky na atypickém nábytku. Čistě řešený interiér tak vytváří základ pro bohatý rodinný život…

Generální partner
Hlavní partneři