Concept House
Zadání bylo jasné – dům, kde každé patro se bude umět přizpůsobit jakémukoliv klientovi a bude ekologicky přívětivé. Začali jsme vytipováváním vhodného místa a od začátku jsme věděli, že budeme směřovat do proluky a snažit se tak dotvořit uliční čáru a postupně takto doplňovat urbanistickou figuru v děravém území. Vybraná parcela, která sloužila akorát pejskařům a ke zkracování cesty, se nachází na střetu kompaktní sorelové výstavby z šedesátých let a rozvolněné sídlištní panelové zástavby ze sedmdesátých a osmdesátých let u hlavní komunikace Opavské.
Hmotové řešení reflektuje pravoúhlý řád okolní zástavby převyšující navazující dům o dvě podlaží. Fasáda je provedena důstojně k významu městského domu v tmavě šedé omítce se vsypem karbidu křemíku, který stavbě dává tajemnou, opalizující tvář. Tento materiál byl zvolen jako reminiscence na omítkové fasády Poruby, které tohoto efektu dříve využívaly díky použití dnes již neoblíbenému břízolitu se slídou.
Nosnou konstrukci tvoří železobetonový skelet a obvodový plášť je řešen vesměs jako vrstvený sendvič.
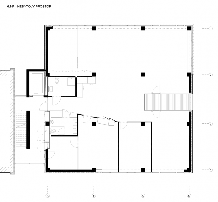
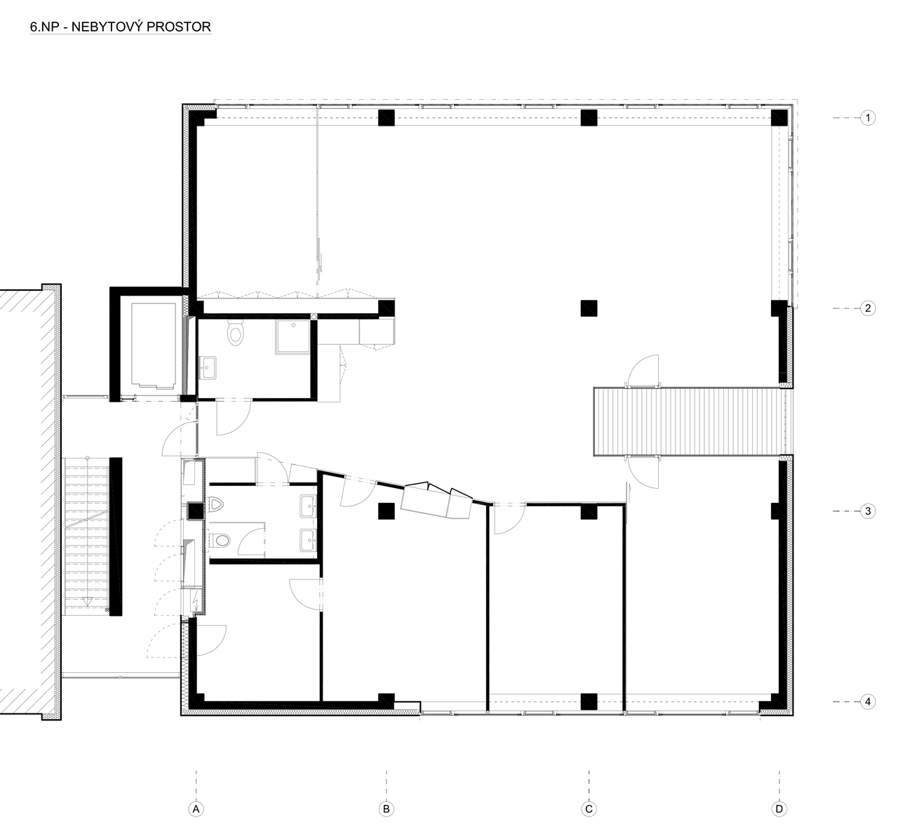
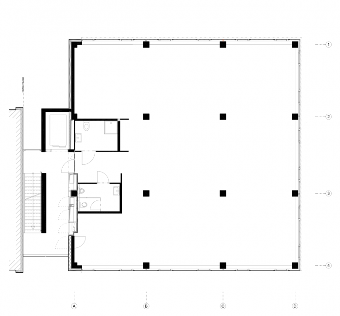
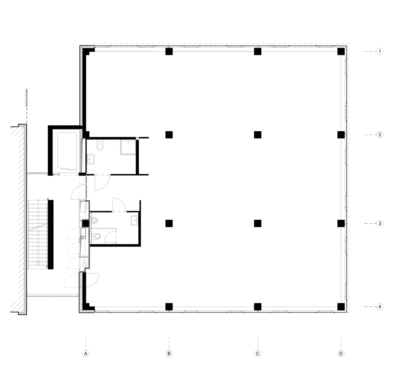
Okna, které jsou osazena do líce fasády, byla v počátku v každém patře navržena jako pásová, ale po konzultaci s jednotlivými budoucími majiteli se výsledek přizpůsoboval jejich požadavkům. Tak také vzniklo okno o rozměrech 4,1 × 4,5 m v osmém patře. Každé podlaží je provozně řešeno jako samostatný celek. Plocha každého podlaží o 240 m2 se tak díky zdvojeným podlahám, ve kterých jsou umístěny veškeré rozvody, stává nejvyšší možné míře variabilním prostorem.
Mezi štítovou stěnu stávajícího bytového domu a půdorysnou stopu samotné novostavby jsou vloženy společné prostory v podobě schodišťové šachty. Samotný prostor je v kombinaci pohledového betonu a čirého zasklení jednotlivých podest. Záměrem je, aby stavbu bylo možné vnímat co nejvíce smysly, i proto ocelové schodiště při použití vydává charakteristické dunění ve vazbě na pohyb domem – stavba tedy má i svůj zvuk.
Ustupující a odlehčený parter, kde ze strany od hlavní komunikace se nachází pronajímatelný prostor pro občanskou vybavenost a vytváří tak obchodní parter, tak důležitý pro město. Ze zadní strany jsou umístěny garáže pro majitele jednotlivých pater.
Na střeše jsou umístěné dva větrníky, které jsou manifestem nízkoenergetičnosti stavby.
Doufáme, že tato novostavba má i význam pro své okolí, které může obohacovat a inspirovat k dalšímu vyplnění děr v území.
- Autoři: David Kotek
- Ateliér: PROJEKTSTUDIO
- Spolupráce: Kateřina Holenková
- Země: Česká republika
- Zodpovědný projektant: Jan Müller
- Město: Ostrava - Poruba
- Ulice, číslo: Opavská 6230/29a
- PSČ: 708 00
- Datum projektu: 2010
- Realizace: 2012
- Užitná plocha: 1 892.30m2
- Zastavěná plocha: 290.00m2
Související projekty
Související architekti
Související ateliéry a firmy
Mohlo by vás zajímat