Create Space - Byt na Dunaji
 
                                
                                Cieľom rekonštrukcie bolo zbaviť byt zbytočných priečok a čo najviac otvoriť dispozíciu. Rekonštrukcia znamenala výrazný stavebný zásah, pôvodné nenosné priečky boli takmer úplne eliminované, ostal zachovaný iba rámec obvodových a nosných konštrukcií. Uzatvorenú dispozíciu bytu sme otvorili, čím sme dosiahli požadovanú vzdušnosť a presvetlenosť interiéru.
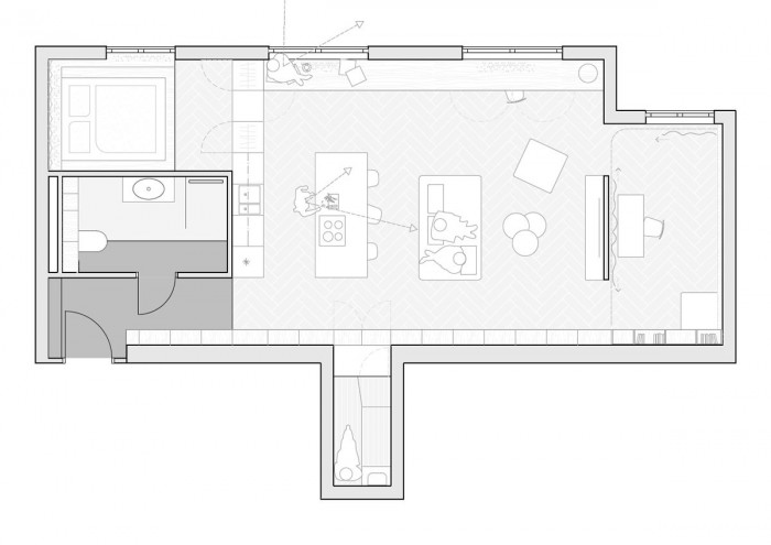
DISPOZIČNÉ RIEŠENIE
Do pôvodnej dispozičnej schémy sme vložili nový, prehľadný priestorový koncept s dôrazom na funkčnú a praktickú stránku návrhu, z ktorej vychádza nová architektonická a výtvarná podoba interiéru. Vstupný priestor držaný v tmavej farbe slúži ako kontrast k presvetlenému interiéru do ktorého sa následne dostaneme. Zo vstupného priestoru zmeny v dispozícii umožnujú priehľad po najdhšej osi bytu až do pracovňe, v ktorej je zámerne zvolená výrazná akcentná ultramarínová modrá farba (z farebnej palety Le Corbusiera).
Do priestoru zapadajú precízne stolárske prvky, zhotovené na mieru novej dispozície. Meníme dispozičný koncept kuchyne a otvárame ju do obývacej izby. Zjednocujúcim prvkom sa stáva 13,5 metrov dlhá vstavaná skriňa z brezovej preglejky, začínajúca v zádverí pokračujúca naprieč kompletným bytom ukončená otvorenou knižnicou v pracovni/ hosťovskej izbe. Tento stolársky prvok reaguje v každej časti bytu na jeho aktuálne potreby (Zádverie - šatník, kuchyňa - špajza, pracovňa - knižnica, dokonca sa nám do nej podarilo ukryť vstup do sauny). Varenie a komunikovanie v otvorenom priestore je divadlo, ktoré sa stáva srdcom bytu.
Byt na Dunaji je svojou dispozíciou natoľko otvorený, že jednotlivé časti/izby nedefinujú samotné priečky, ale nábytok/materiály. Priechodný šatník, vytvára predpolie a ukrytý nástup do spálne. Nakoľko je každý metr čtverečný plochy bytu vzácny, bola spálňa zámerne pôdorysnou plochou minimalizovaná. Kúpeľňa bola zväčšená spojením s pôvodne samostatnou toaletou a vďaka výraznému geometrickému čierno - bielemu obkladu získala súčasný charakter.
Byt na Dunaji a jeho nová forma pôsobí omnoho veľkorysejším dojmom ako pôvodný interiér. Denná časť bola do maximálnej možnej miery otvorená a naopak nočná časť minimalizovaná - stretávanie sa s rodinou a priateľmi dostáva nové dimenzie a komfort. Napriek tomu dispozícia vytvára aj v otvorenej časti priestor pre pre koncentrovanú prácu, útulné čítanie knihy, alebo hranie šachu vo dvojici.
MATERIALOVÉ RIEŠENIE
Koncept bol jednoduchý - nechať vyniknúť prirodzenú kresbu materiálov, s farebnými akcentami na monochromatickom základe. Na farebne neutrálnom pozadí vyniká vertikálna kresba brezovej preglejky, a dubovej podlahy. Neutrálnu monochromatickosť podkladových vrstiev dopĺňame hrou so štruktúrou a textúrou použitých materiálov. Postačí takáto farebná paleta ako podklad k prirodzenej dynamike života? Originálnym detailom je voľba žlutej farby vnútorných políc kuchynského ostrova ako kontrast k monochromatickému vonkajšku. Tento detail sa opakuje na svietidlách nad ostrovom vo forme žlutej kábeláže k svietidlám. Opticky pôsobí byt priestranne a veľkoryso. Napomohlo k tomu hneď niekoľko vecí: popri prevažujúcej bielej farbe predovšetkým jednotná drevená podlaha a nábytok vytláčaný do obvodových častí bytu.
ORIENTÁCIA + OSVETLENIE
Malá a uzavretá denná zóna pôvodného bytu nespĺňala predstavu o presvetlení. Denná a nočná časť po rozsahlej rekonštrukcii sú vzájomne prepojené. Jediným deliacim prvkom do pracovne/hosťovskej izby je posuvatelný záves, ktorý z časti nahradil pôvodnú murovanú stenu s jednokrídlovými dverami. V prípade potreby sa dá priestor jednoducho opticky oddeliť, v otvorenom stave naopak vynikne rozmer otvoreného, kontinuálneho priestoru.
ŠPECIFIKÁCIE
Špecifikom bytu sú otvorené priehľady, ktoré však nevylučujú jasné odlišenie spoločných priestorov a intímnejších časti. Obojstranná pohovka je orientovaná k TV stene a barovému stolovaniu zároveň. Dôležitým detailom nábytku sú skryté dvere a pánty, smerujúcich do spálňe alebo sauny. Vzhľadom k tomu že nábytok po obvode bytu vytvára dostatok úložného priestoru bola v pôvodnej komore zrealizovaná kombinovaná sauna na mieru pre 3 osoby, ktorá obohacuje život majiteľov.
INTERIEROVÝ BALKÓN
Vzhľadom k tomu že byt nedisponuje balkónom, snažili sme sa o vytvorenie prepojenia interiéru s exteriérom. Pod oknami bol vytvorený stolársky prvok ktorý v sebe ukrýva niekoľko funkcií. Vďaka svojej hĺbke je vyhovujúci na sedenie, ležanie alebo čitanie kníh s priamim kontaktom do exteriéru nakoľko je ukotvený vo výške parapetu. Zároveň v sebe ukrýva pracovný kútik a stoličku pre prípadný home office. Samozrejmosťou je plnohodnotný úložný priestor.
ÚLOŽNÝ PRIESTOR
Dôraz bol kladený na dostatok úložných priestorov, riešených vstavaným nábytkom. Ten bol navrhnutý z brezovej preglejky a bieleho laminátu. Dostatok skrytých úložných priestorov znamená, že byt pôsobí trvalo uprataný. Namiesto univerzálne pôsobiacich úložných priestorov sme ich tu navrhli a vyrobili tak presne podľa svojho budúceho obsahu. Aj v kúpeľni sme sa pohrali s úložnými priestormi. Okrem skrinky pod umývadlom so zásuvkami tu upúta pozornosť preglejková stena s policami a košom na špinavú bielizeň.
- Autoři: Peter Fritsch, Silvia Mládenková
- Ateliér: Create Space
- Země: Rakousko
- Město: Vídeň
- Datum projektu: 2018
- Realizace: 2019
- Užitná plocha: 69.00m2
Související projekty
Související architekti
Související ateliéry a firmy
Mohlo by vás zajímat
 
				 
				 
				 
				 
				 
				 
				 
				 
				 
				 
				 
				 
				 
				 
				 
				 
				 
				 
				 
				 
				 
				 
				 
				 
				 
				 
				 
				 
				 
				 
                             
                             
                             
                             
                             
                                 
                             
                             
                             
                             
                             
                             
                             
                             
                             
                             
                             
                             
                             
                             
                             
                             
                             
                             
                             
                             
                             
                             
                             
                     
             
             
             
            		 
            		 
            		 
            		 
            		 
                                                                                                             
                                                         
                                                         
                                                                                                             
                                                         
                                                         
                    