Daniela Polubědovová - Kanceláře a showroom developerské společnosti Satpo

Před časem jsem byla oslovena k vytvoření interiéru kanceláří a showroomu v polyfunkčním domě Rezidence Sacre Coeur II (autor Schindler Seko Architects  pro developerskou společnost Satpo, která se rozhodla svou vlastní výstavbu využít pro sídlo firmy. 

S tvorbou kanceláří jsem se během své práce setkala již několikrát. Hlavní motivací při tvorbě návrhu je pro mě vytvořit nový prostor s atmosférou přínosnou pro nejen pocity zaměstnanců, kteří tam tráví většinu svého pracovního dne ale v tomto případě i klientů a návštěvníků showroomu. 

Realizace plochy dvou pater vznikla od zadání a prvotních konceptů do samotného nastěhování v průběhu dvou let. Stavba vzhledem k tomu, že je umístěna nad tunelem, má svou specifickou konstrukci, která se v interiéru výrazně projevila. Jako protiváhu těchto technických prvků jsme pracovali převážně s jemnými barvami, hravým tvaroslovím a přírodními motivy.  

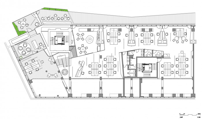
Vstupní patro s recepcí a zasedacími místnostmi slouží jako prezentační showroom a místo pro komunikaci s veřejností. Zasklená galerie v prvním nadzemním podlaží nad showroomem je využita pro kancelářská pracoviště a zázemí zaměstnanců.  

Poměrně složité bylo vypořádat se s nízkou konstrukční výškou prostoru kanceláří. Podhled z bílého vlnitého plechu, který kryje mnoho technologií, byl použit záměrně pro jeho schopnost odrážet světlo a vytvářet dojem plynulého pohybu. Toto tvarování umožnilo v místech bez rozvodů podhled opět lehce zvýšit. Prostor tím získal alespoň částečně větší výšku i dynamiku. 

Materiálový koncept je vytvořen kombinací překližky, skla, surového i lakovaného plechu, bílého mramoru i terazza. Stoly v zasedacích místnostech z masivních dubových fošen se specifickou vůní dřeva doplňují obklady a dveřní panely ze starých dřevěných trámů. Kontrast ke skleněným příčkám a betonu na stropech showroomu tvoří vzdušné bílé záclony. Barevná kompozice je tvořena opozicí pastelové růžové, modré, zelené, žluté i sněhově bílé k temné smaragdově zelené, zářivě červené a barvě přírodní oceli. Zeleň umístěná v showroomu do ostrovních atypicky navržených květináčů se pne přes dvě patra na konstrukcích z ocelových lan. 

Realizace byla nominována mezi finalisty soutěže Kancelář roku 2017.  

  • Autoři: Daniela Polubědovová
  • Spolupráce: Milan Bulva
  • Země: Česká republika
  • Realizace: 2017
  • Město: Praha 5 - Smíchov
  • Ulice, číslo: Holečkova 3331/ 35
  • PSČ: 15000
  • Datum projektu: 2015
  • Realizace: 2017
  • Užitná plocha: 740.00m2
Generální partner
Hlavní partneři