Dílna - Bytový dům Ostrava

Exponovaná nárožní parcela uvozuje nástup do nejužšího centra. Břemeno kolektoru a nevýhodná orientace ke světovým stranám jsou významným ovlivňujícím faktorem. Pozemek je uvozen dvěma spojnicemi na Masarykovo náměstí, přičemž první z nich, ulice 28. října, je výrazně frekventovanější. Nová intervence podporuje oživení paralelní Kostelní ulice i celého okolí se silnou vazbou na kostel sv. Václava.
Urbanistická koncepce a veřejný prostor
Protnutí bloku diagonálním průchodem při příchodu od mostu Sýkorák otvírá průhledy na kostel a nabízí alternativu k cestě do centra i zpět. Vzniká tak otevřený veřejný prostor svázaný s navrhovaným parterem odcloněným od dopravy.
Rozdělením hmoty na menší objekty definuje lidské měřítko zástavby v kontrastu s masivní novou zástavbou v blízkém okolí. Terasovité odskočení fasád přilehlých k průchodu umožňuje osvětlit a proslunit byty a zároveň definuje nový atraktivní až komorní veřejný prostor.
Architektura
Pevně vymezená nároží navazují na urbanistickou strukturu. Kontrast pevné obálky a otevřeného, členitého jádra je podpořen intenzitou prosklení dvorní fasády a zelení na terasách. Velký podíl střešní plochy zabírají terasy jako příslušenství k bytovým jednotkám. Výraz a barevnost objektu je střídmý, výrazné členění vnitřních hmot je oživující a podtrhuje svou nevšedností důležitost této nárožní parcely uvozující jeden z hlavních přístupů do centra. Zlaté eloxované hliníkové rámy oken, zlatý nástřik ocelového zábradlí a tahokovu vjezdových vrat splývají s barvou ručně tahané probarvené omítky a dlažby na terasách. Citace tradičních materiálů je abstrahovaná ve své jednobarevnosti do kompaktního objektu soudobého výrazu.
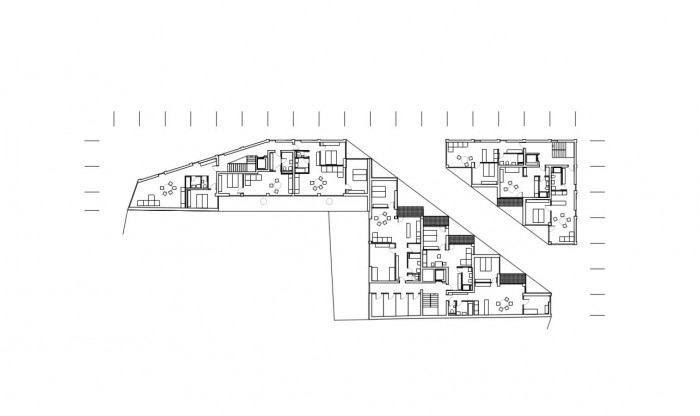
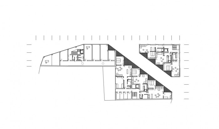
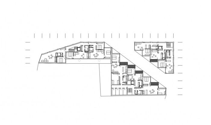
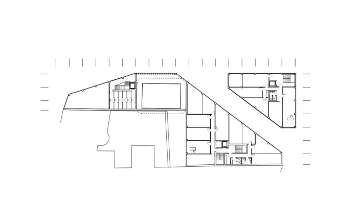
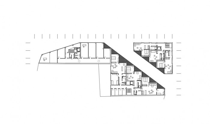
Provoz a dispozice
Atypická dispozice přináší rozmanité dispoziční řešení, byty jsou obecně dobře prosvětleny a povětšinou příčně provětrány. K většině bytů patří terasy odcloněné navzájem kombinací prosklených a plných stěn. Všechny nebytové prostory jsou atraktivní, v hlavním nároží je komerční parter převýšený. Kancelářské plochy jsou flexibilní, jednotlivé prostory lze různě kombinovat.Ve sklepech jsou krom parkování skladovací kóje solitérního domu, sklady k nebytovým prostorům a technické zázemí objektu – výměníková stanice, zásobník šedé vody apod. Nádoby na tříděný odpad jsou umístěny při vstupním objektu kolektoru. Nadzemní těleso kolektoru je v rámci fasády pojednáno opláštěním zlatým tahokovem.
Konstrukce
Konstrukční systém navrhovaných objektů je kombinovaný stěnový a sloupový železobetonový skelet s vyzdívkou z keramických bloků vyplněných minerální vatou. Objekt kolektoru je přemostěn pomocí žeber a nosné stěny. Podsklepená a nepodsklepená část je dilatována. Stavba je založená pilotách mimo ochranné pásmo kolektoru. V interiérech nebytových prostor je maximálně uplatněn pohledový beton v kombinaci s přiznaným keramickým zdivem. Zateplení železobetonových elementů určuje tvárnost fasády.
Doprava
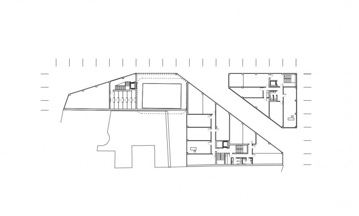
Zásobování a vjezd do podzemního parkoviště jednopruhovou rampou je z ulice Kostelní. Kapacita parkování je 21 v prvním podzemí resp. 22 v druhém. Kapacita parkování 43 vyhoví při započtení koeficientu pro centrální oblasti měst.
Technologie, energetická koncepce a ekologie
Uvažuje nízkoteplotní, teplovodní otopná soustava v převážné části s podlahovým vytápěním a konvektorovými podlahovými tělesy, doplněná otopnými žebříky v koupelnách. Jako hlavní, primární zdroj vytápění a ohřevu TV je navrženo centrální zásobování teplem z horkovodu. V objektu je dále počítáno s využitím šedých odpadních vod, které budu využity jako vody provozní například pro splachování záchodů, či zalévaní zeleně teras. Z hlediska dopadu na životní prostředí a přehřívání má významný vliv i koncepce zelených střech a ozeleněných teras. Parkovací prostory jsou nuceně odvětrávány. Nová výstavba si vyžádá částečnou přeložku horkovodu.
Výměníková stanice a elektrorozvodna bude umístěna pod rampou v 2pp.
Vegetace
Velké stromy rostou při nepodsklepené části navrhované stavby, předpokládá se její zachování na pozemku i v sousedství. Osazení teras a dvorku kontejnery se zeminou umožňující pěstovat i vzrostlou zeleň. Kombinace pohledů skrze zeleně na terasách a koruny stávajících stromů je jeden hlavních akcentů návrhu.
Požární bezpečnost
Součástí všech navrhovaných objektů je přirozeně odvětraná chráněná úniková cesta v podobě jádra. Byly dodrženy všechny požárně bezpečností předpisy. Parkovací prostory jsou přirozeně odvětrávány.
- Autoři: Michal Palaščak, Michal Polaš, Jan Flídr
- Ateliér: dílna
- Země: Česká republika
- Město: Ostrava
- Ulice, číslo: Kostelní
- Poznámka: Projekt 2018
Související architekti
Související ateliéry a firmy
Mohlo by vás zajímat













